← Rushcliffe Borough Council

Status

Pending Decision House extension
Received
Last month
New homes
0

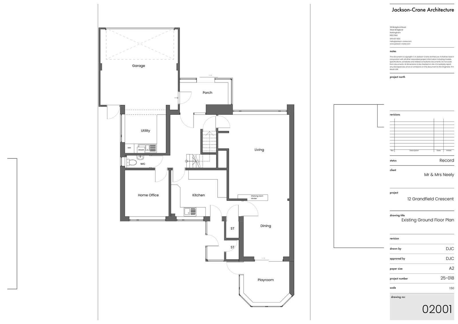
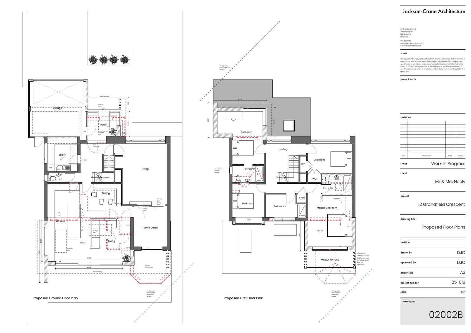
Full proposal

Erection of single storey and two storey rear extension including rear balcony; first floor front extension; raise roof of exisitng garage; new front porch with canopy; application of timber cladding; first floor window to side elevation of existing dwelling.

Have your say

Your comment matters. Councils must consider every representation that raises material planning considerations.

Write a comment