← Rushcliffe Borough Council

Status

Pending Decision House extension
Received
Last month
New homes
0

Full proposal

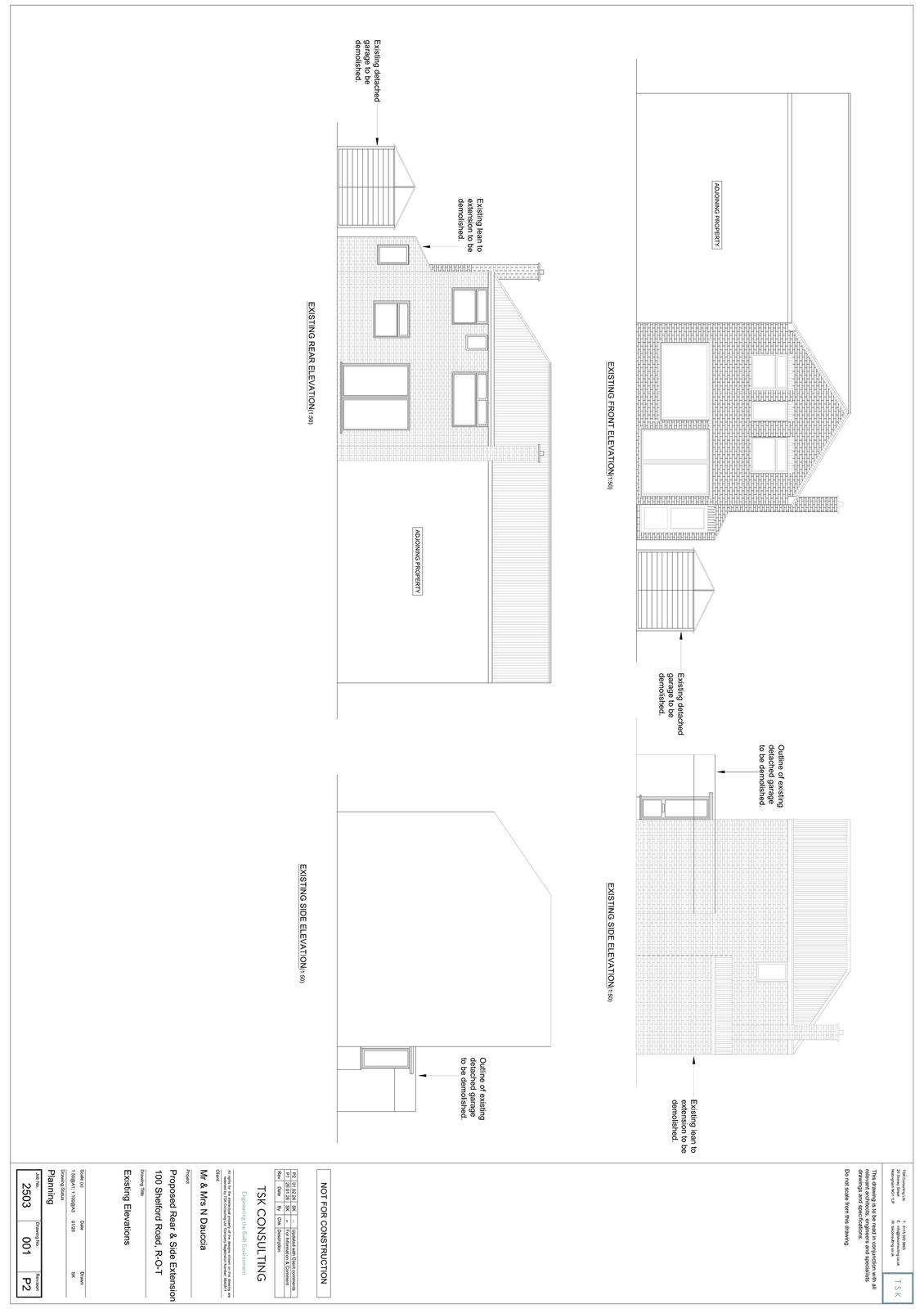
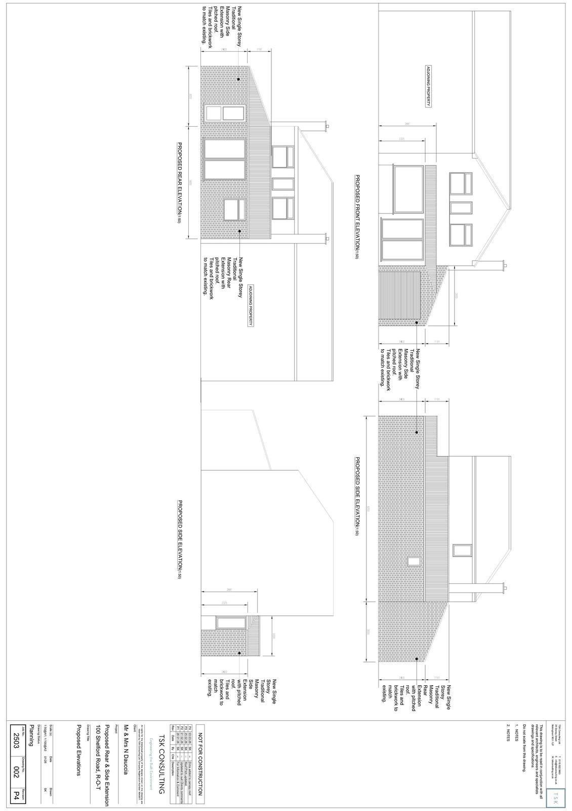
Demolish existing garage; construction of single storey side/front and rear extensions; canopy roof to front elevation.

Have your say

Your comment matters. Councils must consider every representation that raises material planning considerations.

Write a comment