← Rushcliffe Borough Council

Status

Pending Decision House extension
Received
Last month
New homes
0

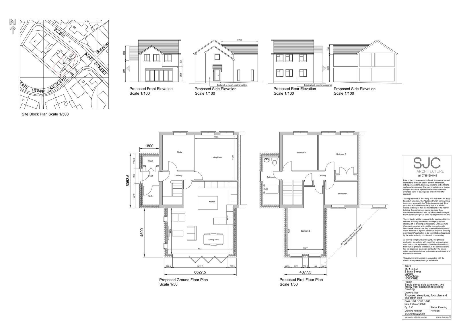
Full proposal

Two storey front and side extension to existing dwelling

Documents

Application Form
Archived · Original link
Site location plan
Archived · Original link
Plans
Archived · Original link

Have your say

Your comment matters. Councils must consider every representation that raises material planning considerations.

Write a comment