← Rushcliffe Borough Council

Status

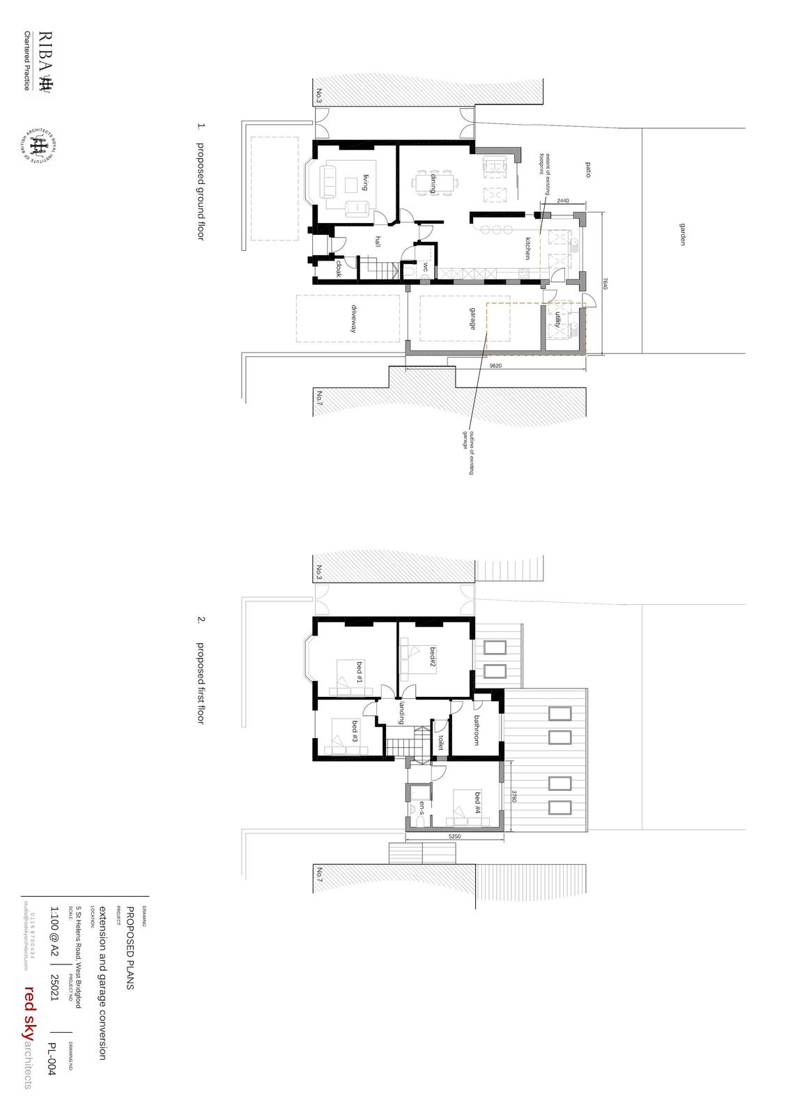
Pending Decision House extension
Received
Last month
New homes
0

Full proposal

Demolition of garage and construction of a two storey side extension and single storey rear extensions including rooflights

Documents

Photographs (application)
Archived · Original link

Have your say

Your comment matters. Councils must consider every representation that raises material planning considerations.

Write a comment