← Thanet District Council

Status

Awaiting decision Change of use
Received
01 Apr 2025
New homes
0

Full proposal

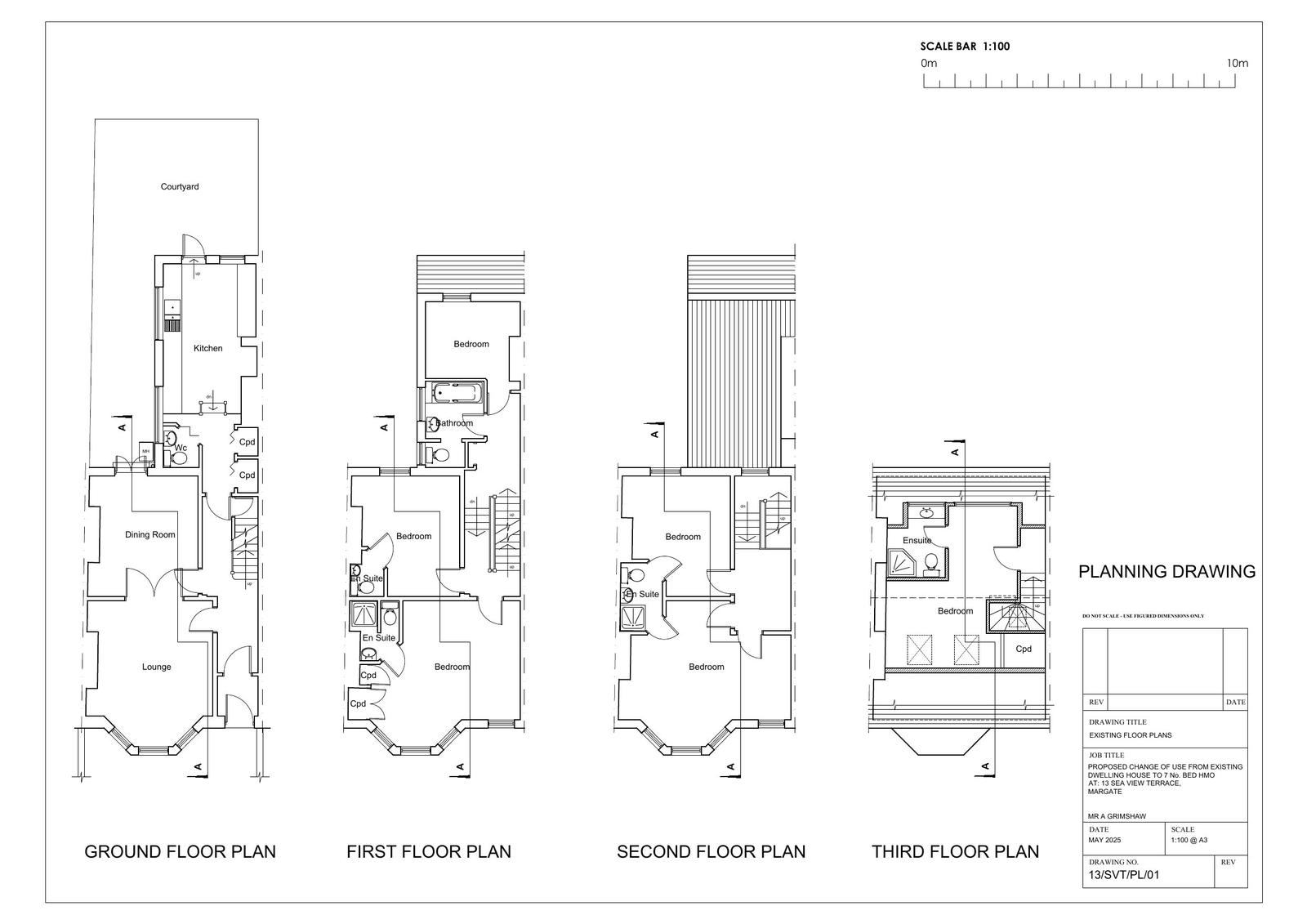
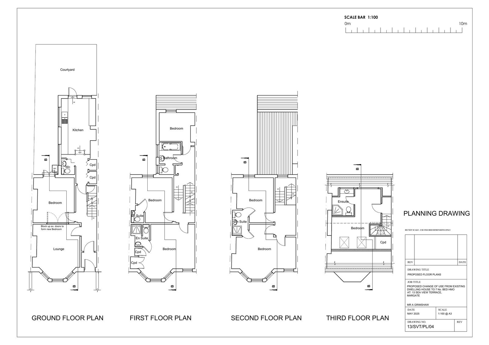
Change of Use from dwelling (Use Class C3) to 6 Bed HMO (Use Class C4)

Documents

Amended Plan
Archived · Original link
Plan/Drawing
Archived · Original link
Block Plan
Archived · Original link
Correspondence
Archived · Original link
Consultee Comment
Archived · Original link
Plan/Drawing
Archived · Original link
Consultee Comment
Archived · Original link
HMO
Consultee Comment
Archived · Original link
HMO
Consultee Comment
Archived · Original link
Public Comment
Archived · Original link
Public Comment
Archived · Original link
Plan/Drawing
Archived · Original link
Plan/Drawing
Archived · Original link

Have your say

Your comment matters. Councils must consider every representation that raises material planning considerations.

Write a comment