← All councils

Recent applications

The most recent records we hold for this council (up to 200).

Erection of two storey side extension

Type House extension
Status Awaiting decision
Received 27 Jan 2026

Erection of veranda and external steps to rear following demolition of existing, installation of external door and changes to existing fenes...

Type House extension
Status Awaiting decision
Received 26 Jan 2026

Installation of a new shopfront, construction of a front balcony extension with associated glass balustrade, and replacement of first-floor ...

Type Commercial
Status Awaiting decision
Received 26 Jan 2026

Discharge of Biodiversity Gain Plan pursuant to application F/TH/25/0428 for the erection for the erection of 2no two storey 4-bed detached ...

Type New housing
Status Awaiting decision
Received 26 Jan 2026

Erection of single storey extension to front elevation following the demolition of existing garage to front of property

Type House extension
Status Awaiting decision
Received 23 Jan 2026

Erection of a single storey rear extension and erection of a single storey building to the rear

Type House extension
Status Awaiting decision
Received 15 Jan 2026
Plan thumbnail

Erection of extension to rear to facilitate the creation of habitable room in association with the existing hotel

Type Commercial
Status Awaiting decision
Received 21 Oct 2025
Plan thumbnail

Erection of a first floor extension with pitched roof, erection of front extension together with erection of balustrading to the front first...

Type House extension
Status Awaiting decision
Received 19 Jan 2026
Plan thumbnail

Erection of a single storey link extension between the dwelling and the annexe

Type House extension
Status Awaiting decision
Received 19 Jan 2026
Plan thumbnail

Erection of first floor rear extension, erection of 6no. dormer windows to existing rear projection and alterations to roof, together with i...

Type House extension
Status Awaiting decision
Received 02 Jan 2026
Plan thumbnail

Prior approval for the change of use of first & second floor from banking hall (Use Class E) to 8no. 1 bed flats (Use Class C3).

Type Change of use
Status Awaiting decision
Received 23 Dec 2025
Plan thumbnail

Change of use from private members club (sui generis) to 2no. 2 bed flats (use class C3), alterations to fenestration at the side elevation ...

Type Change of use
Status Awaiting decision
Received 14 Nov 2025
Plan thumbnail

Erection of 1no three storey 3-bed detached dwelling together with associated access and parking, following demolition of existing shed

Type New housing
Status Awaiting decision
Received 02 Jan 2026
Plan thumbnail

Erection of a three storey building to provide 5no 2-bed self-contained flats following demolition of existing dwelling

Type New housing
Status Awaiting decision
Received 24 Dec 2025
Plan thumbnail

Change of use from care home (Use Class C2) to 13-bed HMO (Use Class C4)

Type Change of use
Status Awaiting decision
Received 22 Dec 2025
Plan thumbnail

Erection of a front porch, erection of a single storey side extension including change of use of existing garage, erection of single storey ...

Type House extension
Status Awaiting decision
Received 19 Jan 2026
Plan thumbnail

Erection of single storey rear extension to extend 3.78m in depth, 2.70m to eaves and overall height of 3.06m

Type House extension
Status Unknown
Received 24 Dec 2025
Plan thumbnail

Erection of a fourth floor extension to create 1no. 1-bed self-contained flat

Type House extension
Status Awaiting decision
Received Last month
Plan thumbnail

Erection of a first floor front and side extension, a single storey rear extension and 1no dormer to rear

Type House extension
Status Awaiting decision
Received Last month
Plan thumbnail

Change of use from betting office (Sui Generis) to retail (Use Class E) at ground floor level, together with conversion of first floor to fa...

Type Change of use
Status Awaiting decision
Received Last month
Plan thumbnail

Change of use from a 6 bed dwelling (Use class C3) to a 8 bed HMO for 8 occupants (Use class Sui generis) together with enlarged vehicle cro...

Type Change of use
Status Awaiting decision
Received Last month
Plan thumbnail

Convert storage and one maisonette into two 2-bed flats with rear extension, roof terrace and bike store.

Type Change of use
Status Awaiting decision
Received 06 May 2025
Plan thumbnail

Change of Use from dwelling (Use Class C3) to 6 Bed HMO (Use Class C4)

Type Change of use
Status Awaiting decision
Received 01 Apr 2025
Plan thumbnail

Erection of dormers to side elevations with cladding and installation of juliette balconies to rear

Type House extension
Status Awaiting decision
Received 31 Mar 2025
Plan thumbnail

Erection of a third floor extension and a four storey rear extension together with alterations to fenestration

Type House extension
Status Awaiting decision
Received 24 Dec 2024
Plan thumbnail

Outline application for the erection of 31No dwellings including access onto Monkton Street, with all other matters reserved

Type New housing
Status Awaiting decision
Received 17 Dec 2024
Plan thumbnail

Prior notification of a proposed Change of use of an existing agricultural building into single dwelling (Use Class C3)

Type Change of use
Status Awaiting decision
Received 13 Dec 2024

Erection of 1no. 2 storey 4 bed dwelling, together with a new access to the highway and erection of 2m high front boundary wall and gates, t...

Type New housing
Status Awaiting decision
Received 27 Jan 2026

Ererction of 2 storey side extension to provide 1no. 2 bed dwelling including erection of front boundary wall, following demolition of exist...

Type New housing
Status Awaiting decision
Received Last month
Plan thumbnail

Erection of a 1No 3bed detached dwelling, including basement accomodation, with associated access and parking (self build)

Type New housing
Status Awaiting decision
Received Last month

Erection of a 3 storey building comprising 5no. 2 bed and 3no. 1 bed dwellings together with parking and bike storage following demolition o...

Type New housing
Status Awaiting decision
Received 26 Jan 2026

Change of use from shop with ancillary living accommodation to shop and 1no. self-contained flat, including alterations to shop front to cre...

Type Change of use
Status Awaiting decision
Received 08 Jan 2026
Plan thumbnail

Erection of a 4 storey building to accommodate 9no. 2 bed flats with undercroft parking, following excavation of front garden and landscapin...

Type New housing
Status Awaiting decision
Received 20 Jan 2026
Plan thumbnail

Change of use of 2no. buildings (Granary and Cow Shed) to 2no. 2 bed dwellings and 1no. 3 bed dwelling with single storey front extension to...

Type Change of use
Status Awaiting decision
Received 02 Jan 2026
Plan thumbnail

Refurbishment and extension of existing warehouse with ancillary offices (Use Class B8), including new loading docks to the north and enclos...

Type Industrial
Status Awaiting decision
Received 23 Dec 2025

Application for a Lawful Development Certificate for an existing dwellinghouse without conditions imposed by Planning Permission F/TH/98/048...

Type Change of use
Status Awaiting decision
Received 09 Jan 2026
Plan thumbnail

Change of use from commercial (Use Class E) to 5no 2-bed self-contained flats (Use Class C3) together with erection of two storey front exte...

Type Change of use
Status Awaiting decision
Received 16 Dec 2025

Erection of 1no single storey 2-bed detached dwelling following demolition of existing building (Part retrospective)

Type New housing
Status Awaiting decision
Received 22 Dec 2025
Plan thumbnail

Erection of 1no. 2 bed 2-storey dwelling with associated landscaping and formation of vehicular access onto St. Benet's Road, following demo...

Type New housing
Status Awaiting decision
Received 01 Dec 2025
Plan thumbnail

Reserved matters for health campus: commercial floorspace, 70 assisted-living flats, 80-bed care home and nursery.

Type Commercial
Status Awaiting decision
Received 03 Dec 2025

Alteration of roof from hip to gable to the side and rear, erection of 2 No. dormers to front, erection of 2No. dormers to side roof slope t...

Type House extension
Status Awaiting decision
Received 02 Dec 2025

Erection of 1no two storey 4-bed detached dwelling together with associated access, landscaping and parking, following demolition of existin...

Type New housing
Status Awaiting decision
Received 29 Sep 2025
Plan thumbnail

Erection of a two storey 1-bed detached dwelling, (self-build) together with associated access, landscaping and parking, following demolitio...

Type New housing
Status Awaiting decision
Received 13 Nov 2025
Plan thumbnail

Erection of three storey rear extension and refurbishment of the Maternity Unit, provision of car park and associated infrastructure includi...

Type House extension
Status Awaiting decision
Received 27 Oct 2025
Plan thumbnail

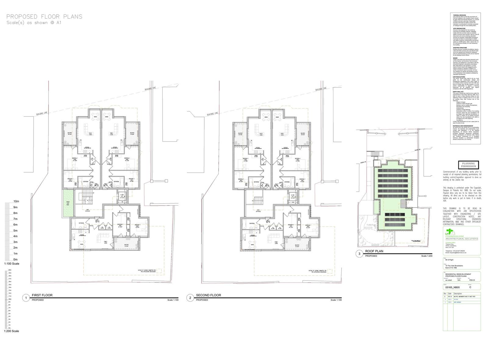
Erection of five two-storey four-bedroom detached dwellings with access, landscaping and parking.

Type New housing
Status Awaiting decision
Received 29 Oct 2025
Plan thumbnail

Retention of existing dwelling, erection of porch and 2no. single storey side extensions following demolition of existing garage canopy, tog...

Type House extension
Status Awaiting decision
Received 14 Oct 2025
Plan thumbnail

Erection of 1no 2 storey 3 bed detached dwelling with landscaping, vehicular access, bin and cycle storage (self build) together with a roof...

Type House extension
Status Awaiting decision
Received 02 Oct 2025

Three-storey extension providing 1 one-bed and 13 two-bed flats plus ground-floor commercial unit.

Type New housing
Status Awaiting decision
Received 09 Oct 2025
Plan thumbnail

Build two, three and four storey flats for 20 residences.

Type New housing
Status Awaiting decision
Received 07 Oct 2025

Change of use from residential dwelling (Use Class C3) to office (Use Class E(g)(i))

Type Change of use
Status Awaiting decision
Received 15 Sep 2025

Change amenity land to residential curtilage, erect single-storey side extension and retrospective 2m-high fence.

Type Change of use
Status Awaiting decision
Received 14 Apr 2025
Plan thumbnail

Change of use of ground floor shop (Use Class E) to Adult Gaming Centre (Sui Generis), together with erection of single storey rear extensio...

Type Change of use
Status Awaiting decision
Received 19 Sep 2025
Plan thumbnail

Outline for up to 150 dwellings with access, open space, infrastructure and a community building.

Type New housing
Status Awaiting decision
Received 12 Sep 2025
Plan thumbnail

Outline application for up to nine dwellings including access.

Type New housing
Status Awaiting decision
Received 29 Aug 2025
Plan thumbnail

Erection of 1no. two storey 3 bed detached dwelling with associated parking and garden following demolition of existing garage

Type New housing
Status Awaiting decision
Received 28 May 2025
Plan thumbnail

Change of use of first floor from public house (Use class Sui Generis) to 1no 1-bed self-contained flat, together with removal of flue.

Type Change of use
Status Awaiting decision
Received 18 Aug 2025

Change of use from retail (Class E) to two studio flats (Class C3) at ground floor.

Type Change of use
Status Unknown
Received 06 Aug 2025

Erection of 20no. 2 storey dwellings (comprising of 14no. 4 bed, 1no. 3 bed, 4no. 2 bed and 1no. 1 bed) and 1no. single storey retail unit (...

Type New housing
Status Awaiting decision
Received 07 Jul 2025
Plan thumbnail

Erection of 1no. 3 storey and basement level 5 bed dwelling and 1no. 2 storey annexe with enclosed swimming pool together with associated pa...

Type New housing
Status Awaiting decision
Received 30 Jun 2025
Plan thumbnail

Prior Approval for change of use from retail (Use Class E) to 1No dwelling (Use Class C3) (Retrospective)

Type Change of use
Status Unknown
Received 26 Feb 2025
Plan thumbnail

Outline for part two‑, part three‑storey building providing nine flats (8x2‑bed, 1x3‑bed) including access.

Type New housing
Status Awaiting decision
Received 23 Jun 2025

Convert ground-floor 2-bed flat into two 1-bed flats with rear extension and external staircase.

Type Change of use
Status Awaiting decision
Received 09 Jun 2025

Convert ground-floor hotel (C1) to one 2-bed flat (C3); add terrace, bin store, and alter fenestration.

Type Change of use
Status Awaiting decision
Received 03 Jun 2025

Change of use from bank to two commercial units and four 2-bed flats; shopfront/window alterations.

Type Change of use
Status Awaiting decision
Received 22 May 2025
Plan thumbnail

Outline for up to 135 dwellings and a shop, with access off Manston and Preston Roads.

Type New housing
Status Awaiting decision
Received 07 May 2025
Plan thumbnail

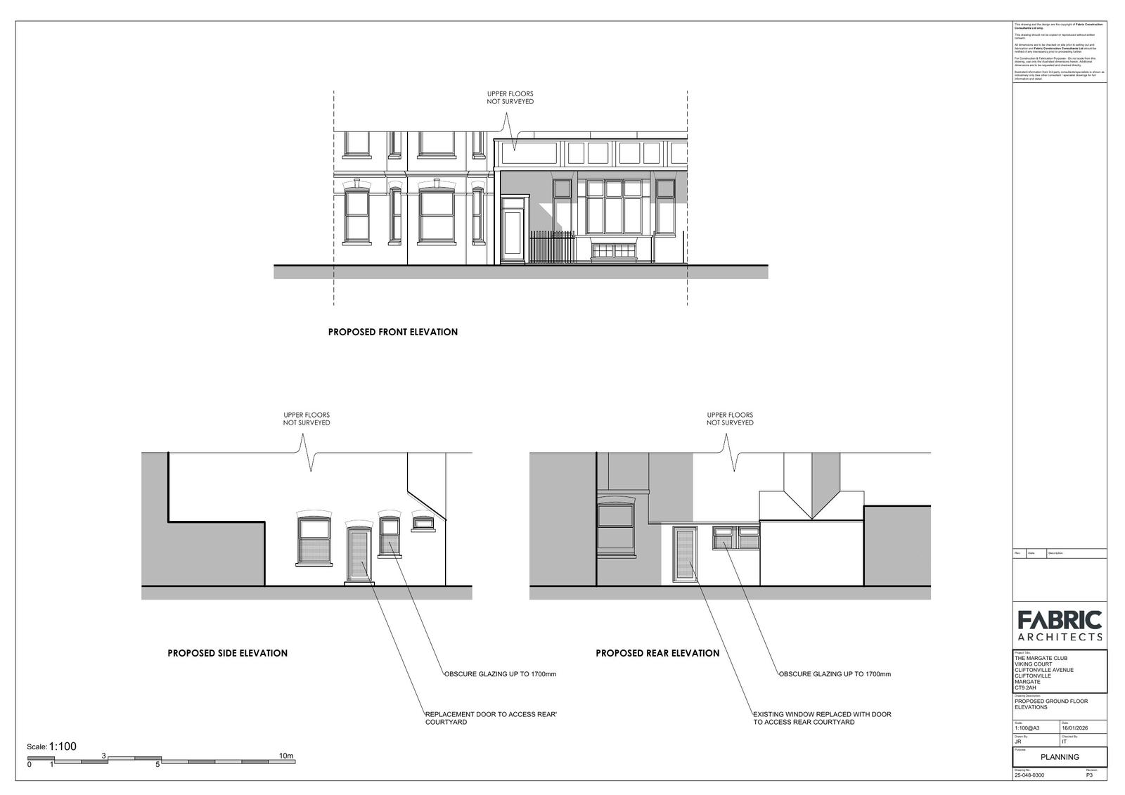
Change of use to flexible mixed-use comprising of learning and non-residential institutions (Use Class F1) and indoor sports and recreation ...

Type Change of use
Status Awaiting decision
Received 10 Jun 2025
Plan thumbnail

Convert single dwelling into one three-bed and one two-bed maisonette (external staircase works).

Type Change of use
Status Awaiting decision
Received 06 Jun 2025

Erection of 13 dwellings (mixed sizes) following demolition, with access, landscaping and parking.

Type New housing
Status Awaiting decision
Received 17 Mar 2025

Certificate for proposed change of wardens flat to a sheltered residential flat.

Type Change of use
Status Awaiting decision
Received 14 Apr 2025
Plan thumbnail

Erection of a three-storey building delivering two two-bedroom self-contained flats.

Type New housing
Status Awaiting decision
Received 31 Mar 2025
Plan thumbnail

Erection of buildings providing 56 flats and 35 houses (25 three-storey and 10 two-storey dwellings), with access and landscaping.

Type New housing
Status Awaiting decision
Received 26 Mar 2025
Plan thumbnail

Erection of one 3-bed and one 4-bed two-storey detached self-build dwellings with access and landscaping.

Type New housing
Status Awaiting decision
Received 13 Feb 2025

Roof alterations and rear dormer to form one new 2-bedroom self-contained flat.

Type House extension
Status Awaiting decision
Received 11 Dec 2024
Plan thumbnail

Change of use from shop to 3no. self-contained flats comprising 1no. 3 bed unit and 2no. 2 bed units together with erection of single storey...

Type Change of use
Status Awaiting decision
Received 09 Aug 2024
Plan thumbnail

Change of use of existing public house (Sui Generis) to commercial unit (Use Class E) at basement, ground and first floors, partial demoliti...

Type Change of use
Status Awaiting decision
Received 29 Jul 2024

Erection of two storey dwelling with decking to front elevation following the demolition of existing workshop

Type New housing
Status Awaiting decision
Received 02 Oct 2024
Plan thumbnail

Application for prior approval for change of use from coffee shop (Use Class E) to 1no. 2 bed flat (Use Class C3)

Type Change of use
Status Unknown
Received 11 Sep 2024

Prior Approval for the change of use of ground and first floor from Childrens Nursery (Use Class E) to 2no 1bed flats (Use Class C3)

Type Change of use
Status Unknown
Received 03 Sep 2024

Application for prior approval for change of use from commercial, business and service (Use Class E) to 10No flats (Use Class C3)

Type Change of use
Status Unknown
Received 12 Nov 2024
Plan thumbnail

Change of use of Pettman Depository building to create 18no. 2-bed self-contained flats with parking at ground floor level, replacement of w...

Type Change of use
Status Awaiting decision
Received 11 Oct 2024

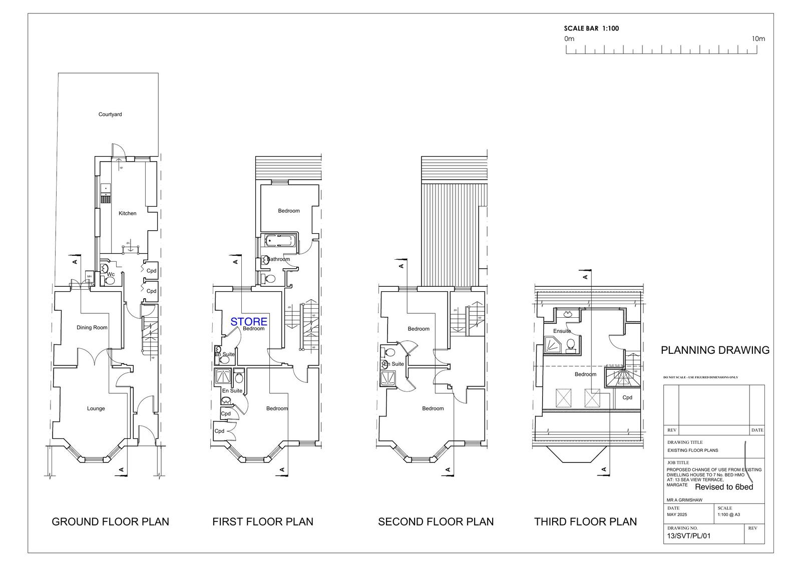
Change of use from a 4bed dwelling(C3) to a 4bed HMO for 4 occupants (C4)

Type Change of use
Status Awaiting decision
Received 20 Jan 2026

Application for a Certificate of lawful development for the partial demolition and replacement of an existing single-storey rear extension, ...

Type House extension
Status Awaiting decision
Received 09 Jan 2026
Plan thumbnail

Notification of a proposed change of use from retail (Class E) to 1no. 1-bed flat (Class C3) at ground floor level

Type Change of use
Status Awaiting decision
Received 30 Oct 2025
Plan thumbnail

Change of use from 1no 4-bed dwelling (Use Class C3) to 4-bed HMO (Use Class C4)

Type Change of use
Status Awaiting decision
Received 03 Dec 2025

Change of use from retail (E(a)) and flat (C3), to 1no. two bed flat and 1no. one bed flat (C3), together with the erection of a part two st...

Type Change of use
Status Awaiting decision
Received 26 Nov 2025
Plan thumbnail

Erection of a two storey rear extension to facilitate change of use of part of ground floor to 1no 1 bed dwelling and extension of first flo...

Type House extension
Status Awaiting decision
Received 12 Dec 2025
Plan thumbnail

Change of use of first-floor retail (Class E) to one one-bedroom flat (Class C3).

Type Change of use
Status Unknown
Received 17 Feb 2025
Plan thumbnail

Change of use of single dwelling to 1no. 1 bed flat and 1no. 3 bed maisonette flat, including erection of two storey rear extension with bay...

Type Change of use
Status Awaiting decision
Received 22 Oct 2025
Plan thumbnail

Erection of 1no two storey 3-bed detached dwelling and 1no single storey garage together with associated access, landscaping and parking, fo...

Type New housing
Status Awaiting decision
Received 26 Nov 2025
Plan thumbnail

Erection of 1no. two storey 2 bed detached dwelling with parking

Type New housing
Status Unknown
Received 03 Mar 2025
Plan thumbnail

Two new two-storey, three-bedroom dwellings with associated access, parking and landscaping.

Type New housing
Status Awaiting decision
Received 22 Sep 2025
Plan thumbnail

Erection of 1no. 2 bed single storey dwelling with associated parking and landscaping

Type New housing
Status Awaiting decision
Received 24 Oct 2025
Plan thumbnail

Erection of a third floor extension to create 1no 2-bed flat, and erection of two storey building to rear to create 1no 2-bed dwelling, toge...

Type House extension
Status Awaiting decision
Received 12 Nov 2025
Plan thumbnail

Lawful development certificate confirming existing use of two self-contained two-bedroom flats.

Type Change of use
Status Awaiting decision
Received 05 Nov 2025
Plan thumbnail

Erection of single storey rear extension to ground floor flat

Type House extension
Status Awaiting decision
Received 14 Nov 2025
Plan thumbnail

Conversion and creation of 1no 1-bed self-contained flat within the roof space, facilitated by the erection of a rear flat roof dormer toget...

Type New housing
Status Awaiting decision
Received 09 Dec 2025

Convert three retail units to three one-bed flats with rear single-storey extension and access ramp.

Type Change of use
Status Decided
Received 22 Jan 2025
Plan thumbnail

Change existing B2 garage to six two-bed self-contained flats with extensions, landscaping and parking.

Type Change of use
Status Decided
Received 22 Jan 2025
Plan thumbnail

Change of retail/studio to two one-bed flats with rear balcony, first-floor extension and alterations.

Type Change of use
Status Decided
Received 06 Jun 2025

Convert single dwelling into two two-bedroom self-contained flats (net gain one unit).

Type Change of use
Status Decided
Received 03 Jun 2025
Plan thumbnail

Two-storey front and side extensions and glazed first-floor lobby to retain ground-floor community use and create four flats above.

Type House extension
Status Decided
Received 12 Jun 2025

Three-storey extension to provide 15 two-bed flats and four ground-floor commercial units.

Type New housing
Status Decided
Received 02 Jan 2025
Plan thumbnail

Change of use from guesthouse to four 2-bed flats with two-storey rear extension and dormer.

Type Change of use
Status Decided
Received 03 Feb 2025

Convert three separate flats (C3) into one four-bedroom house in multiple occupation (C4).

Type Change of use
Status Decided
Received 17 Feb 2025

Certificate of lawful existing use for three self-contained flats.

Type Change of use
Status Decided
Received 17 Feb 2025

Outline application for four 2-bedroom terraced dwellings, all matters reserved.

Type New housing
Status Decided Appeal: Dismissed
Received 14 Feb 2025

Certificate of lawful use for two existing self-contained flats.

Type Change of use
Status Decided
Received 04 Mar 2025
Plan thumbnail

Change ground floor restaurant/takeaway to residential in association with existing dwelling.

Type Change of use
Status Decided
Received 19 Mar 2025

Erect two two-storey three-bedroom self-build dwellings with parking and landscaping.

Type New housing
Status Decided
Received 31 Mar 2025
Plan thumbnail

Convert ground/basement to dwelling and add upper extensions creating three 1‑bed and one 2‑bed flats.

Type Change of use
Status Decided
Received 28 Mar 2025

Erection of six two-storey three-bedroom dwellings following demolition.

Type New housing
Status Decided
Received 27 Mar 2025
Plan thumbnail

Change of use: restaurant and one flat converted to two self-contained flats with external alterations.

Type Change of use
Status Decided
Received 24 Apr 2025

Change upper floors from seven bedsits to three 1‑bed and one 2‑bed self-contained flats.

Type Change of use
Status Decided
Received 06 May 2025

Build 3-storey detached building providing 2 one-bed and 3 two-bed flats with landscaping.

Type New housing
Status Decided
Received 08 May 2025

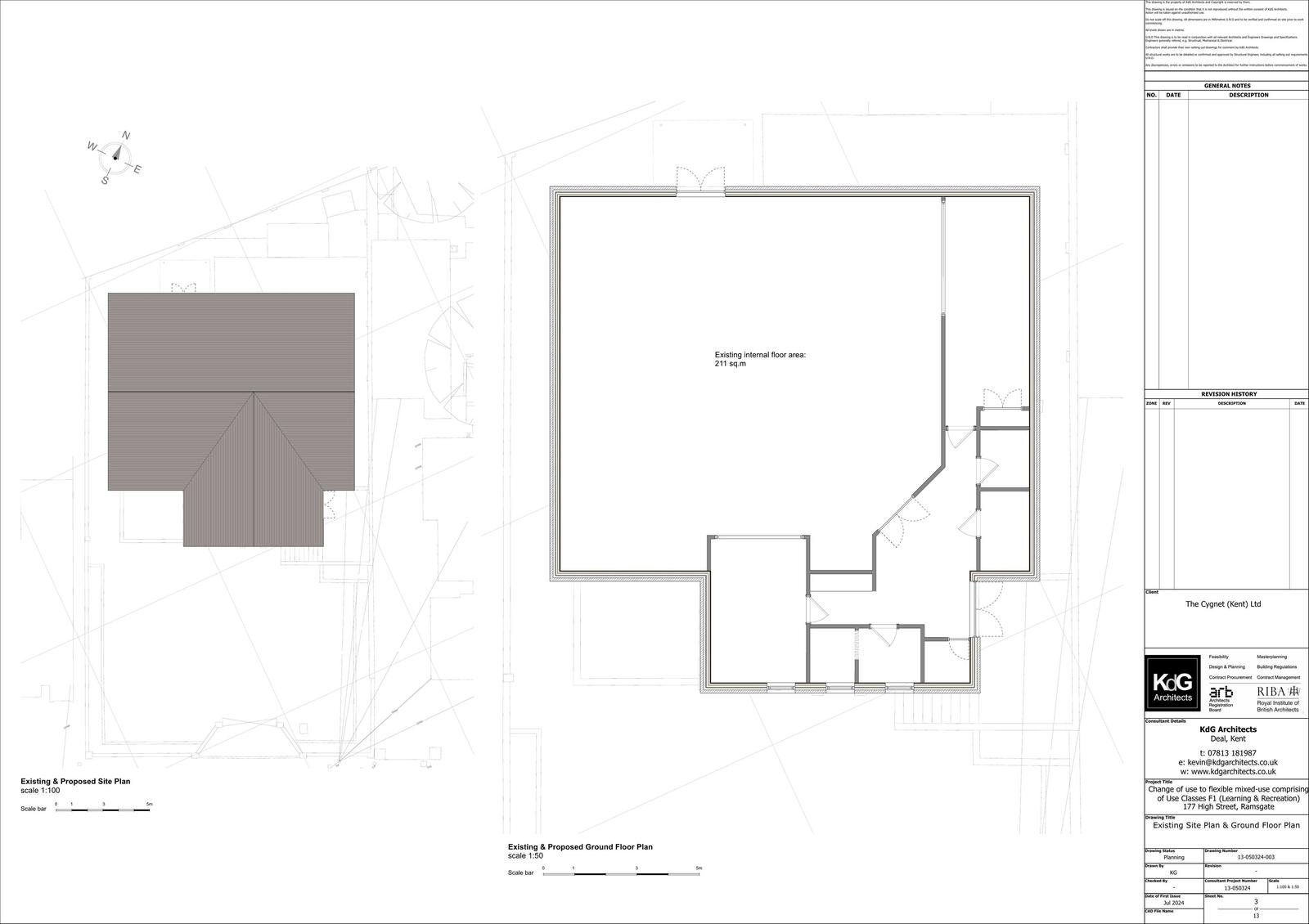
Retrospective erection of three single-storey F1 learning/non-residential institution buildings with parking and landscaping.

Type Commercial
Status Decided
Received 19 May 2025