← Back to Thanet District Council

Status

Awaiting decision Change of use
Received 06 May 2025
New dwellings 1

What you can do

Take Action

Make your voice heard. Authorities need to hear from people who support new homes.

Summary

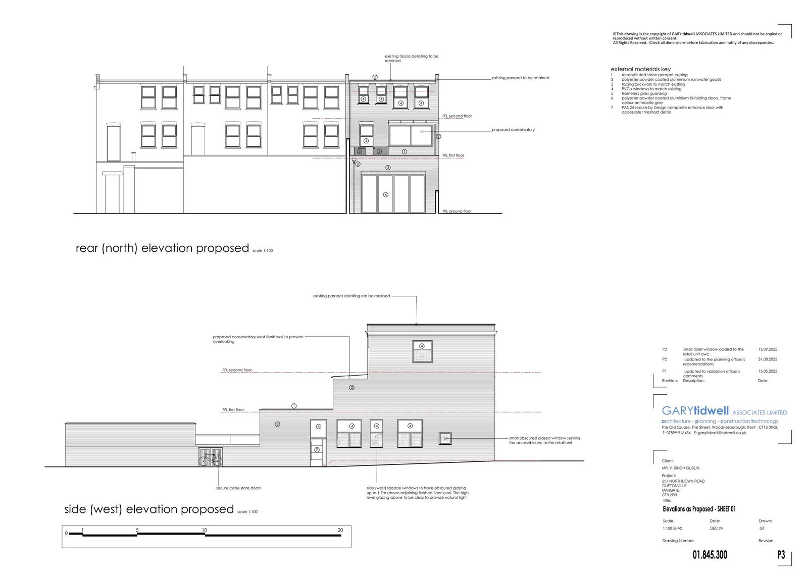
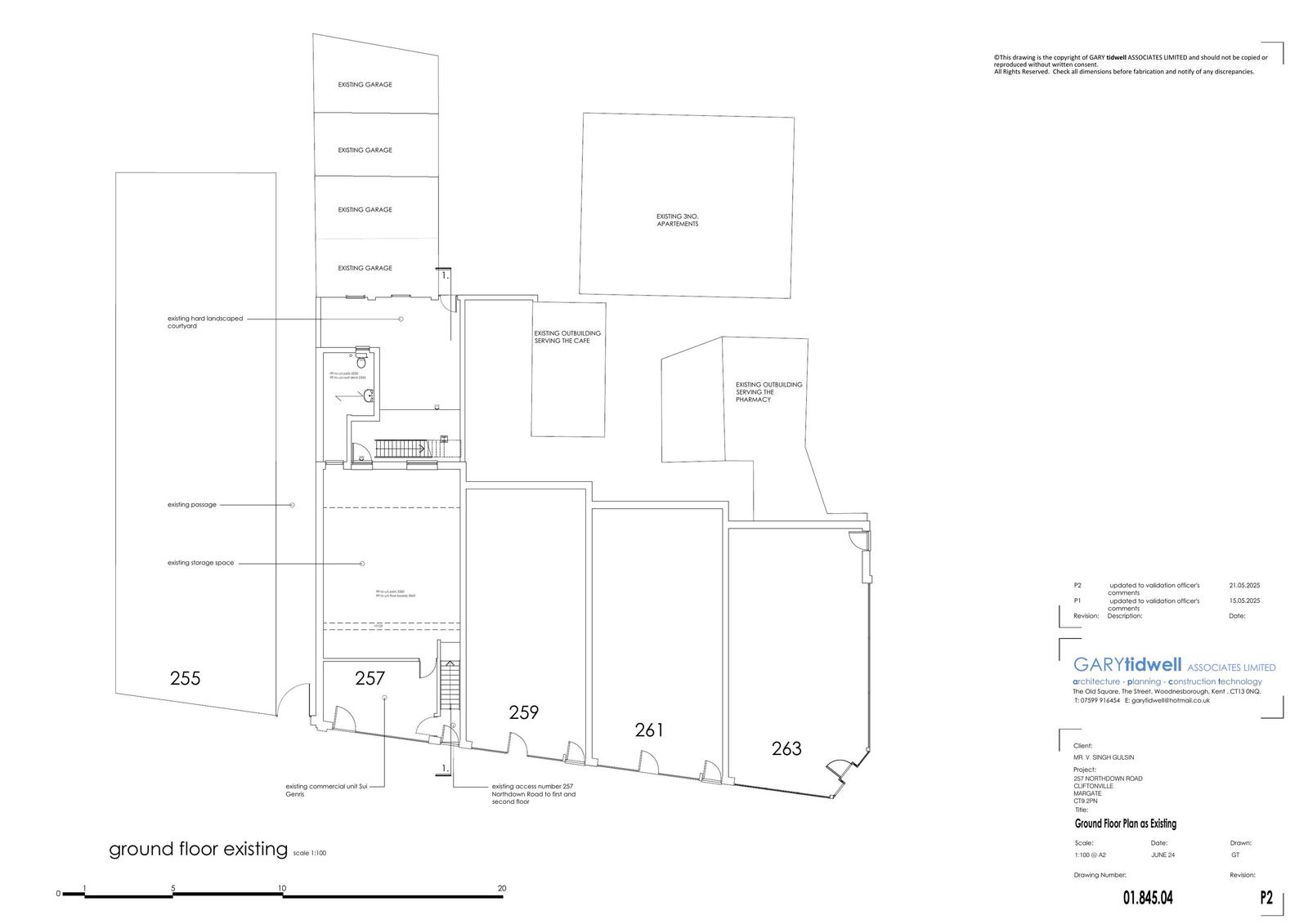
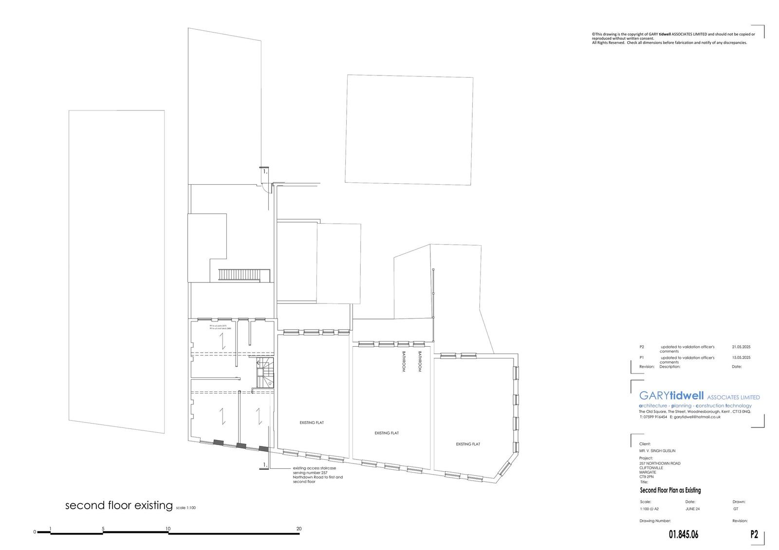
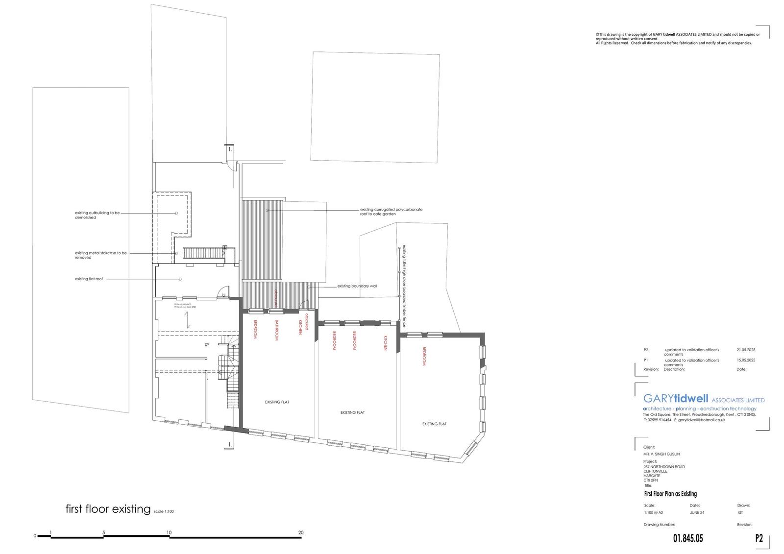
Convert storage and one maisonette into two 2-bed flats with rear extension, roof terrace and bike store.

Full Proposal

Change of use from storage and 1no maisonette to 2no 2-bed self-contained flats and ground and first floor rear extension with roof terrace, together with installation of fenestration to side elevation and erection of bike store, following demolition of existing garage

Detail pages

Documents

APPLICATION FORM
Application Form
Not downloaded · Council link
BLOCK PLAN PROPOSED
Amended Plan
Not downloaded · Council link
DESIGN AND ACCESS STATEMENT
Design & Access Statement
Not downloaded · Council link
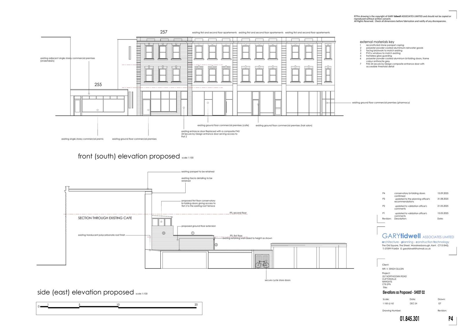
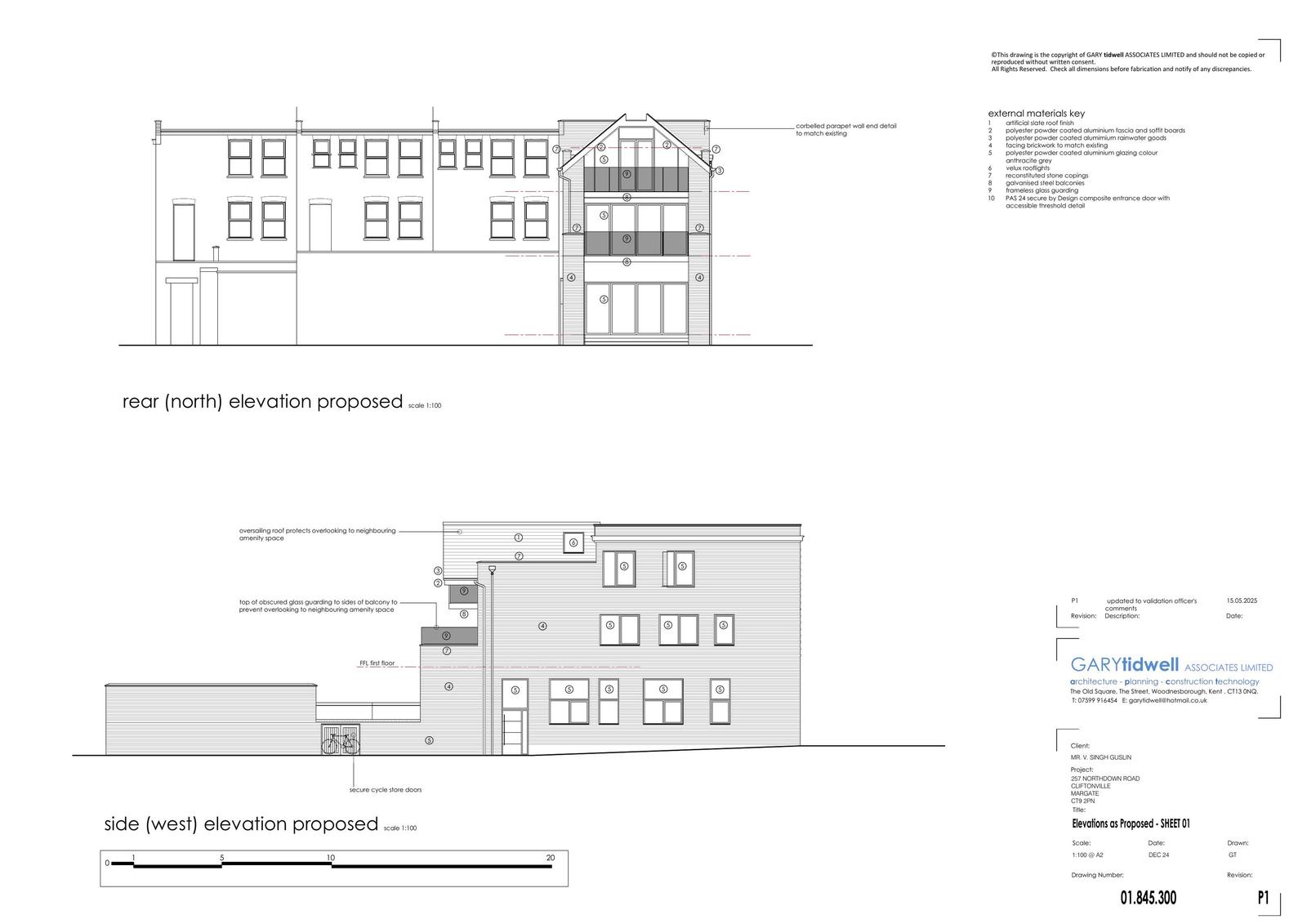
ELEVATIONS AS PROPOSED - SHEET 01
Amended Plan
Not downloaded · Council link
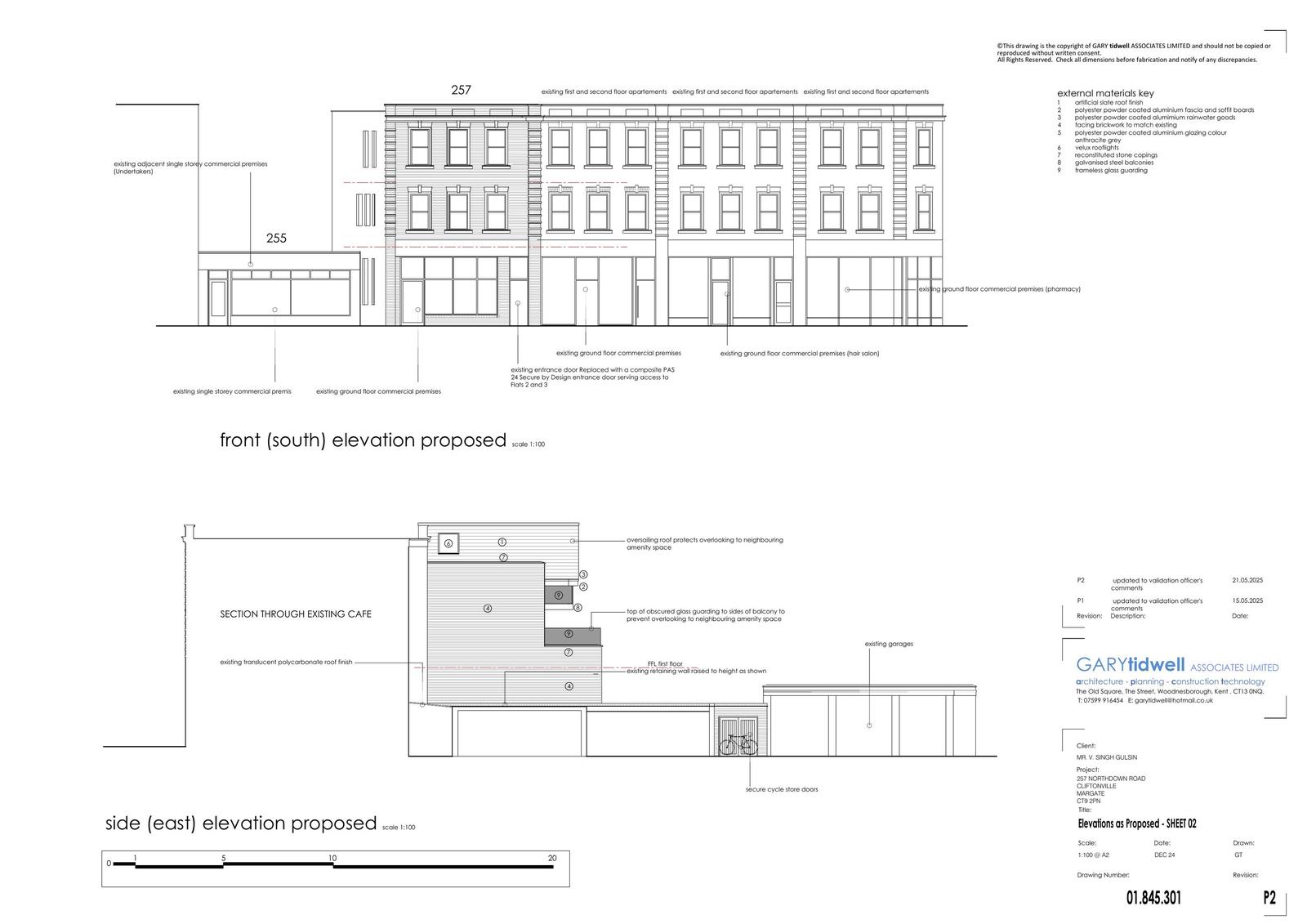
ELEVATIONS AS PROPOSED - SHEET 02
Amended Plan
Not downloaded · Council link
EXISTING ELEVATIONS
Plan/Drawing
Not downloaded · Council link
EXISTING FIRST FLOOR PLAN
Plan/Drawing
Not downloaded · Council link
EXISTING GROUND FLOOR PLAN
Plan/Drawing
Not downloaded · Council link
EXISTING SECOND FLOOR PLAN
Superseded
Not downloaded · Council link
FIRST FLOOR PLAN AS PROPOSED
Amended Plan
Not downloaded · Council link
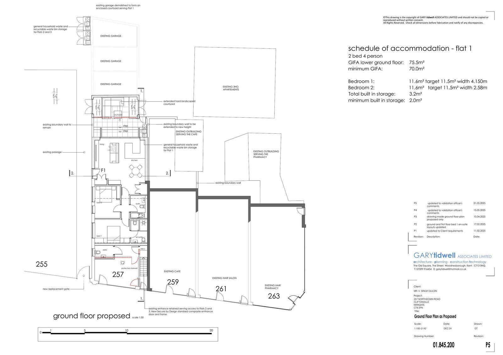
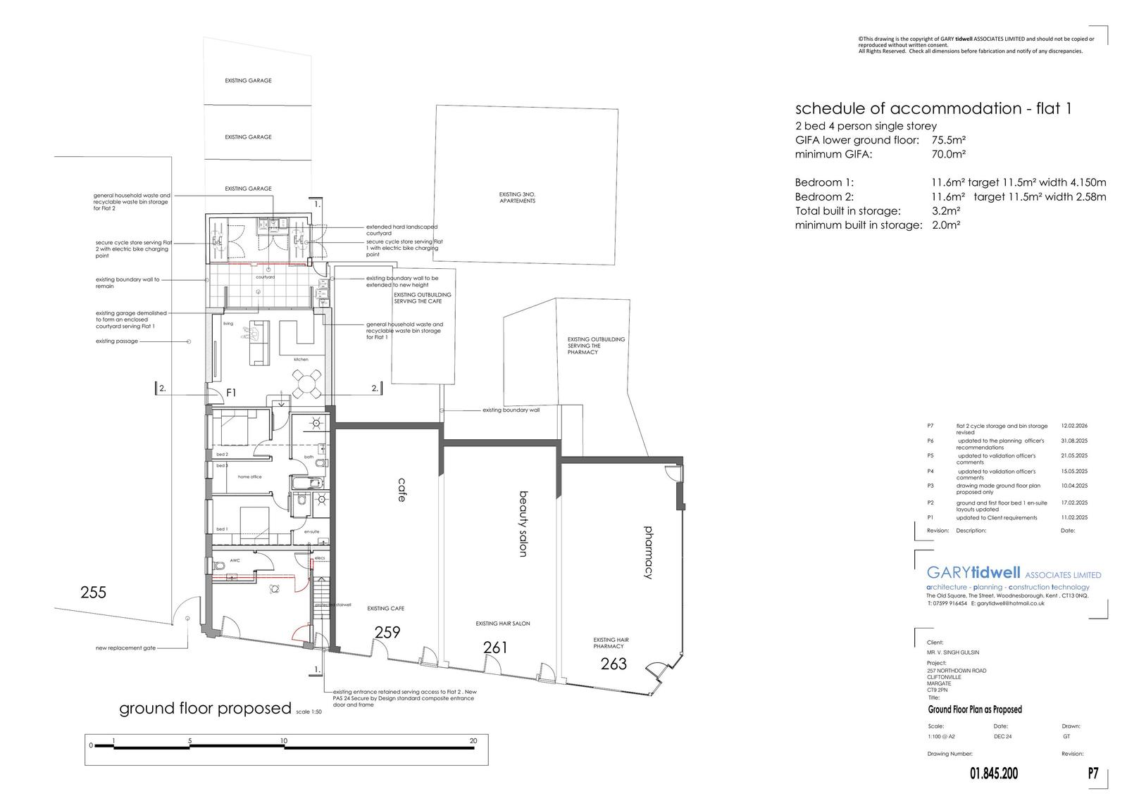
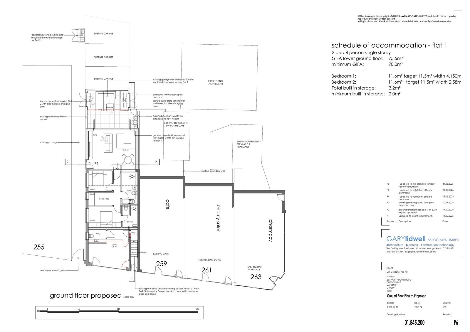
GROUND FLOOR PLAN AS PROPOSED
Amended Plan
Not downloaded · Council link
HIGHWAYS
Consultee Comment
Not downloaded · Council link
HIGHWAYS
Consultee Comment
Not downloaded · Council link
HRA
Other
Not downloaded · Council link
LOCATION PLAN AND EXISTING BLOCK PLAN
Plan/Drawing
Not downloaded · Council link
OBJECTS
Public Comment
Not downloaded · Council link
OBJECTS
Public Comment
Not downloaded · Council link
PROPOSED BLOCK PLAN
Superseded
Not downloaded · Council link
PROPOSED FIRST FLOOR PLAN
Superseded
Not downloaded · Council link
PROPOSED FRONT AND SIDE ELEVATIONS
Superseded
Not downloaded · Council link
PROPOSED GROUND FLOOR PLAN
Superseded
Not downloaded · Council link
PROPOSED ROOF PLAN
Superseded
Not downloaded · Council link
PROPOSED SECOND FLOOR PLAN
Superseded
Not downloaded · Council link
PROPOSED SECTIONS
Superseded
Not downloaded · Council link
PROPOSED SIDE AND REAR ELEVATIONS
Superseded
Not downloaded · Council link
ROOF PLAN AS PROPOSED
Amended Plan
Not downloaded · Council link
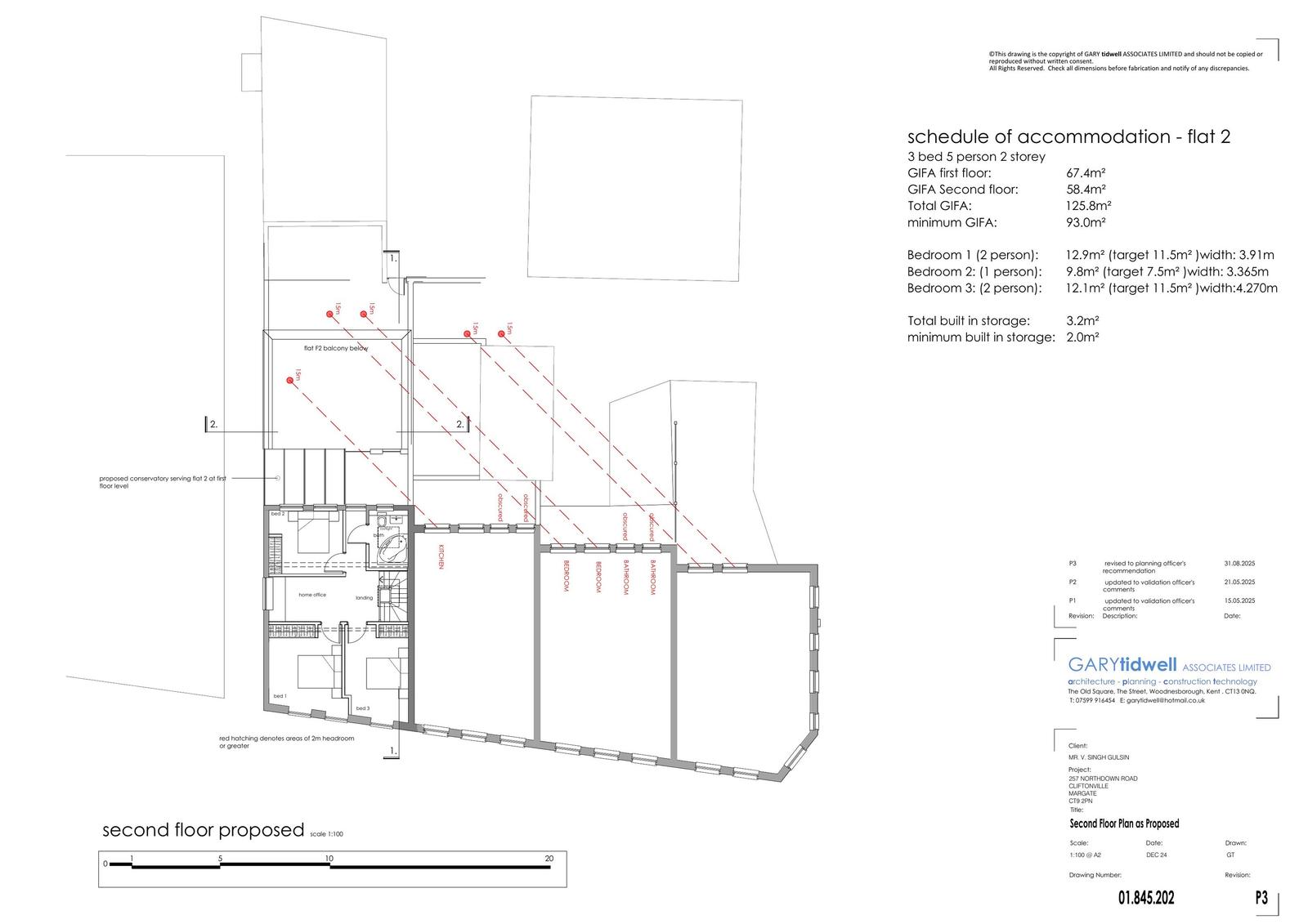
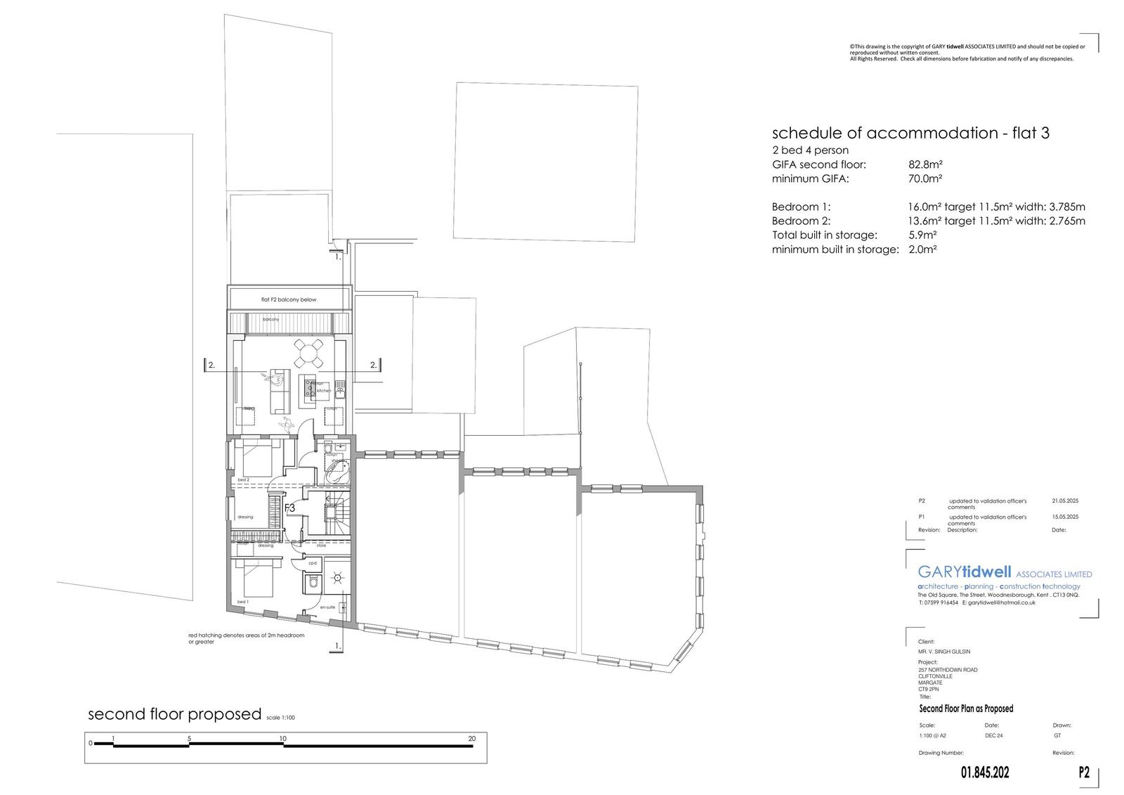
SECOND FLOOR PLAN AS PROPOSED
Amended Plan
Not downloaded · Council link
SECTIONS AS PROPOSED
Amended Plan
Not downloaded · Council link
SOUTHERN WATER
Consultee Comment
Not downloaded · Council link
SOUTHERN WATER-
Consultee Comment
Not downloaded · Council link
SOUTHERN WATER-PLAN
Consultee Comment
Not downloaded · Council link
SOUTHERN WATER-PLAN
Consultee Comment
Not downloaded · Council link