← Thanet District Council

Status

Awaiting decision Change of use
Received
10 Jun 2025
New homes
0

Full proposal

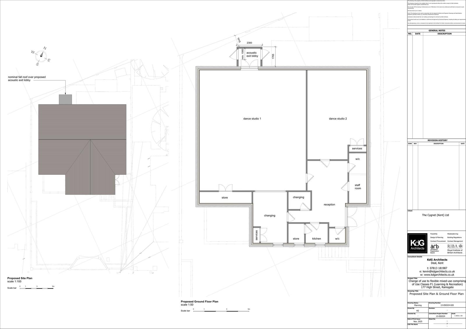
Change of use to flexible mixed-use comprising of learning and non-residential institutions (Use Class F1) and indoor sports and recreation (Use Class E(d)) (Retrospective)

Documents

APPLICATION FORM - WITHOUT PERSONAL DATA
Application Form
Not yet archived · Original link
CLASS TIMETABLE
Supporting Documents
Not yet archived · Original link
EMAIL CORRESPONDENCE REGARDING CLASSES
Correspondence
Not yet archived · Original link
ENV HEALTH
Consultee Comment
Not yet archived · Original link
ENV HEALTH
Consultee Comment
Not yet archived · Original link
ENV HEALTH
Consultee Comment
Not yet archived · Original link
ENV HEALTH
Consultee Comment
Not yet archived · Original link
ENV HEALTH
Consultee Comment
Not yet archived · Original link
EXISTING FRONT AND SIDE ELEVATION
Superseded
Not yet archived · Original link
EXISTING SIDE AND REARF ELEVATION
Superseded
Not yet archived · Original link
HIGHWAYS
Consultee Comment
Not yet archived · Original link
LOCATION AND BLOCK PLANS
Plan/Drawing
Not yet archived · Original link
NOISE ASSESSMENT PAGE 12 REDACTED
Report
Not yet archived · Original link
NOISE IMPACT ASSESSMENT REDACTED
Report
Not yet archived · Original link
NOISE IMPACT ASSESSMENT REDACTED PAGE 12
Report
Not yet archived · Original link
OBJECTION
Public Comment
Not yet archived · Original link
OBJECTS
Public Comment
Not yet archived · Original link
PLANNING STATEMENT
Statement
Not yet archived · Original link
PROPOSED FRONT (SOUTH) AND SIDE (EAST) ELEVATIONS
Plan/Drawing
Not yet archived · Original link
PROPOSED REAR (NORTH) AND SIDE (WEST) ELEVATIONS
Plan/Drawing
Not yet archived · Original link
SUPPORTS
Consultee Comment
Not yet archived · Original link

Have your say

Your comment matters. Councils must consider every representation that raises material planning considerations.

Write a comment