← Thanet District Council

Status

Awaiting decision Commercial
Received
21 Oct 2025
New homes
0

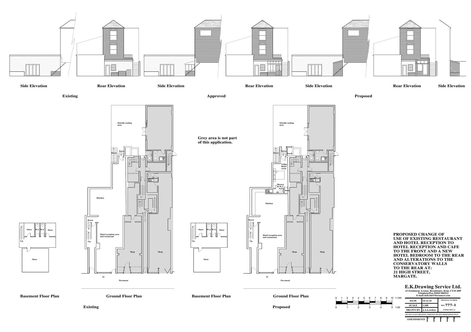
Full proposal

Erection of extension to rear to facilitate the creation of habitable room in association with the existing hotel

Documents

Design & Access Statement
Archived · Original link
Plan/Drawing
Archived · Original link
Plan/Drawing
Archived · Original link

Have your say

Your comment matters. Councils must consider every representation that raises material planning considerations.

Write a comment