← Thanet District Council

Status

Awaiting decision House extension
Received
02 Jan 2026
New homes
0

Full proposal

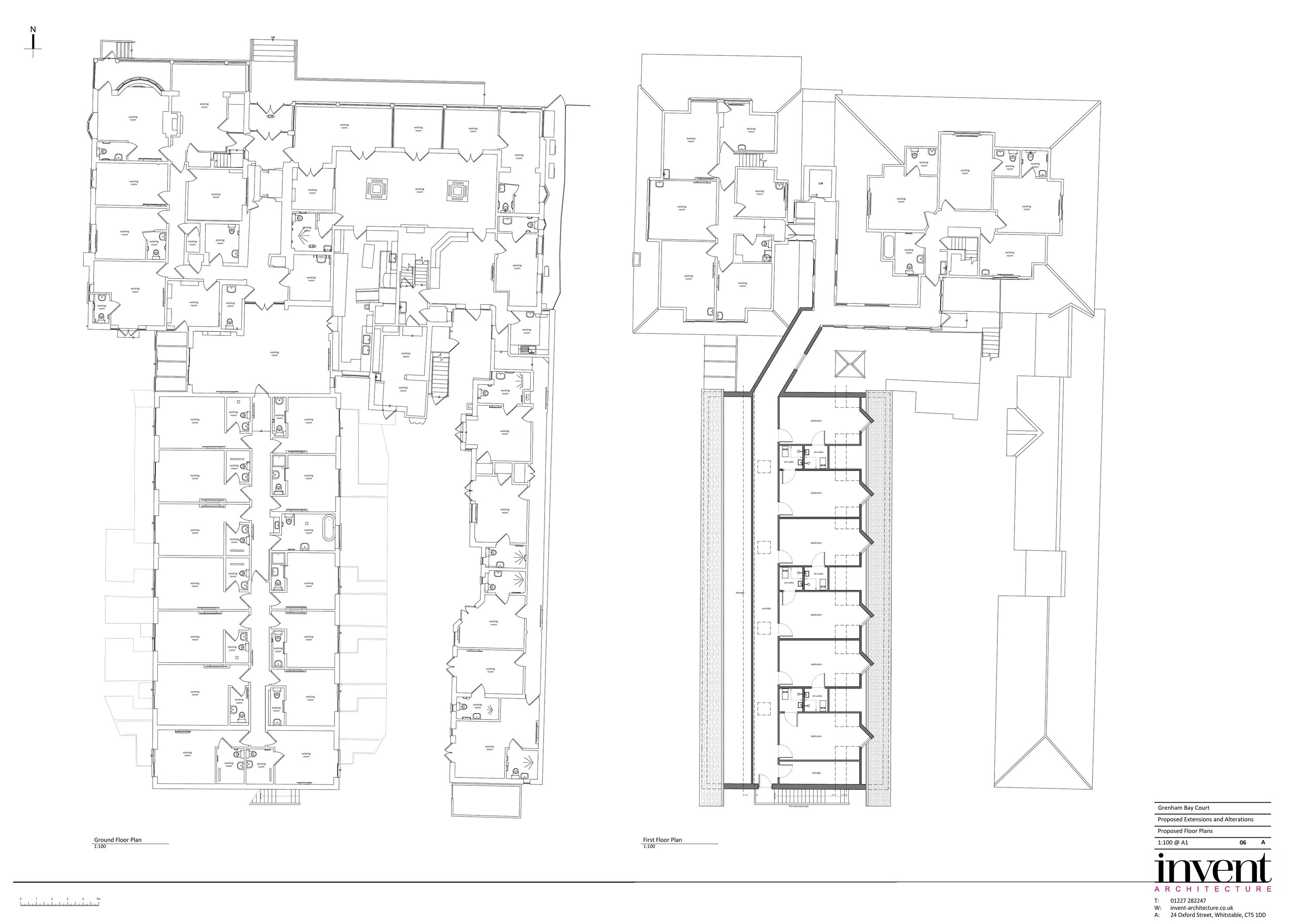
Erection of first floor rear extension, erection of 6no. dormer windows to existing rear projection and alterations to roof, together with installation of external staircase

Documents

Plan/Drawing
Archived · Original link
Plan/Drawing
Archived · Original link
Plan/Drawing
Archived · Original link
Plan/Drawing
Archived · Original link
Plan/Drawing
Archived · Original link
Plan/Drawing
Archived · Original link
Plan/Drawing
Archived · Original link

Have your say

Your comment matters. Councils must consider every representation that raises material planning considerations.

Write a comment