← Thanet District Council

Status

Awaiting decision Change of use
Received
Last month
New homes
1

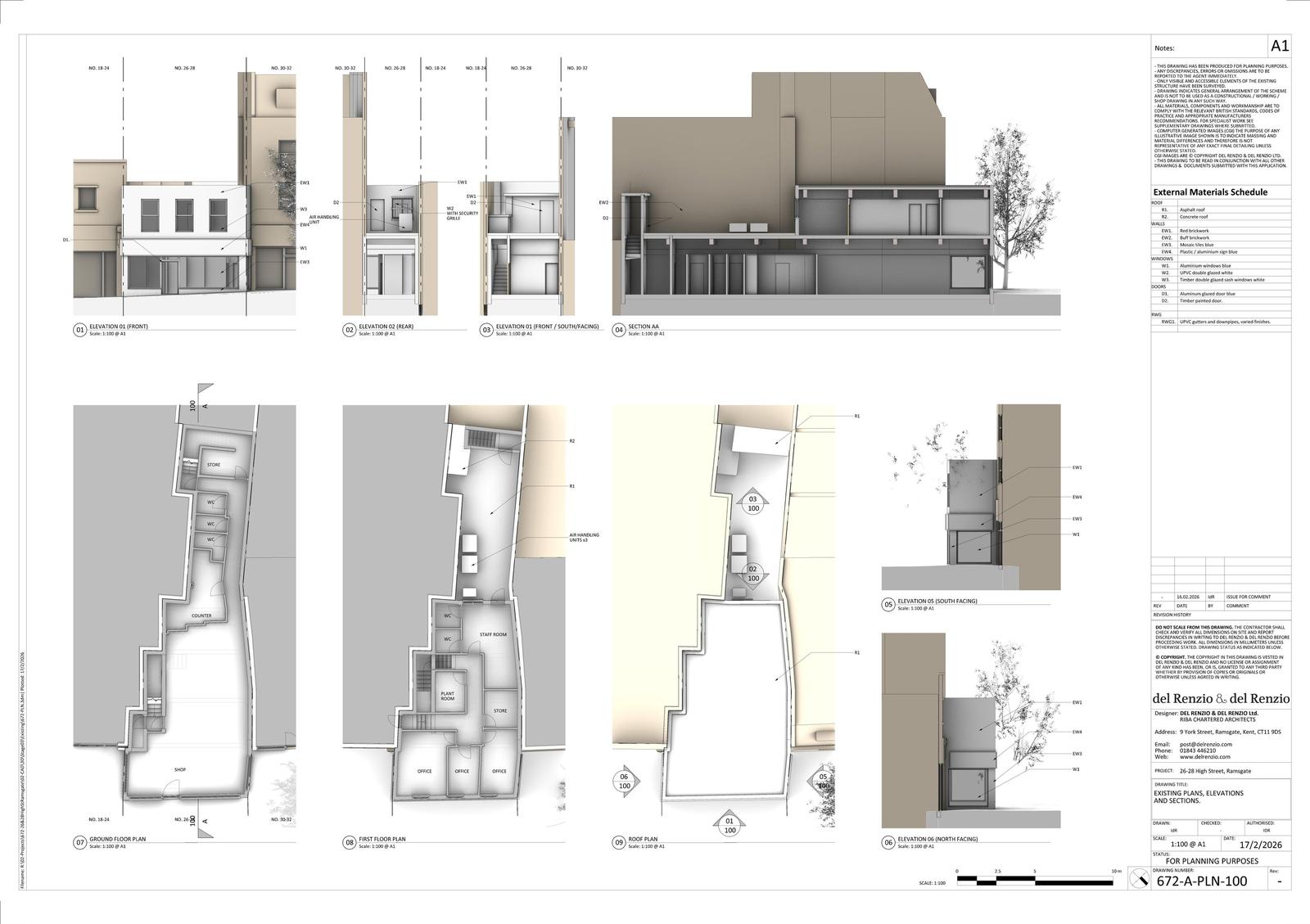
Full proposal

Change of use from betting office (Sui Generis) to retail (Use Class E) at ground floor level, together with conversion of first floor to facilitate 1no. 2-bed self contained flat, including alterations to shop front to create separate access for the first floor flat, creation of first floor roof terrace and replacement of tiles on front elevation.

Have your say

Your comment matters. Councils must consider every representation that raises material planning considerations.

Write a comment