← Thanet District Council

Status

Awaiting decision House extension
Received
19 Jan 2026
New homes
0

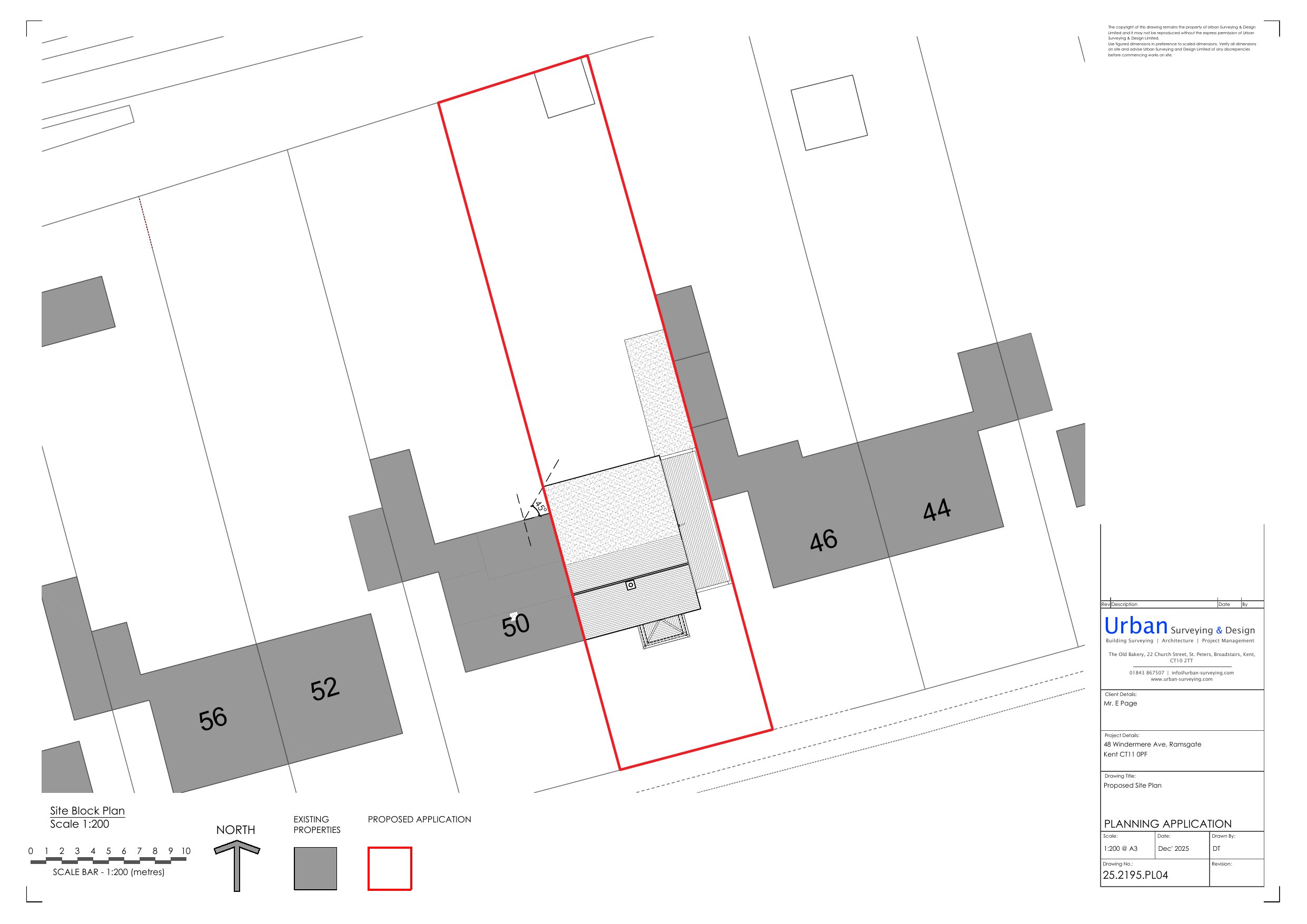
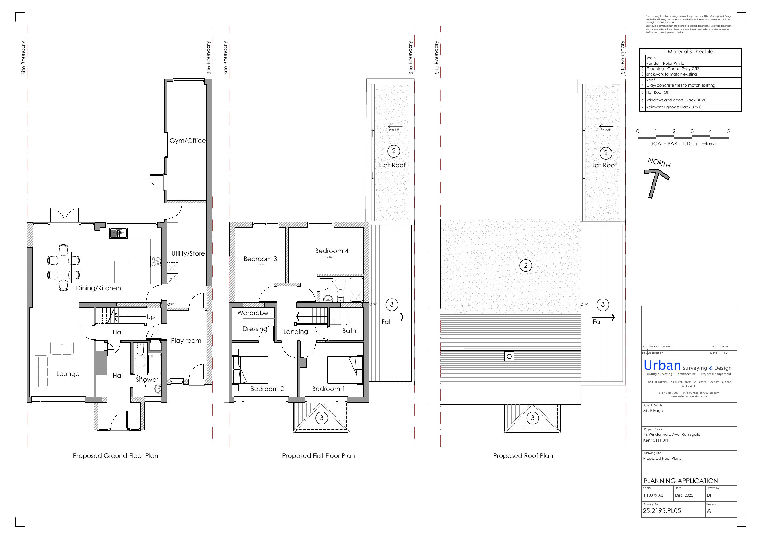
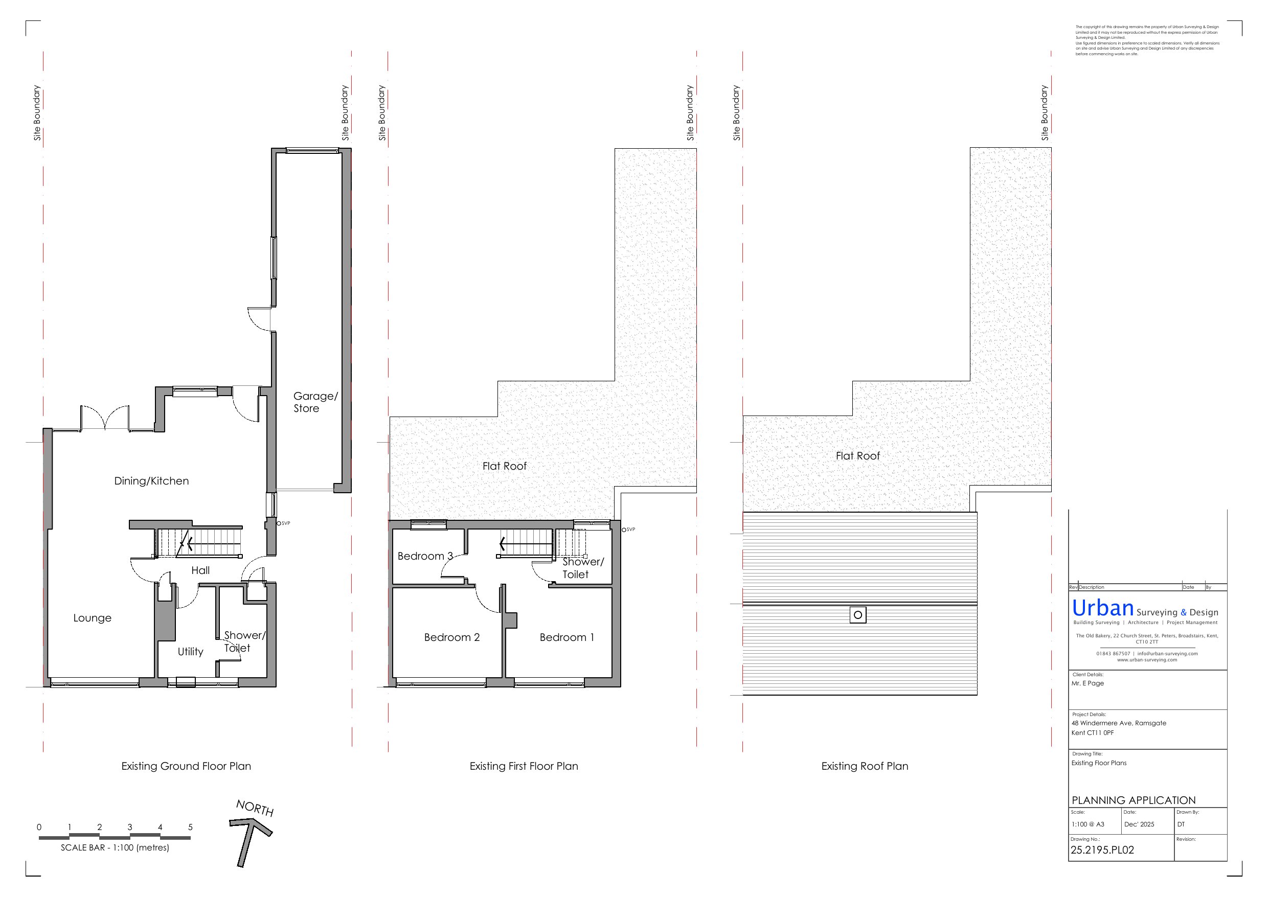
Full proposal

Erection of a front porch, erection of a single storey side extension including change of use of existing garage, erection of single storey rear infill extension and erection of first floor extension

Documents

Design & Access Statement
Archived · Original link
Plan/Drawing
Archived · Original link
Plan/Drawing
Archived · Original link
Plan/Drawing
Archived · Original link
Plan/Drawing
Archived · Original link
Plan/Drawing
Archived · Original link

Have your say

Your comment matters. Councils must consider every representation that raises material planning considerations.

Write a comment