← Thanet District Council

Status

Awaiting decision House extension
Received
04 Feb 2026
New homes
0

Full proposal

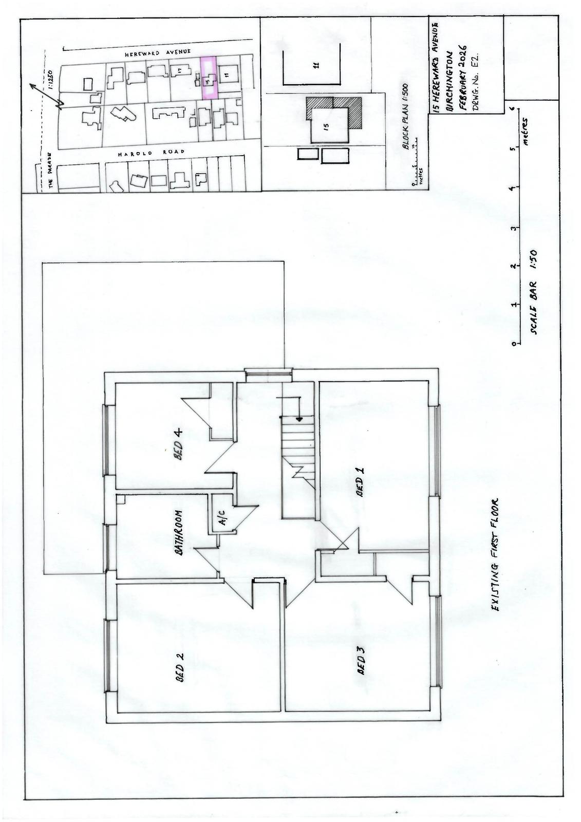
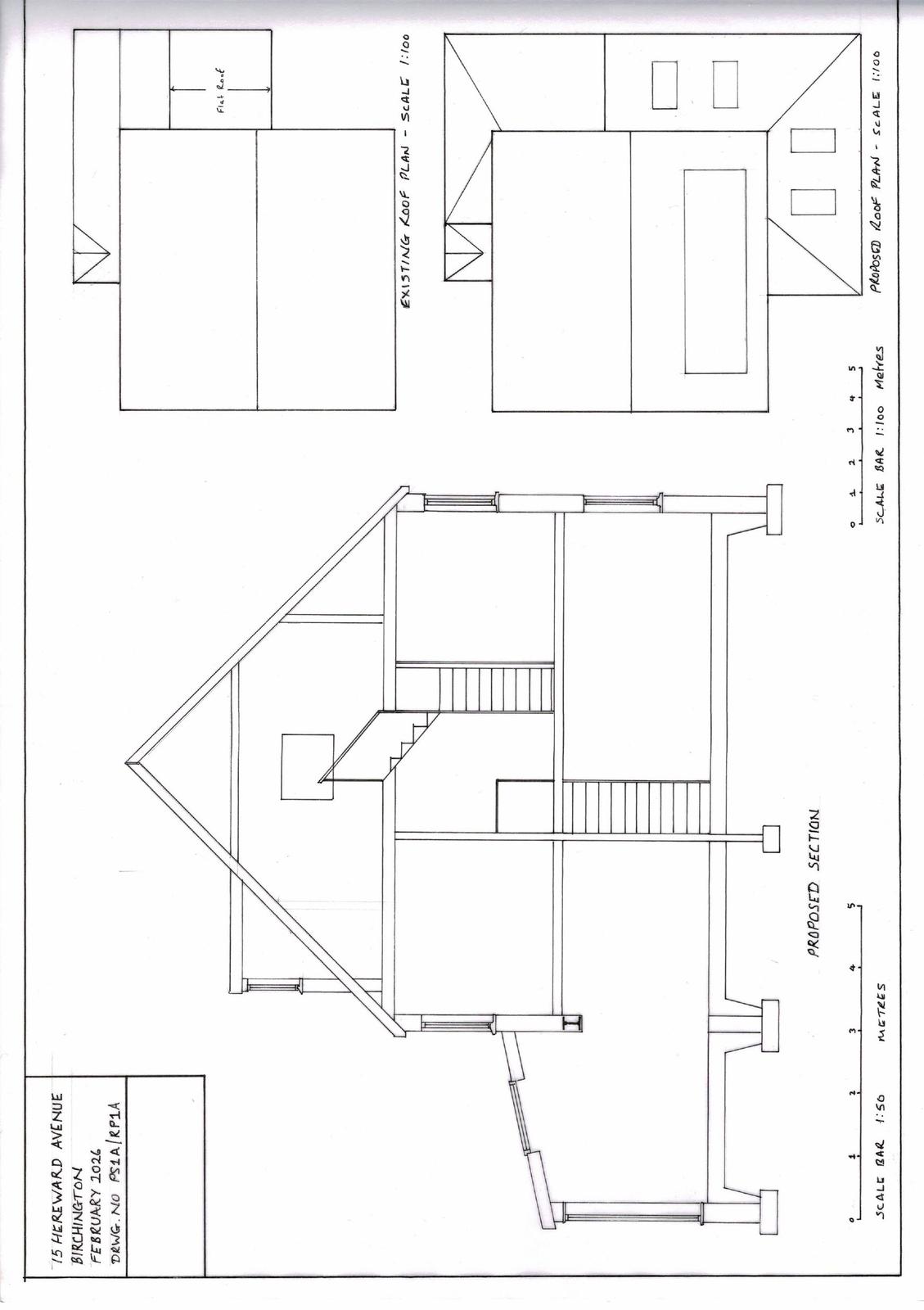
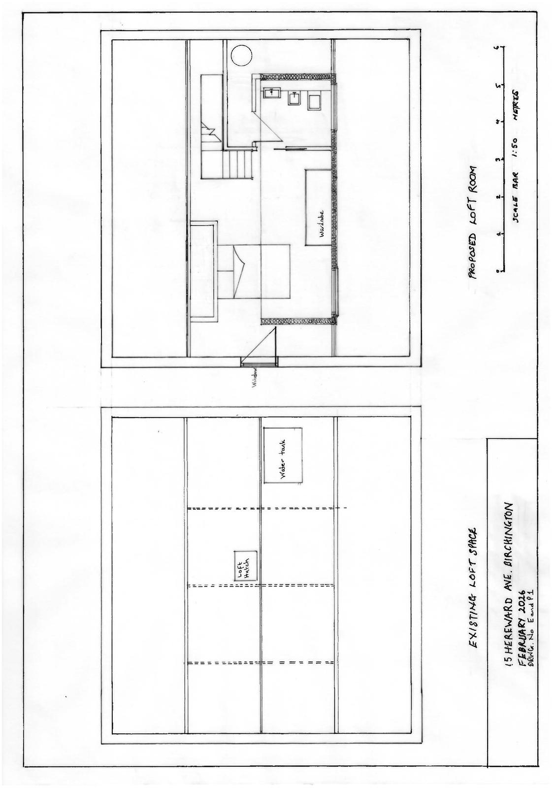
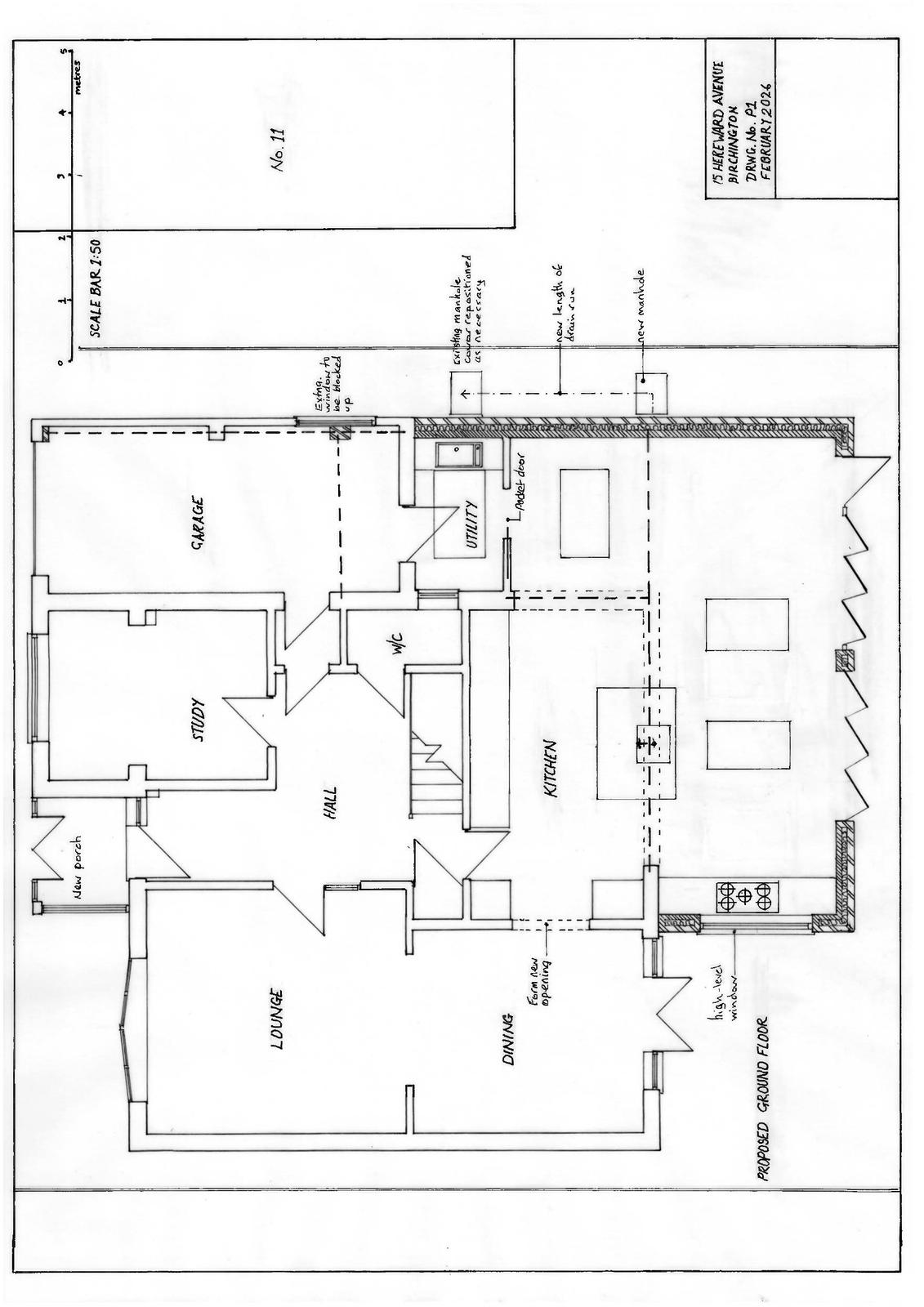
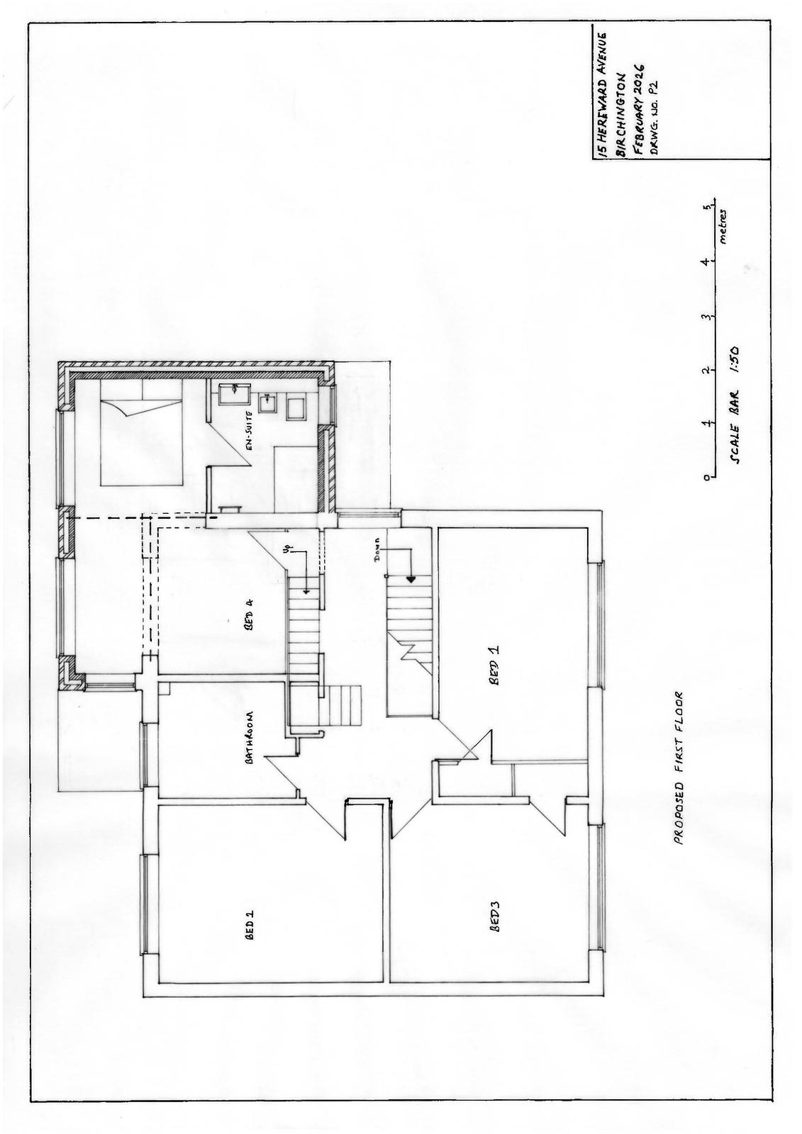
Erection of a first floor front and side extension, a single storey rear extension and 1no dormer to rear

Have your say

Your comment matters. Councils must consider every representation that raises material planning considerations.

Write a comment