← Thanet District Council

Status

Awaiting decision Change of use
Received
13 Dec 2024
New homes
0

Full proposal

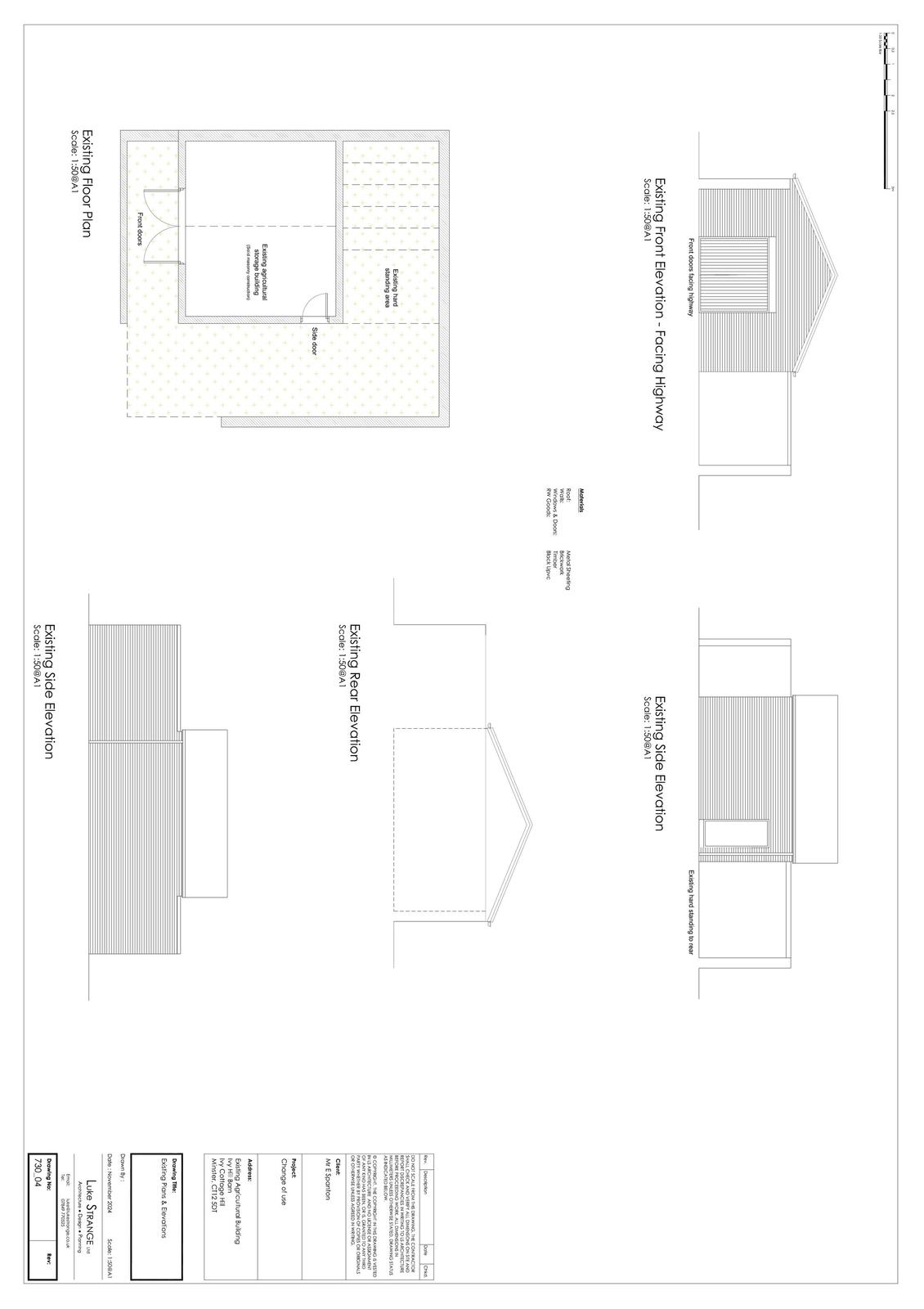
Prior notification of a proposed Change of use of an existing agricultural building into single dwelling (Use Class C3)

Documents

Report
Archived · Original link
Consultee Comment
Archived · Original link
Consultee Comment
Archived · Original link
Consultee Comment
Archived · Original link
Consultee Comment
Archived · Original link
Block Plan
Archived · Original link
Plan/Drawing
Archived · Original link
Consultee Comment
Archived · Original link
Consultee Comment
Archived · Original link
Consultee Comment
Archived · Original link
Consultee Comment
Archived · Original link
Amended Plan
Archived · Original link
Plan/Drawing
Archived · Original link
Plan/Drawing
Archived · Original link
Block Plan
Archived · Original link
Consultee Comment
Archived · Original link

Have your say

Your comment matters. Councils must consider every representation that raises material planning considerations.

Write a comment