← Watford Borough Council

Status

Pending consideration Change of use
Received
01 Dec 2025
New homes
3

Full proposal

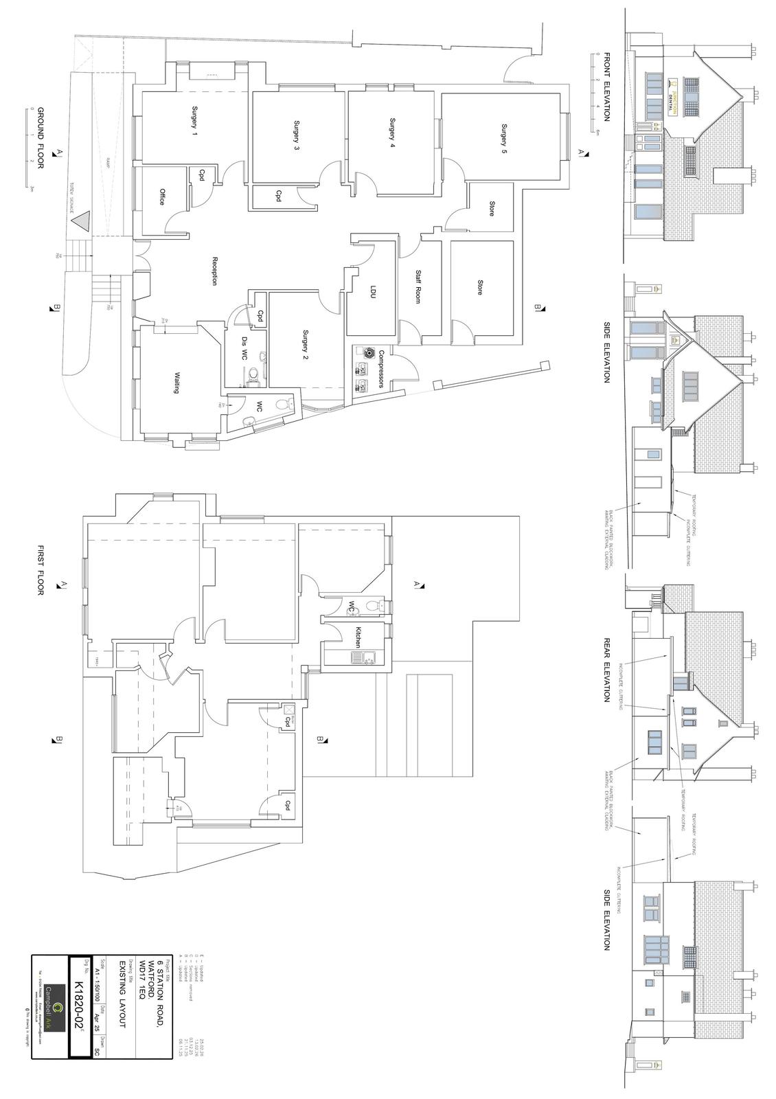
Rear extension and change of use of upper floors to create 3 x 1 bedroom apartments and other associated works - amended plans

Documents

Application Form
Archived · Original link
CIL
Consultee Comment
Archived · Original link
CIL Form
Archived · Original link
Correspondence
Archived · Original link
Report
Archived · Original link
Consultee Comment
Archived · Original link
Consultee Comment
Archived · Original link

Have your say

Your comment matters. Councils must consider every representation that raises material planning considerations.

Write a comment