← All councils

Recent applications

The most recent records we hold for this council (up to 200).

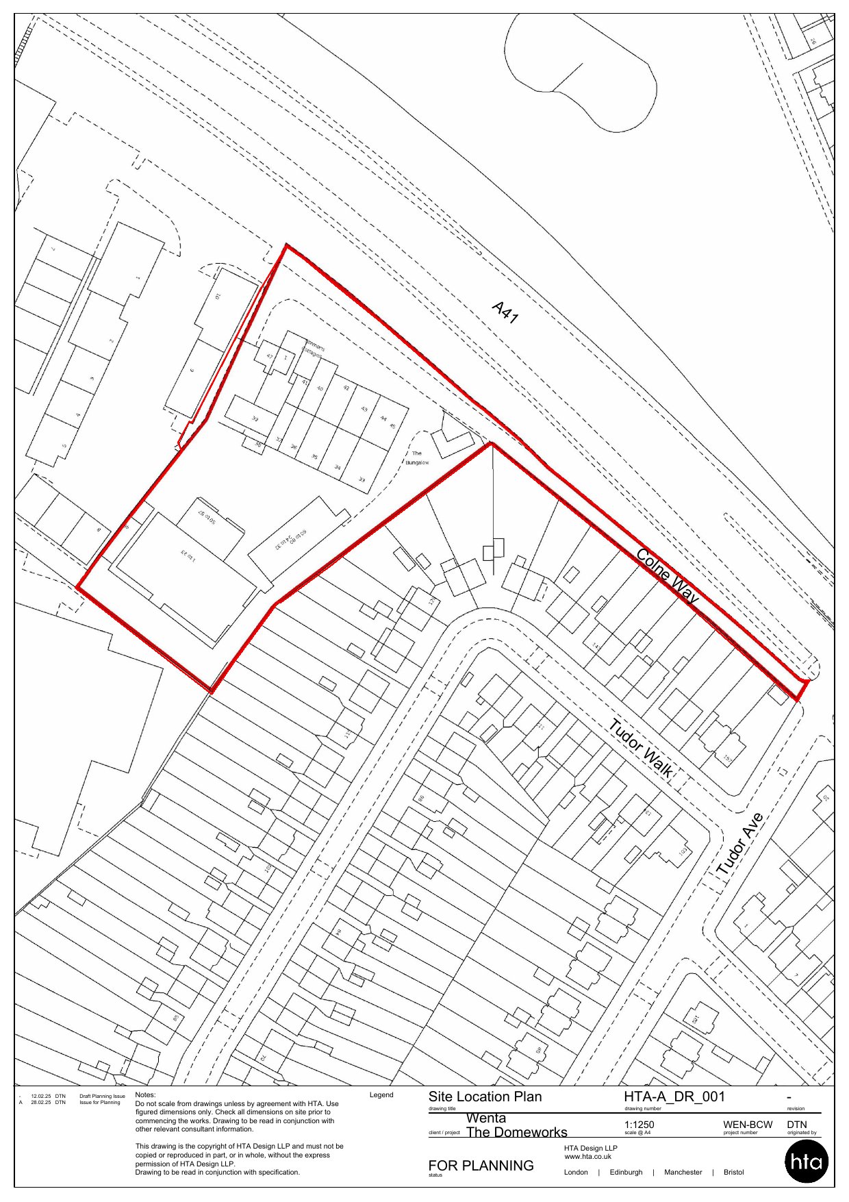
Removal of existing single storey rear extension and erection of a part ground and first floor extension and conversion of garage into habit...

Type House extension
Status Pending consideration
Received 30 Jan 2026

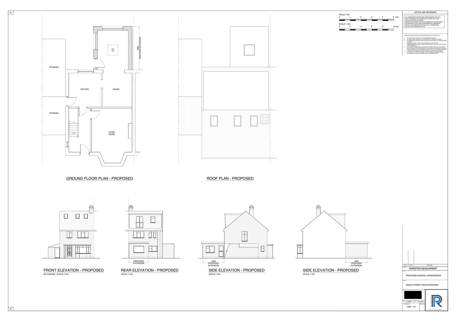
The erection of a single storey rear extension which would extend beyond the rear wall of the original house by 6.00m for which the maximum ...

Type House extension
Status Approval Not Required
Received 27 Jan 2026

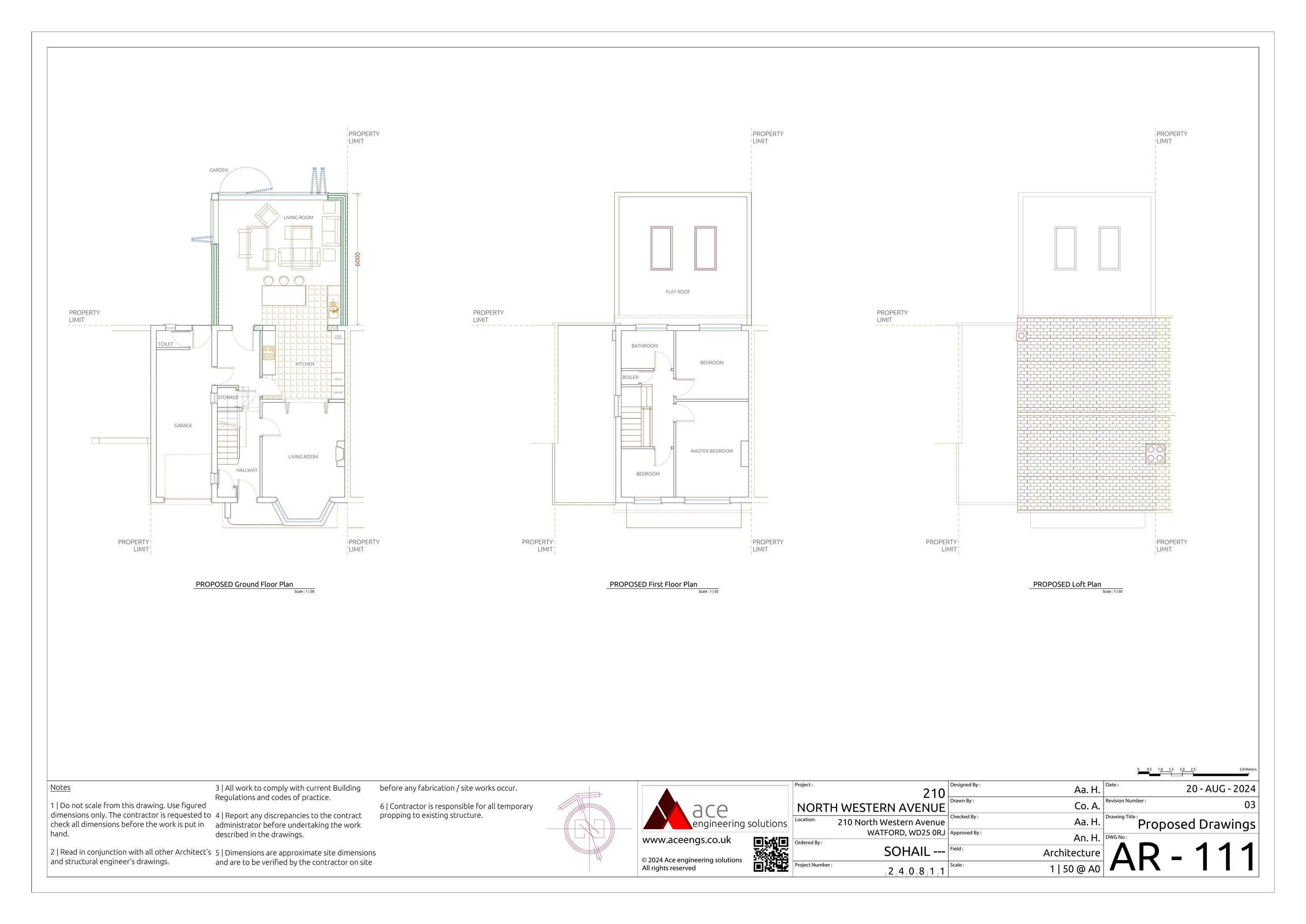
Erection of proposed double storey side extension and extension to porch

Type House extension
Status Pending Decision
Received 26 Jan 2026
Plan thumbnail

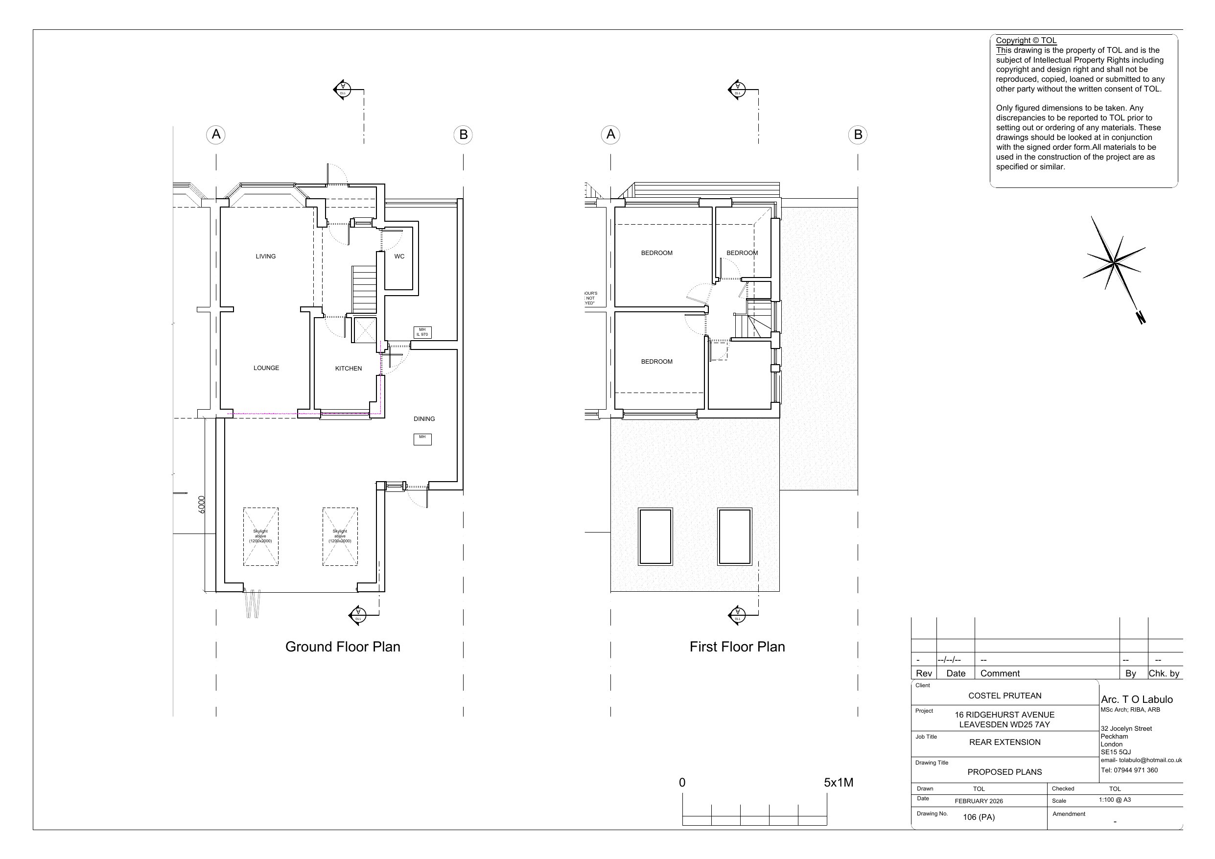
Proposed loft conversion including rear dormer

Type House extension
Status Pending consideration
Received 28 Jan 2026
Plan thumbnail

Erection of single storey rear and side extension

Type House extension
Status Pending consideration
Received 27 Jan 2026
Plan thumbnail

Demolition of existing garage and erection of double storey side extention, front porch and dropped kerb

Type House extension
Status Pending consideration
Received 26 Jan 2026
Plan thumbnail

Erection of a hip to gable roof enlargement including raising the roof ridge, erection of a rear dormer and three front roof lights, erectio...

Type House extension
Status Pending consideration
Received 20 Jan 2026
Plan thumbnail

Proposed loft conversion wih rear dormer five velux roof lights on front internal alternators and an increase in existing ridge height by 70...

Type House extension
Status Pending consideration
Received 16 Jan 2026
Plan thumbnail

Erection of single storey rear extension, double storey side extension and amendments to existing front porch

Type House extension
Status Pending Decision
Received 14 Jan 2026
Plan thumbnail

The erection of a single storey rear extension which would extend beyond the rear wall of the original house by 4.2m for which the maximum h...

Type House extension
Status Approval Not Required
Received 12 Jan 2026
Plan thumbnail

Erection of front porch and garage conversion.

Type House extension
Status Pending consideration
Received Last month
Plan thumbnail

Erection of a two storey side extension and single storey rear extension.

Type House extension
Status Pending consideration
Received Last month
Plan thumbnail

The erection of a single storey rear extension which would extend beyond the rear wall of the original house by 5.00m for which the maximum ...

Type House extension
Status Pending consideration
Received Last month
Plan thumbnail

Erection of a ground and first floor rear extension, garage conversion, internal alterations with associated landscaping.

Type House extension
Status Pending consideration
Received Last month
Plan thumbnail

Erection of 2 storey side extension and a porch with changes to fenstration on first floor facing Langley Road

Type House extension
Status Pending consideration
Received Last month
Plan thumbnail

Erection of two storey front extension

Type House extension
Status Pending consideration
Received Last month
Plan thumbnail

Erection of single story ancillary Granny Annexe included in the habitable accommodation, gym, Jacuzzi, toilet and kitchen facilities, inter...

Type House extension
Status Pending consideration
Received Last month
Plan thumbnail

Erection of a two storey side extension and subdivision of the existing house to create a new dwelling. Associated amenity space, refuse sto...

Type New housing
Status Pending consideration
Received Last month
Plan thumbnail

Loft conversion with side and rear dormer to facilitate internal alterations to allow for and additional 10 bedrooms and internal alteration...

Type House extension
Status Pending consideration
Received Last month
Plan thumbnail

Rear extension and change of use of upper floors to create 3 x 1 bedroom apartments and other associated works - amended plans

Type Change of use
Status Pending consideration
Received 01 Dec 2025
Plan thumbnail

Erection of two storey rear and side extension and loft conversion with the rear and side dormer

Type House extension
Status Pending consideration
Received Last month
Plan thumbnail

Erection of a single storey rear and side extension.

Type House extension
Status Pending consideration
Received Last month
Plan thumbnail

Erection of single storey rear extension, two storey side extension and replacement roof

Type House extension
Status Pending consideration
Received Last month
Plan thumbnail

Erection of a single-story wrap-around extension and front porch

Type House extension
Status Pending consideration
Received Last month
Plan thumbnail

The erection of a single storey rear extension which would extend beyond the rear wall of the original house by 5.00m for which the maximum ...

Type House extension
Status Pending consideration
Received Last month
Plan thumbnail

Erection of single storey side extension, first floor side extension above existing garage and loft conversion with rear dormer and three fr...

Type House extension
Status Pending consideration
Received Last month
Plan thumbnail

The erection of a single storey rear extension which would extend beyond the rear wall of the original house by 6.00m for which the maximum ...

Type House extension
Status Pending Decision
Received Last month
Plan thumbnail

The erection of a single storey rear extension which would extend beyond the rear wall of the original house by 5.00m for which the maximum ...

Type House extension
Status Pending Decision
Received Last month
Plan thumbnail

The erection of a single storey rear extension which would extend beyond the rear wall of the original house by 3.50m for which the maximum ...

Type House extension
Status Pending Decision
Received Last month
Plan thumbnail

Erection of single storey side and part rear extension

Type House extension
Status Pending Decision
Received Last month
Plan thumbnail

Erection of rear hip to gable loft conversion with 2 front roof lights

Type House extension
Status Pending consideration
Received Last month
Plan thumbnail

Conversion of rear part of shop and basement to a one bedroom flat with a light-well to the front and new windows to the side.

Type Change of use
Status Pending consideration
Received Last month
Plan thumbnail

Erection of a single storey rear extension, a rear dormer and 3 front roof lights, conversion of the garage to provide a habitable room invo...

Type Change of use
Status Pending consideration
Received Last month
Plan thumbnail

Erection of new 1 x 3 bedroom new dwelling

Type New housing
Status Pending consideration
Received 29 Jan 2026
Plan thumbnail

Retrospective - proposed residential conversion of original single dwelling into a 10 person HMO

Type Change of use
Status Pending consideration
Received 27 Jan 2026
Plan thumbnail

Demolition of the existing dwelling and erection of a new dwelling (amended application form)

Type New housing
Status Pending consideration
Received 01 Dec 2025
Plan thumbnail

Erection of single storey infill extension and ground floor internal alterations

Type House extension
Status Pending consideration
Received 24 days ago
Plan thumbnail

The erection of a single storey rear extension which would extend beyond the rear wall of the original house by 6.00m for which the maximum ...

Type House extension
Status Pending consideration
Received 24 days ago
Plan thumbnail

The erection of a single storey rear extension which would extend beyond the rear wall of the original house by 6.00m for which the maximum ...

Type House extension
Status Pending consideration
Received 24 days ago
Plan thumbnail

Erection of single storey rear extension.

Type House extension
Status Pending consideration
Received 26 days ago
Plan thumbnail

Proposed roof alteration involving double hip-to-gable conversion; erection of a rear, crown-roof dormer with french doors and juliet balcon...

Type House extension
Status Pending consideration
Received 26 days ago
Plan thumbnail

The erection of a single storey rear extension which would extend beyond the rear wall of the original house by 4.50m for which the maximum ...

Type House extension
Status Pending consideration
Received 26 days ago
Plan thumbnail

Installation of safety glass balustrade on the flat roof of single story rear extension (retrospective)

Type House extension
Status Pending consideration
Received 29 days ago
Plan thumbnail

Erection of first floor rear extension

Type House extension
Status Pending consideration
Received 29 days ago
Plan thumbnail

Demolition of existing commercial building, car parking area and hardstanding, and erection of two buildings, one of up to 12 storeys on the...

Type New housing
Status Pending consideration
Received Last month
Plan thumbnail

Single-storey rear extension projecting 6.00m, maximum height 2.70m, eaves 2.60m.

Type House extension
Status Approval Not Required
Received 27 May 2025
Plan thumbnail

Single-storey rear extension projecting 5.03m, maximum and eaves height 3.00m.

Type House extension
Status Approval Not Required
Received 23 May 2025
Plan thumbnail

The erection of two single storey rear extensions which would extend beyond the rear wall of the original house by 8.0m for which the maximu...

Type House extension
Status Approval Not Required
Received 30 Jan 2025
Plan thumbnail

The erection of a single storey rear extension which would extend beyond the rear wall of the original house by 6.00m for which the maximum ...

Type House extension
Status Approval Not Required
Received 20 Jan 2025
Plan thumbnail

The erection of a single storey rear extension which would extend beyond the rear wall of the original house by 4.0m for which the maximum h...

Type House extension
Status Approval Not Required
Received 08 Jan 2025
Plan thumbnail

Proposed two storey 58 sqm 1 bedroom eco-house (C3 use class) with 52.3 sqm of amenity garden space and 135sqm of communal garden space for ...

Type New housing
Status Pending consideration
Received Last month
Plan thumbnail

Installation of Patio Doors and Conservation roof lights to rear of dwelling

Type House extension
Status Pending consideration
Received Last month
Plan thumbnail

Change of use to ground floor from social club to create an educational centre (Class F.1 - Learning and non-residential institutions) with ...

Type Change of use
Status Pending consideration
Received 29 Oct 2025
Plan thumbnail

The erection of a single storey rear extension which would extend beyond the rear wall of the original house by 3.67m for which the maximum ...

Type House extension
Status Pending Decision
Received Last month
Plan thumbnail

The erection of a single storey rear extension which would extend beyond the rear wall of the original house by 6.00m for which the maximum ...

Type House extension
Status Approval Not Required
Received Last month

Change of use from a single dwellinghouse (Class C3) to a House of Multiple Occupation (Class C4) 6 bed; loft conversion with the erection o...

Type Change of use
Status Pending consideration
Received 03 Feb 2026

Installation of two new rear dormers and conservation rooflight to the rear existing roofscape, a frameless glass link to connect the existi...

Type House extension
Status Pending Decision
Received 06 Jan 2026
Plan thumbnail

The erection of a single storey rear extension which would extend beyond the rear wall of the original house by 4.00m for which the maximum ...

Type House extension
Status Approval Not Required
Received 24 Dec 2025

The erection of a single storey rear extension which would extend beyond the rear wall of the original house by 6.00m for which the maximum ...

Type House extension
Status Approval Not Required
Received 17 Dec 2025

The erection of a single storey rear extension which would extend beyond the rear wall of the original house by 6.00m for which the maximum ...

Type House extension
Status Approval Not Required
Received 17 Nov 2025
Plan thumbnail

The erection of a single storey rear extension which would extend beyond the rear wall of the original house by 6m for which the maximum hei...

Type House extension
Status Approval Not Required
Received 11 Nov 2025

The erection of a single storey rear extension which would extend beyond the rear wall of the original house by 6.0m for which the maximum h...

Type House extension
Status Approval Not Required
Received 04 Nov 2025

The demolition of existing attached garage and construction of a pair of semi detached dwellings (with associated works including bin and bi...

Type New housing
Status Pending consideration
Received 13 Oct 2025

The erection of a single storey rear extension which would extend beyond the rear wall of the original house by 4.00m for which the maximum ...

Type House extension
Status Approval Not Required
Received 16 Oct 2025

The erection of a single storey rear extension which would extend beyond the rear wall of the original house by 4.02m for which the maximum ...

Type House extension
Status Approval Not Required
Received 13 Oct 2025
Plan thumbnail

The erection of a single storey rear extension which would extend beyond the rear wall of the original house by 4.0m for which the maximum h...

Type House extension
Status Approval Not Required
Received 10 Oct 2025
Plan thumbnail

The erection of a two single storey rear extensions which would extend beyond the rear wall of the original house by 6.0m and 5.7m for which...

Type House extension
Status Approval Not Required
Received 26 Sep 2025

The erection of a single storey rear extension which would extend beyond the rear wall of the original house by 4.5m for which the maximum h...

Type House extension
Status Approval Not Required
Received 26 Sep 2025
Plan thumbnail

The erection of a single storey rear extension which would extend beyond the rear wall of the original house by 4.30m for which the maximum ...

Type House extension
Status Approval Not Required
Received 19 Sep 2025

The erection of a single storey rear extension which would extend beyond the rear wall of the original house by 6.00m for which the maximum ...

Type House extension
Status Approval Not Required
Received 12 Sep 2025
Plan thumbnail

The erection of a single storey rear extension which would extend beyond the rear wall of the original house by 6.0m for which the maximum h...

Type House extension
Status Approval Not Required
Received 28 Aug 2025

Single storey rear extension extending 6.00m from original rear wall.

Type House extension
Status Approval Not Required
Received 14 Jul 2025

Single storey rear extension extending 5.10m with given heights.

Type House extension
Status Approval Not Required
Received 09 Jul 2025
Plan thumbnail

Single storey rear extension projecting 6.00m with 3.53m maximum height and 3.00m eaves.

Type House extension
Status Approval Not Required
Received 07 Jul 2025

Single storey rear extension projecting 6.00m with 3.10m maximum height and 2.99m eaves.

Type House extension
Status Approval Not Required
Received 01 Jul 2025
Plan thumbnail

Single-storey rear extension projecting 6.0m with 3.0m maximum height and 3.0m eaves.

Type House extension
Status Approval Not Required
Received 15 May 2025

Single-storey rear extension projecting 5.0m with 3.4m maximum height and 3.0m eaves.

Type House extension
Status Approval Not Required
Received 14 May 2025
Plan thumbnail

Single-storey rear extension extending 6.0m with 4.0m max height and 3.0m eaves.

Type House extension
Status Approval Not Required
Received 09 May 2025

Single-storey rear extension projecting 6.00m, maximum height 4.00m, eaves 2.50m.

Type House extension
Status Approval Not Required
Received 05 May 2025

Single-storey rear extension projecting 6.00m, maximum height 3.00m, eaves 2.90m.

Type House extension
Status Approval Not Required
Received 05 May 2025

Single-storey rear extension extending 6m beyond original wall, 3.6m high, eaves 2.9m.

Type House extension
Status Approval Not Required
Received 03 Apr 2025

Single-storey rear extension projecting 4.5m, maximum and eaves height 3.0m.

Type House extension
Status Approval Not Required
Received 01 Apr 2025

Single-storey rear extension projecting 6.0m, maximum height 3.10m and eaves height 2.75m.

Type House extension
Status Approval Not Required
Received 28 Mar 2025
Plan thumbnail

Redevelopment of the site, including demolition and erection of new buildings and refurbishment of Building B, to provide new flexible works...

Type Commercial
Status Pending consideration
Received 21 Mar 2025
Plan thumbnail

Single-storey rear extension projecting 4.0m, max height 2.95m, eaves 2.50m.

Type House extension
Status Approval Not Required
Received 18 Mar 2025

Single-storey 6m rear extension, max height 3.3m, eaves 2.8m.

Type House extension
Status Approval Not Required
Received 17 Mar 2025
Plan thumbnail

Single-storey 6m rear extension, max height 3.3m, eaves 2.8m.

Type House extension
Status Approval Not Required
Received 17 Mar 2025

Single-storey rear extension projecting 4.5m, max height 3.00m, eaves 3.00m.

Type House extension
Status Approval Not Required
Received 12 Mar 2025

Single-storey rear extension projecting 4.5m, maximum height 3.3m, eaves 3.0m.

Type House extension
Status Approval Not Required
Received 18 Feb 2025
Plan thumbnail

Single-storey rear extension projecting 5.0m, maximum height 3.0m, eaves 2.85m.

Type House extension
Status Approval Not Required
Received 14 Feb 2025
Plan thumbnail

Single storey rear extension 5.00m deep, max height 3.75m, eaves 3.00m.

Type House extension
Status Approval Not Required
Received 07 Feb 2025
Plan thumbnail

The erection of a single storey rear extension which would extend beyond the rear wall of the original house by 6.00m for which the maximum ...

Type House extension
Status Approval Not Required
Received 29 Jan 2025
Plan thumbnail

The erection of a single storey rear extension which would extend beyond the rear wall of the original house by 6.00m for which the maximum ...

Type House extension
Status Pending consideration
Received Last month
Plan thumbnail

The erection of a single storey rear extension which would extend beyond the rear wall of the original house by 5.30m for which the maximum ...

Type House extension
Status Pending consideration
Received Last month
Plan thumbnail

Retrospective change of use from C3 (dwellinghouse) to C1 (Hotels) for short-term holiday accommodation (Airbnb) (Revised description)

Type Change of use
Status Pending consideration
Received Last month
Plan thumbnail

The erection of a single storey rear extension which would extend beyond the rear wall of the original house by 6.0m for which the maximum h...

Type House extension
Status Pending consideration
Received Last month
Plan thumbnail

Erection of part single storey; part two storey rear extension and internal alteration of the dwellinghouse.

Type House extension
Status Pending consideration
Received Last month
Plan thumbnail

The erection of a single storey rear extension which would extend beyond the rear wall of the original house by 6.0m for which the maximum h...

Type House extension
Status Approval Not Required
Received 11 Sep 2024
Plan thumbnail

The erection of a single storey rear extension which would extend beyond the rear wall of the original house by 6.00m for which the maximum ...

Type House extension
Status Approval Not Required
Received 28 Aug 2024

The erection of a single storey rear extension which would extend beyond the rear wall of the original house by 6m for which the maximum hei...

Type House extension
Status Approval Not Required
Received 04 Oct 2024
Plan thumbnail

The erection of a single storey rear extension which would extend beyond the rear wall of the original house by 5.00m for which the maximum ...

Type House extension
Status Approval Not Required
Received 04 Oct 2024
Plan thumbnail

The erection of a single storey rear extension which would extend beyond the rear wall of the original house by 6m for which the maximum hei...

Type House extension
Status Approval Not Required
Received 27 Sep 2024
Plan thumbnail

The erection of a single storey rear extension which would extend beyond the rear wall of the original house by 5.75m for which the maximum ...

Type House extension
Status Approval Not Required
Received 27 Sep 2024
Plan thumbnail

The erection of a single storey rear extension which would extend beyond the rear wall of the original house by 4.0m for which the maximum h...

Type House extension
Status Approval Not Required
Received 24 Sep 2024
Plan thumbnail

The erection of a single storey rear extension which would extend beyond the rear wall of the original house by 6m for which the maximum hei...

Type House extension
Status Approval Not Required
Received 01 Nov 2024
Plan thumbnail

The erection of a single storey rear extension which would extend beyond the rear wall of the original house by 6m for which the maximum hei...

Type House extension
Status Approval Not Required
Received 30 Oct 2024
Plan thumbnail

The erection of a single storey rear extension which would extend beyond the rear wall of the original house by 6.00m for which the maximum ...

Type House extension
Status Approval Not Required
Received 16 Oct 2024
Plan thumbnail

Permitted Development for installation of a 387kWp lightweight solar photovoltaic panel system to the flat roof areas of the Tesco Extra sto...

Type Renewable energy
Status Approval Not Required
Received 13 Nov 2024
Plan thumbnail

The erection of a single storey rear extension which would extend beyond the rear wall of the original house by 5.00m for which the maximum ...

Type House extension
Status Approval Not Required
Received 12 Nov 2024

The erection of a single storey rear extension which would extend beyond the rear wall of the original house by 5.00m for which the maximum ...

Type House extension
Status Approval Not Required
Received 08 Nov 2024
Plan thumbnail

The erection of a single storey rear extension which would extend beyond the rear wall of the original house by 6.00m for which the maximum ...

Type House extension
Status Approval Not Required
Received 06 Nov 2024
Plan thumbnail

The erection of a single storey rear extension which would extend beyond the rear wall of the original house by 4.50m for which the maximum ...

Type House extension
Status Approval Not Required
Received 05 Nov 2024
Plan thumbnail

The erection of a single storey rear extension which would extend beyond the rear wall of the original house by 6.00m for which the maximum ...

Type House extension
Status Approval Not Required
Received 29 Nov 2024
Plan thumbnail

The erection of a single storey rear extension which would extend beyond the rear wall of the original house by 5.00m for which the maximum ...

Type House extension
Status Approval Not Required
Received 27 Dec 2024
Plan thumbnail

The erection of a single storey rear extension which would extend beyond the rear wall of the original house by 4.00m for which the maximum ...

Type House extension
Status Approval Not Required
Received 20 Dec 2024
Plan thumbnail

The erection of a single storey rear extension which would extend beyond the rear wall of the original house by 6.0m for which the maximum h...

Type House extension
Status Approval Not Required
Received 10 Dec 2024
Plan thumbnail

The erection of a single storey rear extension which would extend beyond the rear wall of the original house by 6.0m for which the maximum h...

Type House extension
Status Approval Not Required
Received 10 Dec 2024
Plan thumbnail

The erection of a single storey rear extension which would extend beyond the rear wall of the original house by 8m for which the maximum hei...

Type House extension
Status Approval Not Required
Received 13 Nov 2024

Proposed creation of 8 self-contained residential units involving second floor extension covering No.55 & 57, single storey rear extension o...

Type New housing
Status Pending consideration
Received 10 Sep 2025

Change of use of from Single Maisonette along with internal alterations to provide two residential units (Class C3)

Type Change of use
Status No Further Action
Received 04 Dec 2025
Plan thumbnail

The erection of a single story rear extension which would extend beyond the rear wall of the original house by 3.85m for which the maximum h...

Type House extension
Status Approval Not Required
Received 01 Dec 2025

The erection of a single storey rear extension which would extend beyond the rear wall of the original house by 6.00m for which the maximum ...

Type House extension
Status Approval Not Required
Received 28 Nov 2025
Plan thumbnail

The erection of a single storey rear extension which would extend beyond the rear wall of the original house by 3.73m for which the maximum ...

Type House extension
Status Approval Not Required
Received 25 Nov 2025
Plan thumbnail

Replacement of windows and flat roof with roof lantern to rear (additional document heritage statement and revised plans)

Type House extension
Status Pending consideration
Received 17 Nov 2025
Plan thumbnail

Demolition of existing cycle store, construction of new four bed dwelling (no 89 King Georges Avenue). Erection of a new bin store, and new ...

Type New housing
Status Pending consideration
Received 04 Aug 2025
Plan thumbnail

The erection of a single storey rear extension which would extend beyond the rear wall of the original house by 5.00m for which the maximum ...

Type House extension
Status Pending consideration
Received Last month

The erection of a single storey rear extension which would extend beyond the rear wall of the original house by 6.00m for which the maximum ...

Type House extension
Status Pending consideration
Received Last month
Plan thumbnail

Conversion of existing house to 1x 3 bedroom flat at ground floor and 1x 2 bedroom flat at first floor and alterations to front rear and sid...

Type Change of use
Status Pending consideration
Received 25 Sep 2024
Plan thumbnail

Demolition of existing building and erection of a part one, part five, and part six-storey building comprising a commercial unit on the grou...

Type New housing
Status Pending consideration
Received 13 Jan 2026

Single-storey rear extension extending 6.0m, maximum height 3.0m, eaves 3.0m.

Type House extension
Status Approval Not Required
Received 04 Mar 2025
Plan thumbnail

Single-storey rear extension extending 5.0m, maximum height 3.20m, eaves 2.55m.

Type House extension
Status Approval Not Required
Received 03 Mar 2025
Plan thumbnail

Single-storey rear extension extending 4.0m, maximum height 3.75m, eaves 3.0m.

Type House extension
Status Approval Not Required
Received 28 Feb 2025

Single-storey rear extension extending 4.0m, maximum height 3.60m, eaves 2.40m.

Type House extension
Status Approval Not Required
Received 27 Feb 2025

Single-storey rear extension projecting 6.00m, max height 4.00m, eaves 3.00m.

Type House extension
Status Approval Not Required
Received 10 Apr 2025

Single-storey rear extension extending 6.00m with 3.10m maximum height.

Type House extension
Status Approval Not Required
Received 21 Apr 2025

Single-storey rear extension extending 4.50m with 3.90m maximum height.

Type House extension
Status Approval Not Required
Received 17 Apr 2025

Erection of single-storey 6.0m rear extension, maximum height 3.4m, eaves 2.4m.

Type House extension
Status Approval Not Required
Received 28 May 2025

Single-storey rear extension extending 5.00m, max height 2.80m.

Type House extension
Status Approval Not Required
Received 10 Jun 2025

Single-storey rear extension extending 4.00m, max height 3.00m.

Type House extension
Status Approval Not Required
Received 09 Jun 2025

Single-storey rear extension extending 5.5m, max height 2.8m.

Type House extension
Status Approval Not Required
Received 09 Jun 2025

Single-storey rear extension extending 4.50m, max height 3.32m.

Type House extension
Status Approval Not Required
Received 05 Jun 2025

Single-storey rear extension extending 4.00m, 3.75m maximum height, 2.70m eaves.

Type House extension
Status Approval Not Required
Received 13 Jun 2025

Single-storey rear extension extending 6.0m with maximum height 3.0m and eaves 3.00m.

Type House extension
Status Approval Not Required
Received 18 Jul 2025

Single-storey rear extension extending 6.0m with maximum height 3.0m and eaves 2.80m.

Type House extension
Status Approval Not Required
Received 18 Jul 2025

Single-storey rear extension extending 6.0m, max height 3.00m, eaves 3.00m.

Type House extension
Status Approval Not Required
Received 16 Jul 2025

Single-storey 6.0m rear extension, maximum and eaves height 2.90m.

Type House extension
Status Approval Not Required
Received 15 Jul 2025

Single-storey rear extension extending 6.0m, maximum height 3.92m, eaves 2.78m.

Type House extension
Status Approval Not Required
Received 29 Jul 2025
Plan thumbnail

Single-storey rear extension extending 6.0m, maximum height 3.2m, eaves 2.8m.

Type House extension
Status Approval Not Required
Received 28 Jul 2025

The erection of a single storey rear extension which would extend beyond the rear wall of the original house by 4.50m for which the maximum ...

Type House extension
Status Approval Not Required
Received 19 Aug 2025

Erection of rear infill extension. Loft conversion works with new L shaped dormer to the rear of the roof slope. Raised patio to create leve...

Type House extension
Status Pending consideration
Received 04 Dec 2025

Planning application for change of use dwelling (use Class C4 house in multiple occupation) to Children's Residential Home (use Claass 02 Re...

Type Change of use
Status Pending consideration
Received 10 Nov 2025

Erection of new front porch and out house and internal alterations

Type House extension
Status Pending consideration
Received 12 Jan 2026
Plan thumbnail

Proposed conversion of existing dwellinghouse into x2 flats

Type Change of use
Status Pending consideration
Received 16 Jan 2026
Plan thumbnail

Erection of a single storey rear extension to facilitate the change of use of the existing dwelling (Use Class C3a) to use as a children's h...

Type Change of use
Status Pending consideration
Received 06 Jan 2026

Erection of two storey side extension.The proposed side extension would have a dutch gable roof form (similar to the main dwelling), would b...

Type House extension
Status Pending consideration
Received 01 Dec 2025
Plan thumbnail

Roof/third-floor extension to create one 2-bedroom residential unit; terrace and bicycle storage.

Type House extension
Status Pending Decision
Received 02 Sep 2025
Plan thumbnail

The erection of a single storey rear extension which would extend beyond the rear wall of the original house by 6.0m for which the maximum h...

Type House extension
Status Pending consideration
Received 22 Dec 2025
Plan thumbnail

Retrospective change of use from dwelling (C3) to Children's Residential Home (C2).

Type Change of use
Status Approved
Received 16 Jan 2025

Retrospective change of use from dwelling (C3) to Children's Residential Home (C2).

Type Change of use
Status Approved
Received 16 Jan 2025
Plan thumbnail

Change of use of two buildings to provide a total of eight one-bedroom flats.

Type Change of use
Status Refused
Received 20 Aug 2025
Plan thumbnail

Demolish storage and build two-storey duplex containing two flats (1- and 2-bed) with access and parking.

Type New housing
Status Refused
Received 13 Jan 2025
Plan thumbnail

Conversion of existing commercial unit into three residential flats.

Type Change of use
Status Approved
Received 09 Jan 2025