← Back to Watford Borough Council

Status

Approval Not Required
Received 08 Jan 2025
New dwellings n/a

What you can do

Take Action

Make your voice heard. Authorities need to hear from people who support new homes.

Full Proposal

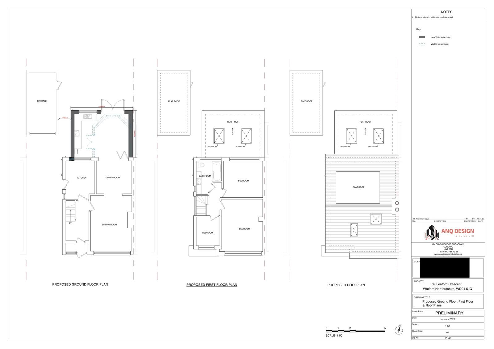
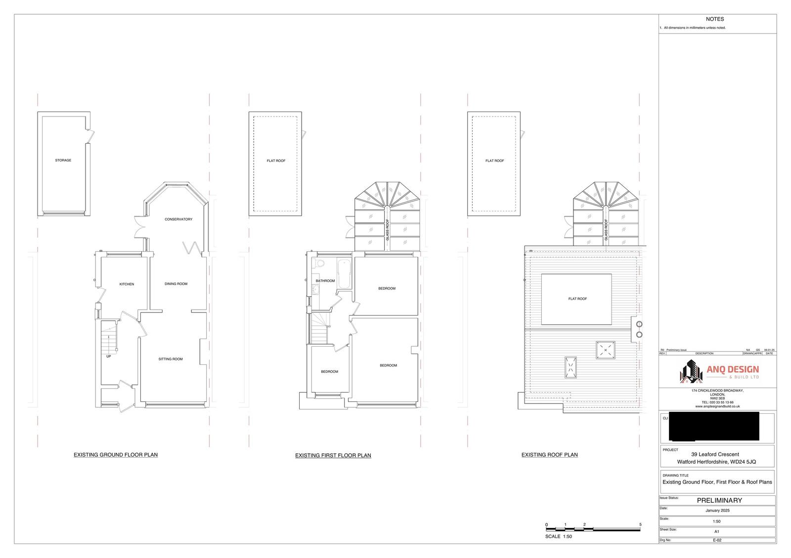
The erection of a single storey rear extension which would extend beyond the rear wall of the original house by 4.0m for which the maximum height would be 2.80m and for which the height of the eaves would be 2.80m

Detail pages

Documents

Application Form
Application Form
Not downloaded · Council link
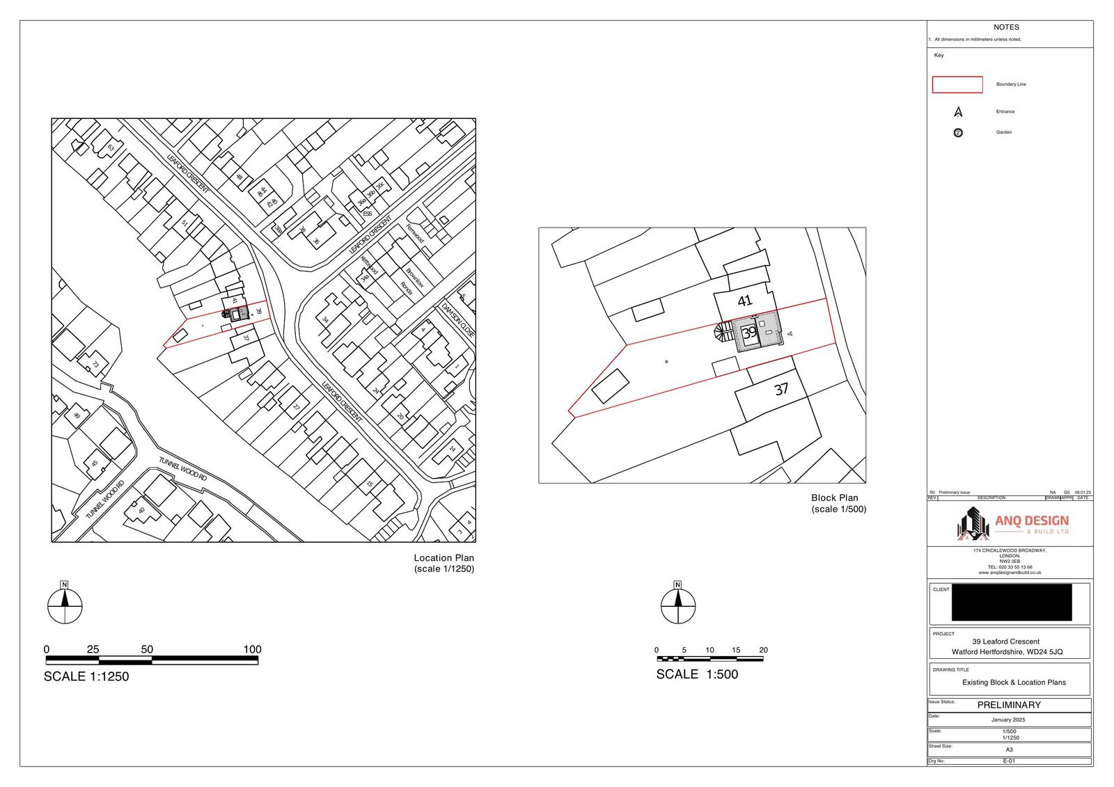
EXISTING BLOCK AND LOCATION PLANS
Drawing Approved
Not downloaded · Council link
EXISTING ELEVATIONS
Drawing Approved
Not downloaded · Council link
EXISTING FLOOR AND ROOF PLANS
Drawing Approved
Not downloaded · Council link
HPD DECISION
Decision
Not downloaded · Council link
OFFICER REPORT
Officer Report
Not downloaded · Council link
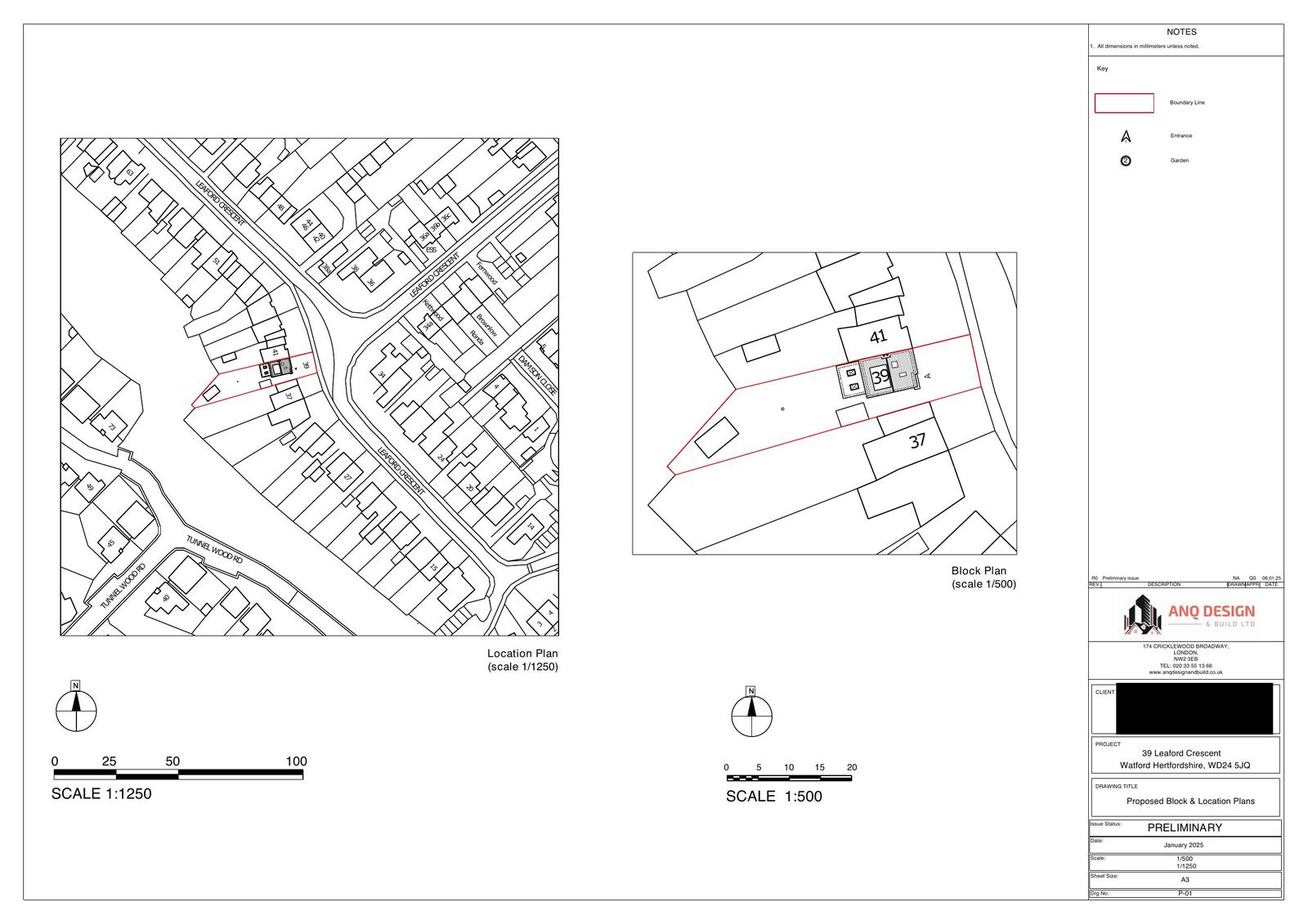
PROPOSED BLOCK AND LOCATION PLANS
Drawing Approved
Not downloaded · Council link
PROPOSED ELEVATIONS
Drawing Approved
Not downloaded · Council link
PROPOSED FLOOR AND ROOF PLANS
Drawing Approved
Not downloaded · Council link