← Back to Watford Borough Council
Application
25/00045/HPD
Watford Borough Council · IDOX
Status
Approval Not Required
Received
20 Jan 2025
New dwellings
n/a
What you can do
Take Action
Make your voice heard. Authorities need to hear from people who support new homes.
Full Proposal
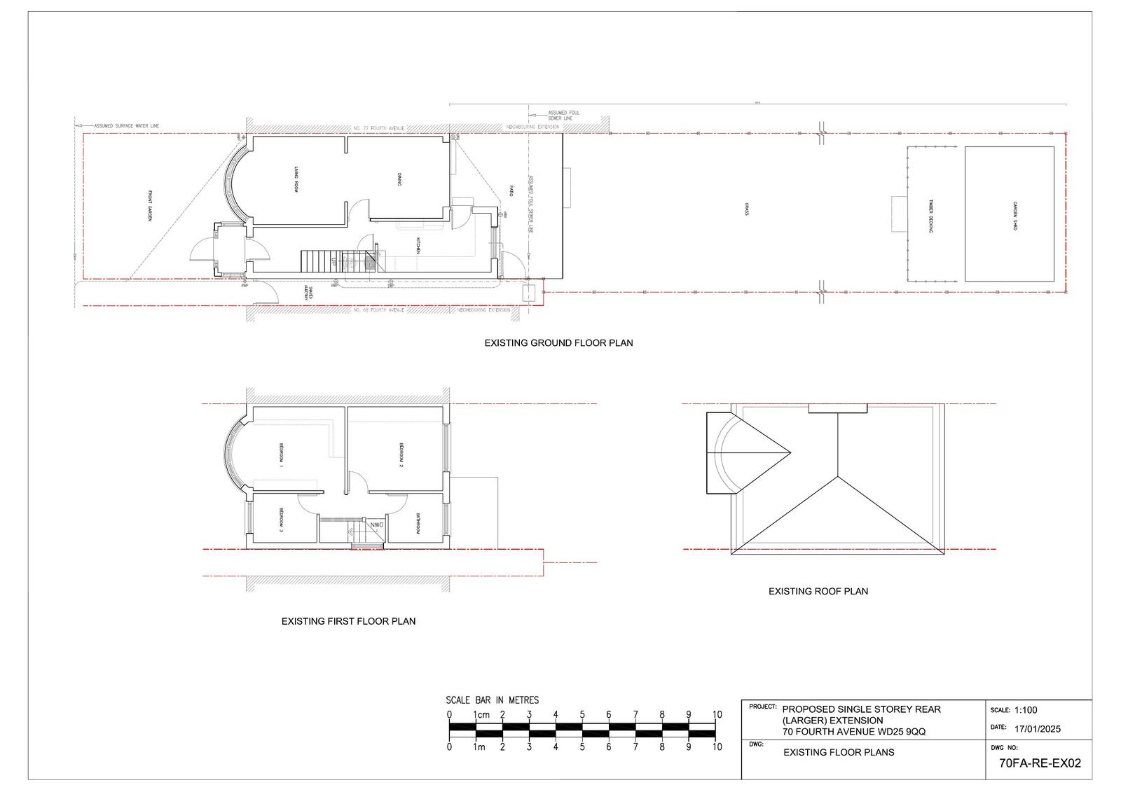
The erection of a single storey rear extension which would extend beyond the rear wall of the original house by 6.00m for which the maximum height would be 3.10m and for which the height of the eaves would be 3.00m
Detail pages
- View live detail on council site
- No archived detail page available.
Documents
Application Form
Application Form
Not downloaded
· Council link
EXISTING
Drawing Approved
Not downloaded
· Council link
EXISTING ELEVATIONS
Drawing Approved
Not downloaded
· Council link
HPD DECISION
Decision
Not downloaded
· Council link
OFFICER REPORT
Officer Report
Not downloaded
· Council link
PROPOSED ELEVATIONS
Drawing Approved
Not downloaded
· Council link
PROPOSED FLOOR PLANS
Drawing Approved
Archived copy
· Council link
SITE LOCATION PLAN
Drawing Approved
Archived copy
· Council link