← Back to Watford Borough Council

Status

Approval Not Required
Received 30 Jan 2025
New dwellings n/a

What you can do

Take Action

Make your voice heard. Authorities need to hear from people who support new homes.

Full Proposal

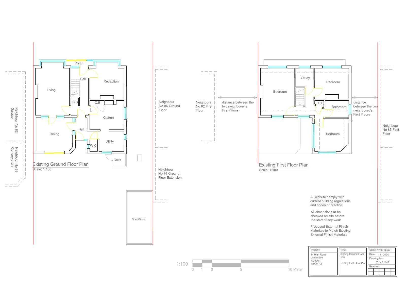
The erection of two single storey rear extensions which would extend beyond the rear wall of the original house by 8.0m for which the maximum height would be 3.0m and for which the height of the eaves would be 3.0m

Detail pages

Documents

APPLICATIONFORMREDACTED
Application Form
Not downloaded · Council link
EXISTING ELEVATIONS
Drawing Approved
Not downloaded · Council link
EXISTING FLOOR PLANS
Drawing Approved
Not downloaded · Council link
HPD DECISION
Decision
Not downloaded · Council link
LOCATION AND BLOCK PLAN
Drawing Approved
Not downloaded · Council link
OFFICER REPORT
Officer Report
Not downloaded · Council link
PROPOSED ELEVATIONS
Drawing Approved
Not downloaded · Council link
PROPOSED FLOOR PLANS
Drawing Approved
Archived copy · Council link