← Back to Watford Borough Council

Status

Approval Not Required House extension
Received 23 May 2025
New dwellings 0

What you can do

Take Action

Make your voice heard. Authorities need to hear from people who support new homes.

Summary

Single-storey rear extension projecting 5.03m, maximum and eaves height 3.00m.

Full Proposal

The erection of a single storey rear extension which would extend beyond the rear wall of the original house by 5.03m for which the maximum height would be 3.00m and for which the height of the eaves would be 3.00m

Detail pages

Documents

Application Form
Application Form
Not downloaded · Council link
CIL Form
CIL Form
Not downloaded · Council link
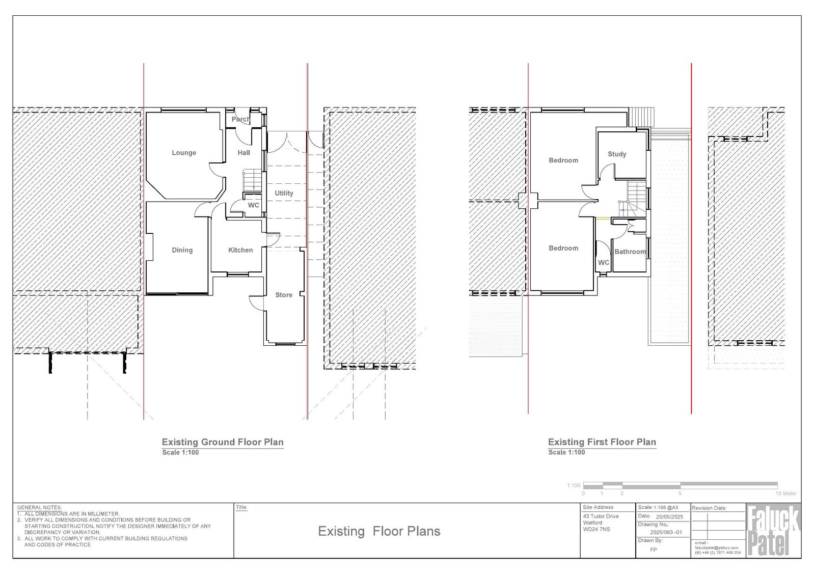
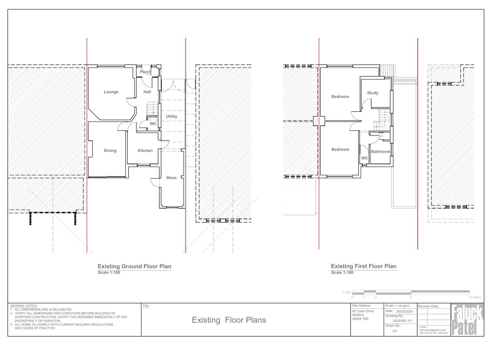
EXISITNG FLOOR
Drawing Approved
Not downloaded · Council link
EXISTING AND PROPOSED FLOOR AND ELEVATIONS - BEEN SPLIT
Drawing Approved
Not downloaded · Council link
EXISTING AND PROPOSED ROOF
Drawing Approved
Not downloaded · Council link
EXISTING ELEVATIONS
Drawing Approved
Not downloaded · Council link
HPD DECISION
Decision
Not downloaded · Council link
OFFICER REPORT
Officer Report
Not downloaded · Council link
PROPOSED ELEVATIONS
Drawing Approved
Not downloaded · Council link
PROPOSED FLOOR
Drawing Approved
Not downloaded · Council link
SITE LOCATION AND BLOCK
Drawing Approved
Not downloaded · Council link