← Watford Borough Council

Status

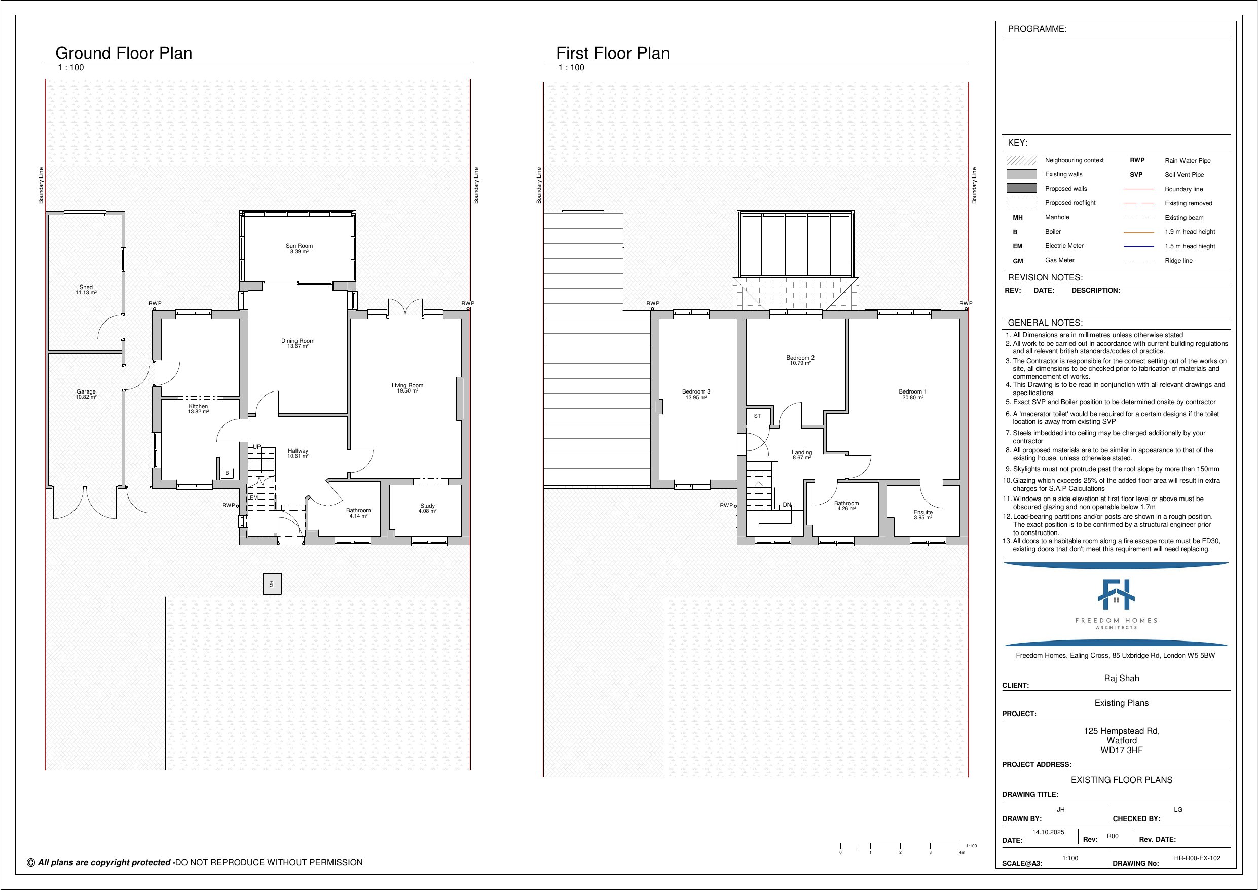
Pending consideration New housing
Received
01 Dec 2025
New homes
1

Full proposal

Demolition of the existing dwelling and erection of a new dwelling (amended application form)

Have your say

Your comment matters. Councils must consider every representation that raises material planning considerations.

Write a comment