← Watford Borough Council

Status

Pending Decision House extension
Received
14 Jan 2026
New homes
0

Full proposal

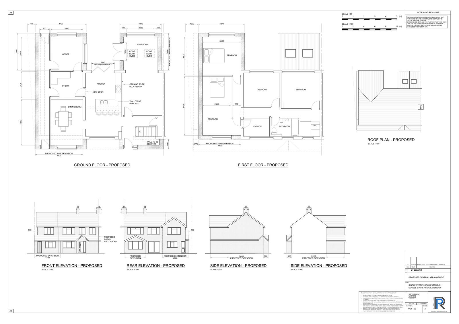
Erection of single storey rear extension, double storey side extension and amendments to existing front porch

Have your say

Your comment matters. Councils must consider every representation that raises material planning considerations.

Write a comment