← Watford Borough Council

Status

Pending consideration House extension
Received
16 Jan 2026
New homes
0

Full proposal

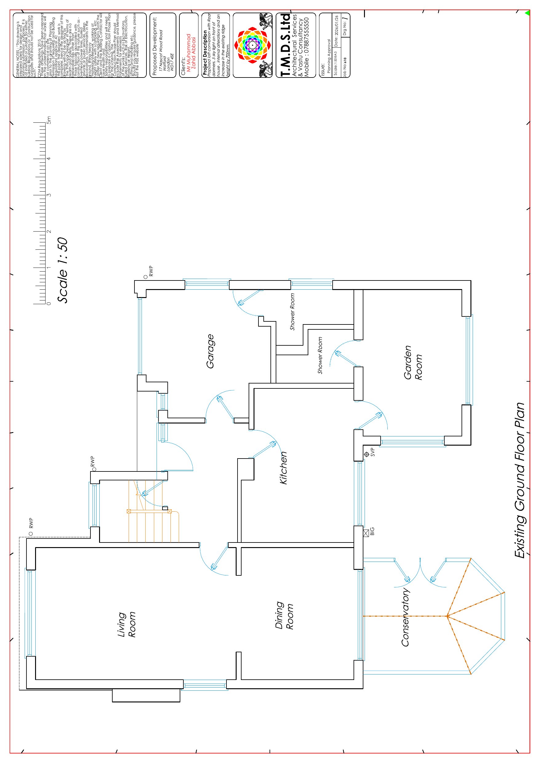
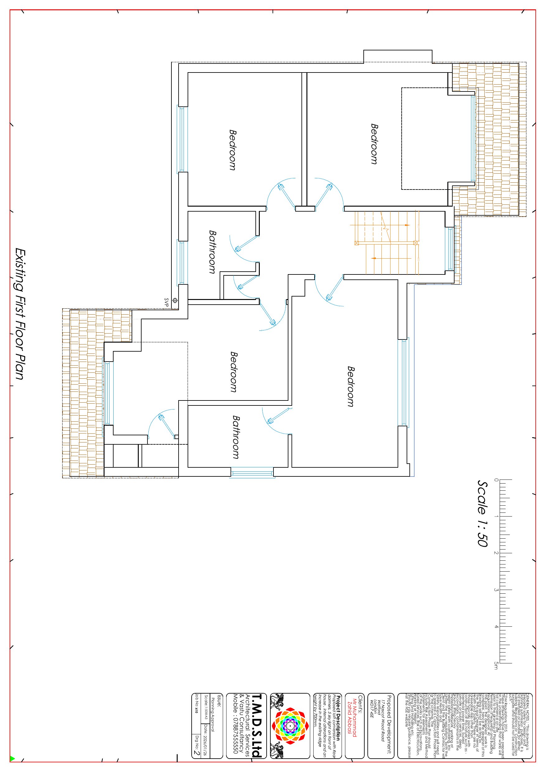
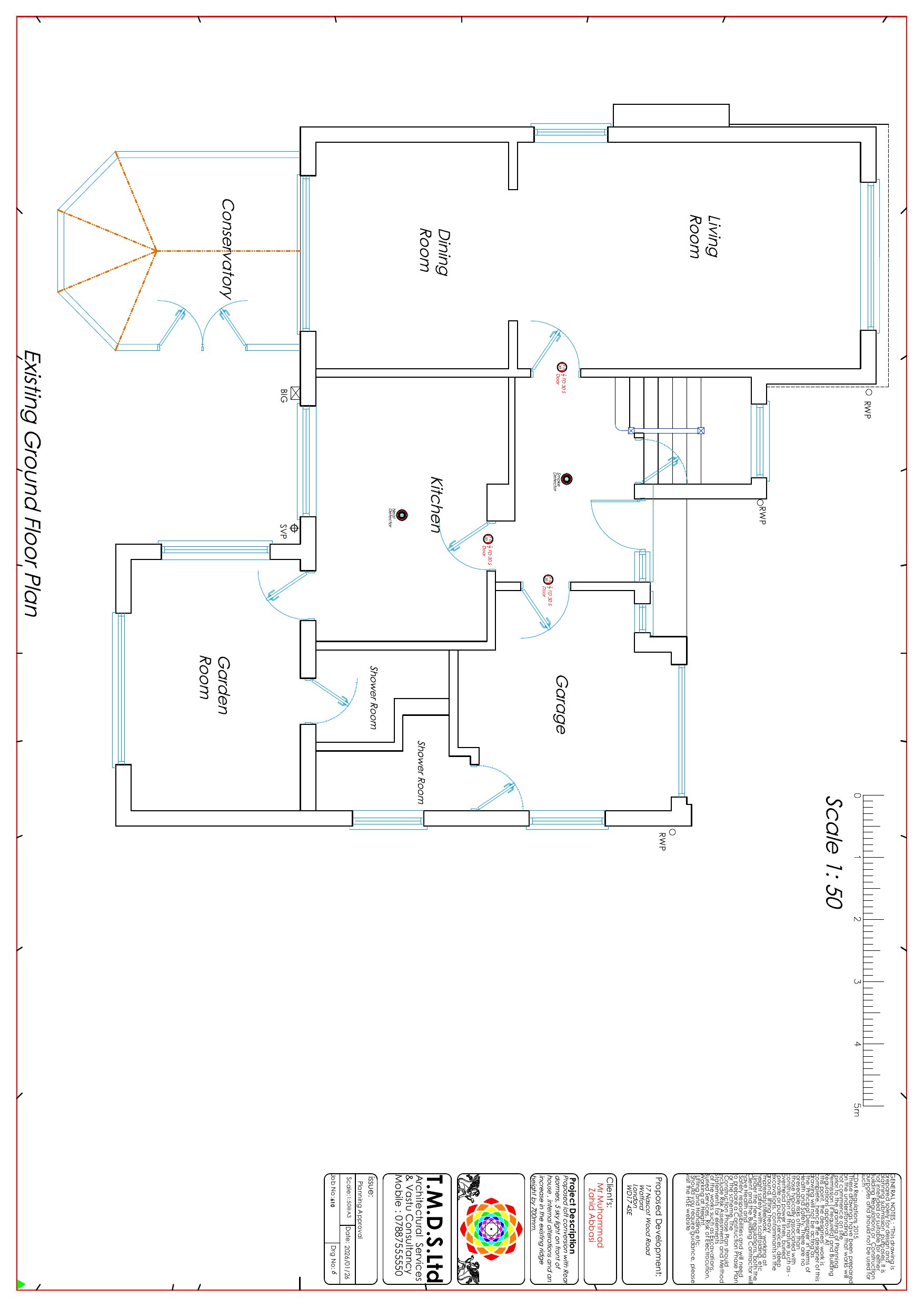
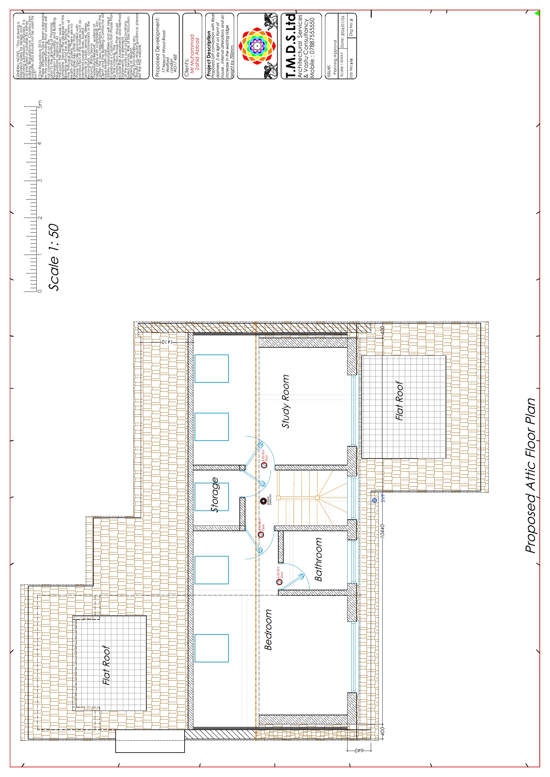
Proposed loft conversion wih rear dormer five velux roof lights on front internal alternators and an increase in existing ridge height by 700mm.

Documents

Revised Drawing
Archived · Original link
Revised Drawing
Archived · Original link
Revised Drawing
Archived · Original link
Revised Drawing
Archived · Original link
Revised Drawing
Archived · Original link
Revised Drawing
Archived · Original link
Revised Drawing
Archived · Original link
Drawing
Archived · Original link
Revised Drawing
Archived · Original link
Revised Drawing
Archived · Original link
Drawing
Archived · Original link

Have your say

Your comment matters. Councils must consider every representation that raises material planning considerations.

Write a comment