← Watford Borough Council

Status

Pending consideration House extension
Received
20 Jan 2026
New homes
0

Full proposal

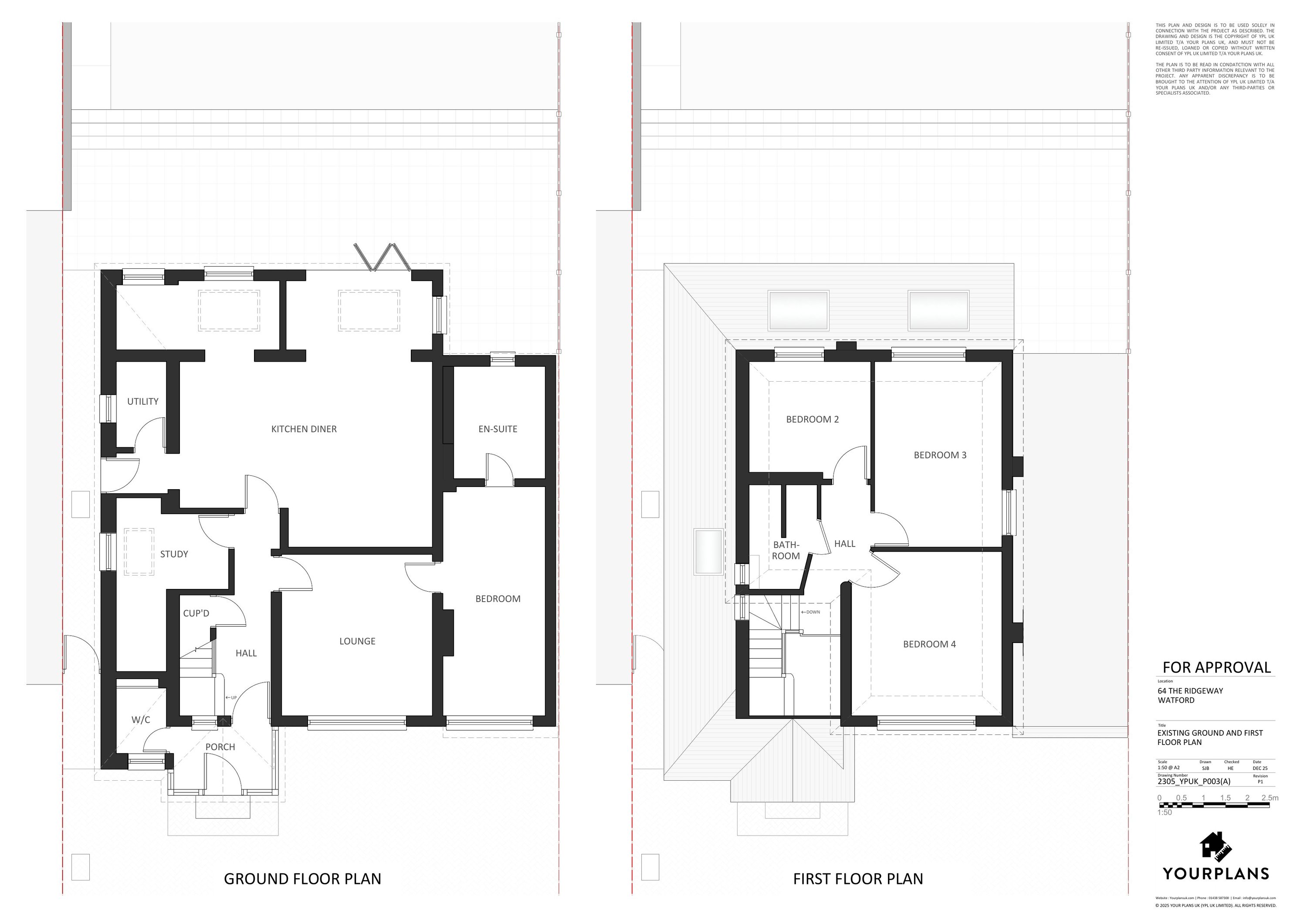
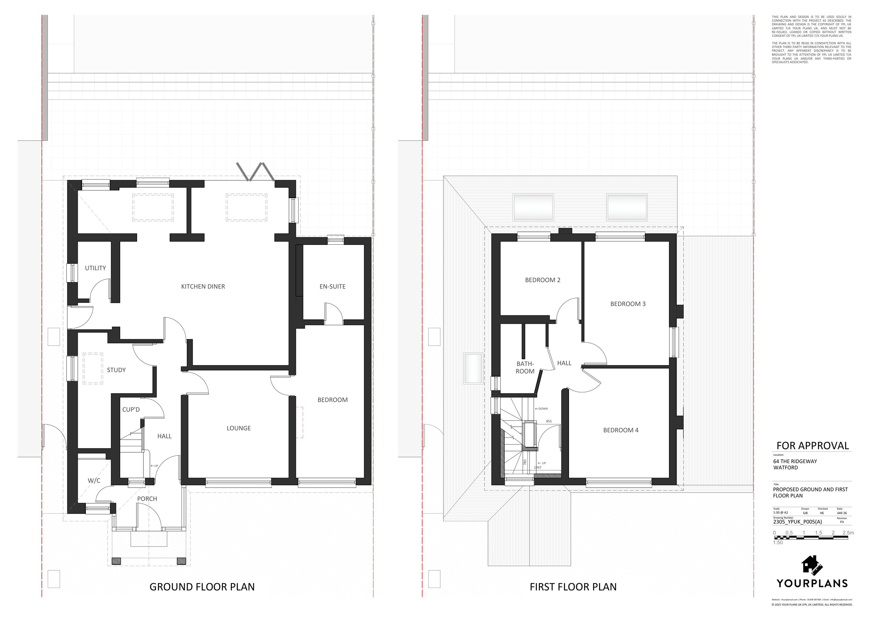
Erection of a hip to gable roof enlargement including raising the roof ridge, erection of a rear dormer and three front roof lights, erection of front porch canopy, removal of the side and rear chimneys, increase to height of chimney on south east elevation, and rendering of side elevations, addition of brick slips to front and rear elevations. (Amended description)

Have your say

Your comment matters. Councils must consider every representation that raises material planning considerations.

Write a comment