← Watford Borough Council

Status

Pending consideration House extension
Received
26 Jan 2026
New homes
0

Full proposal

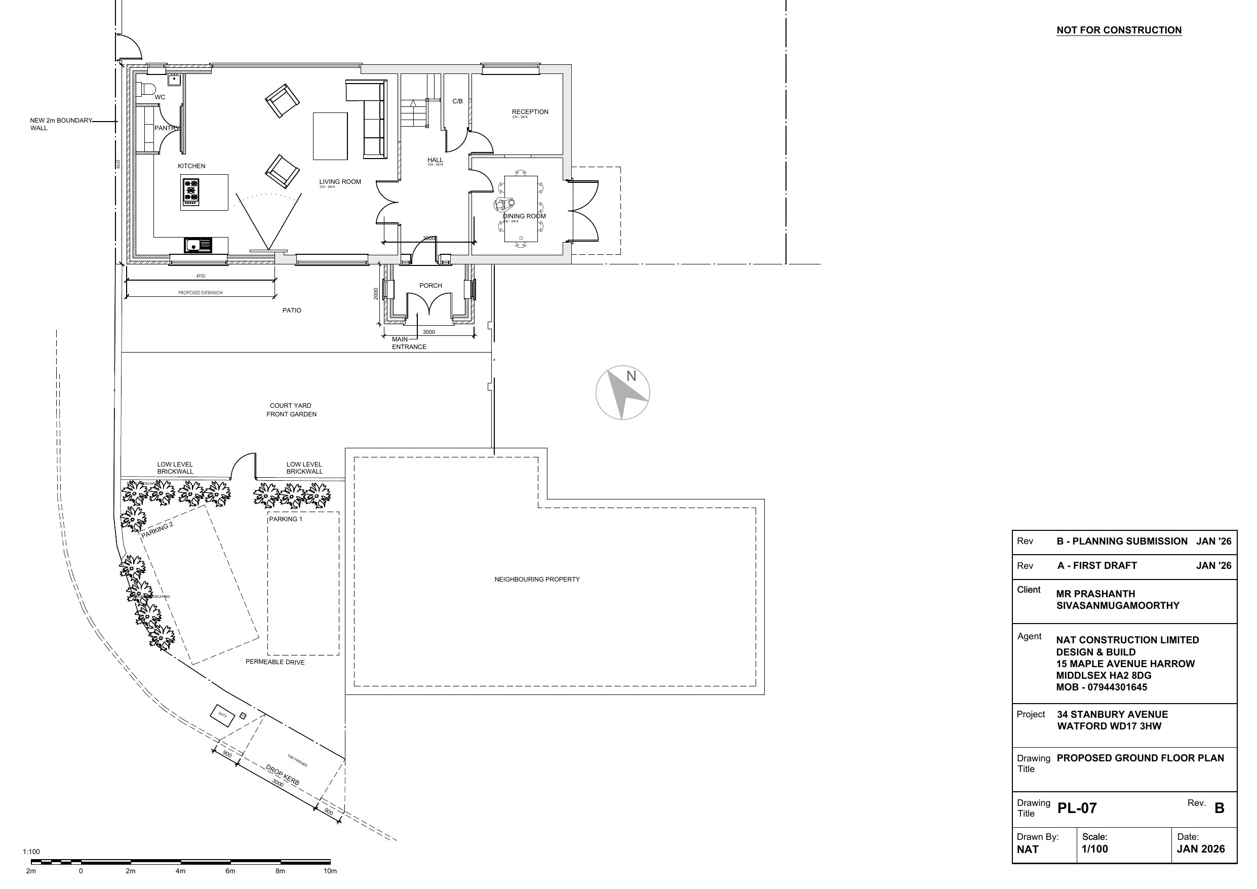
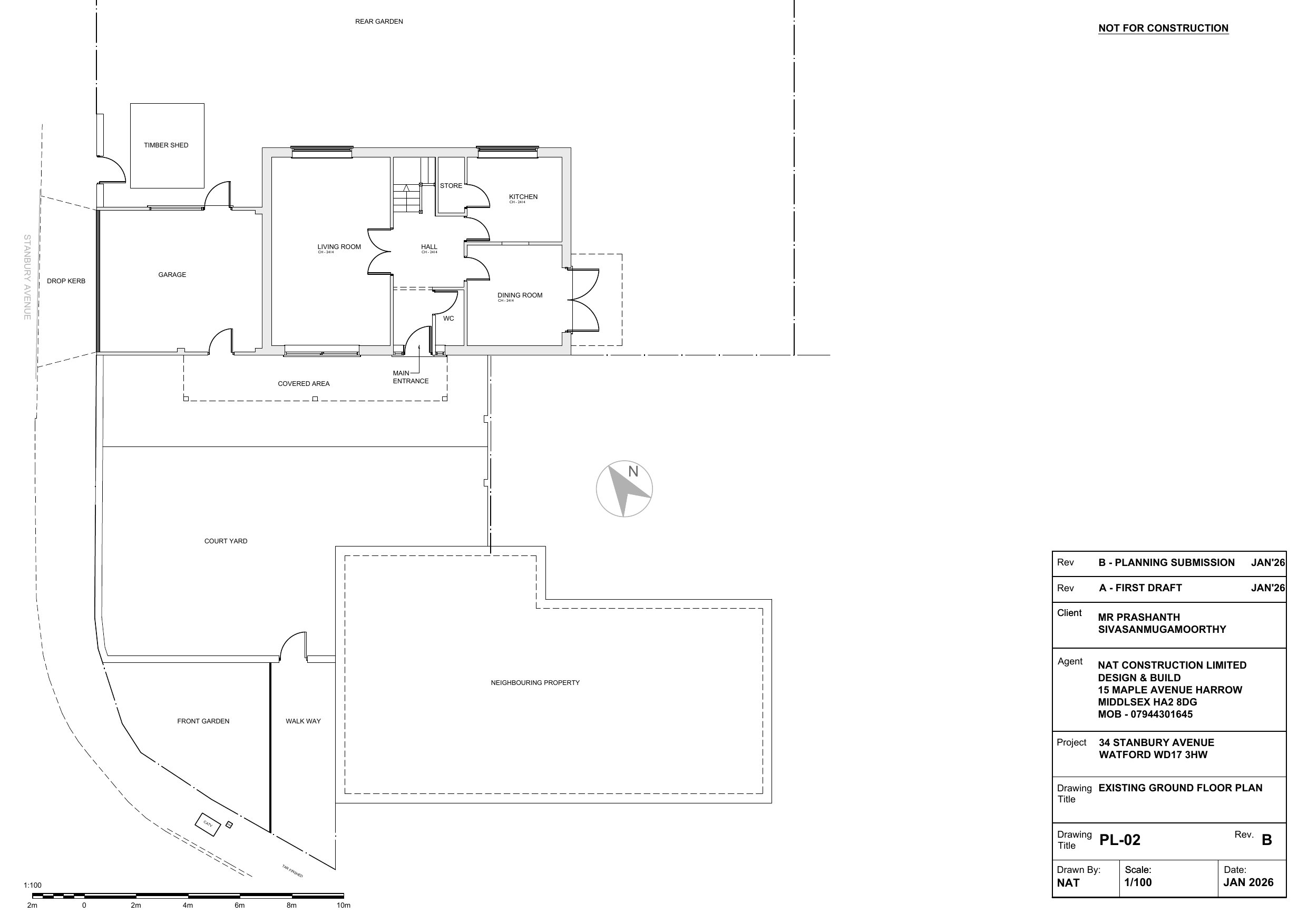
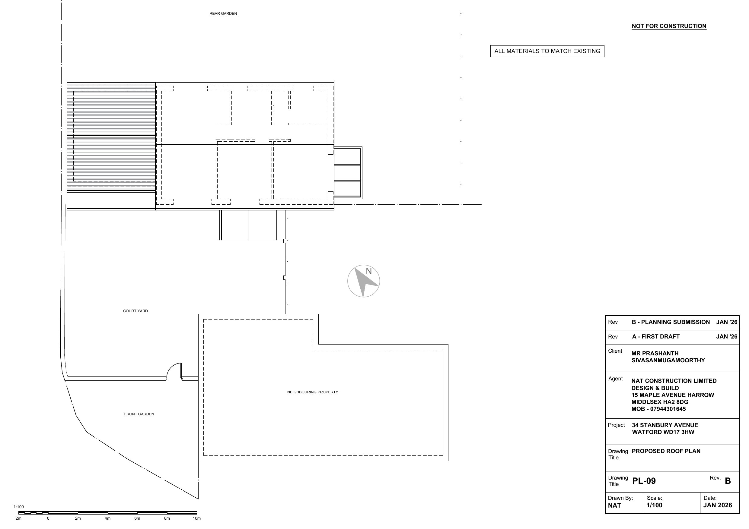
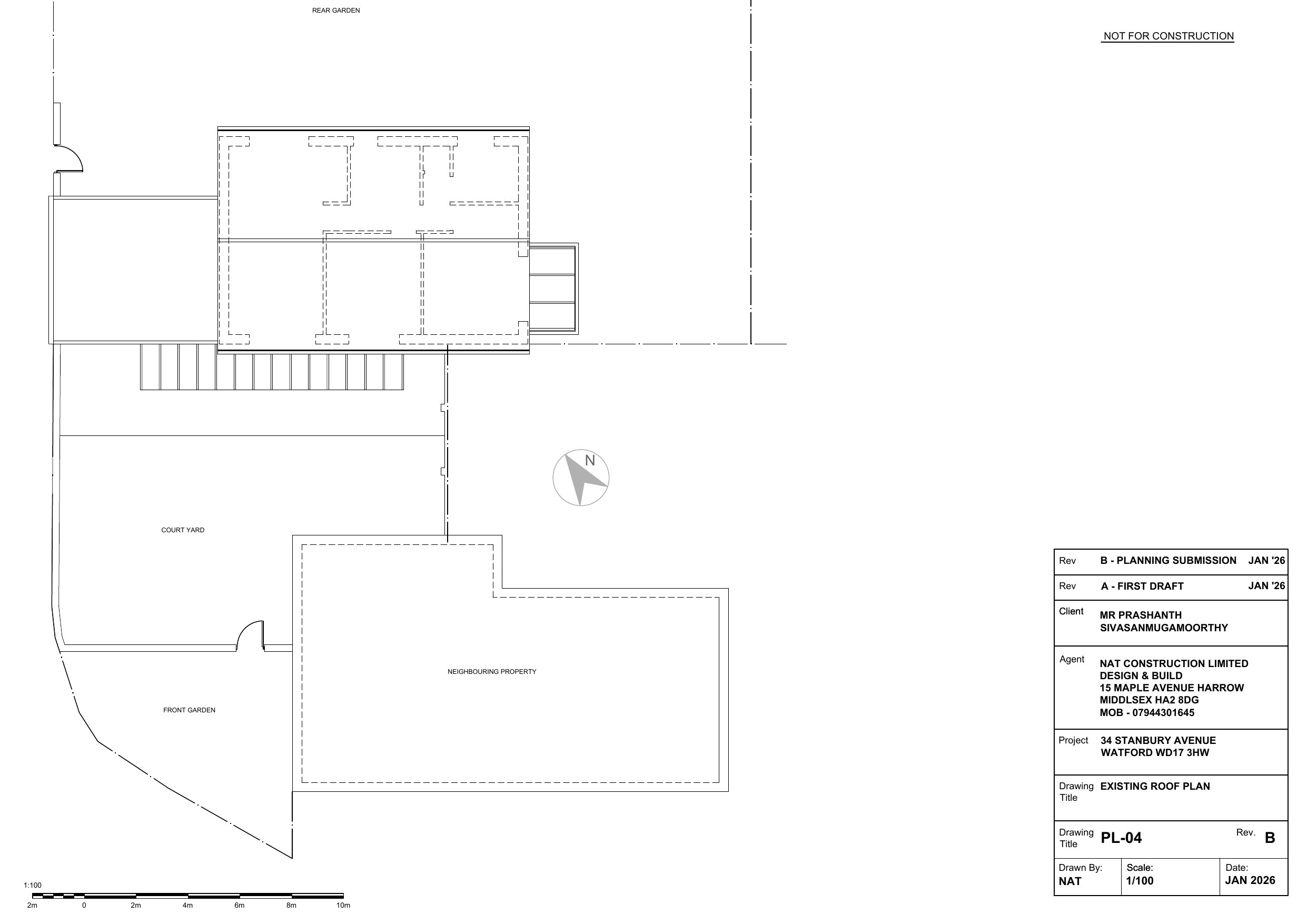
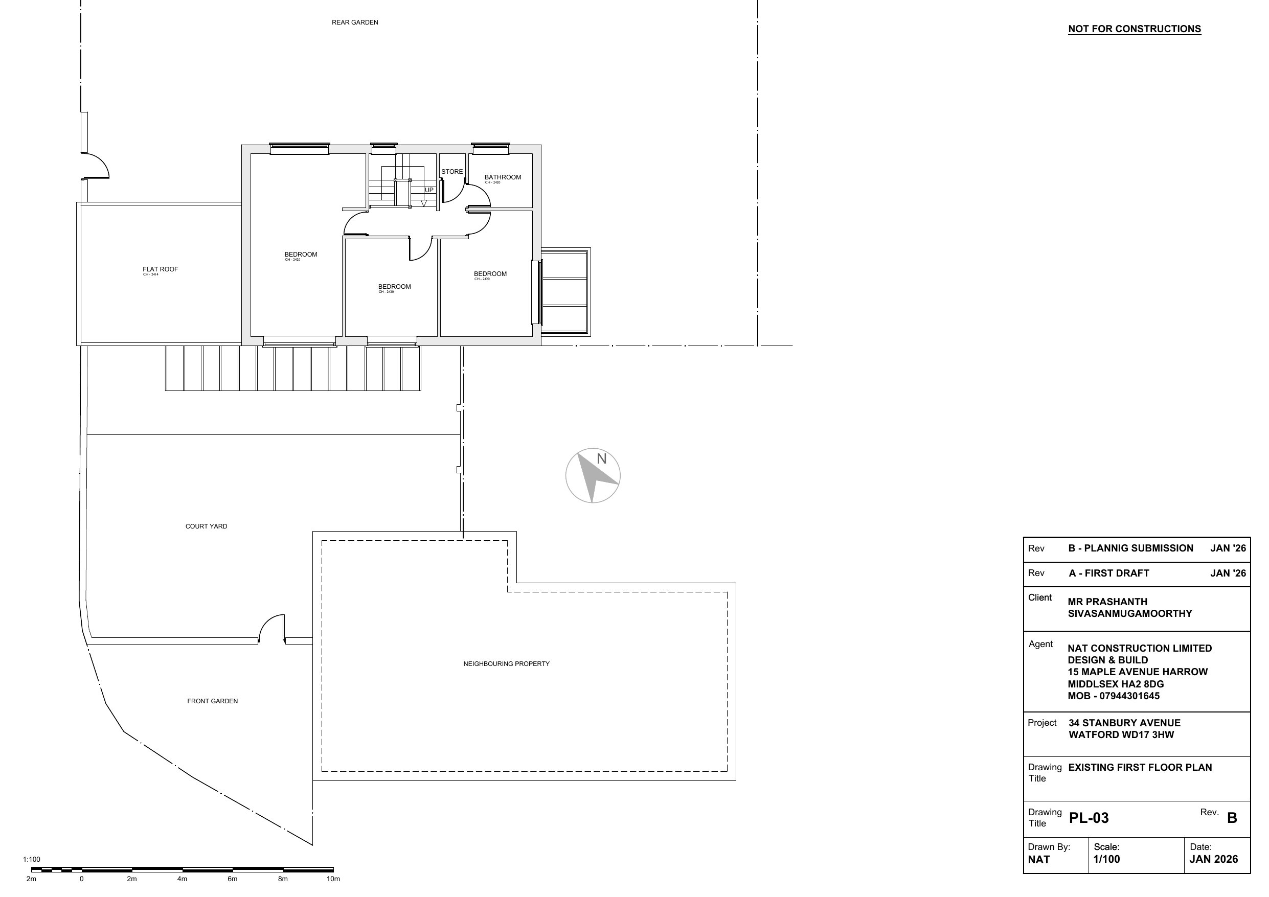
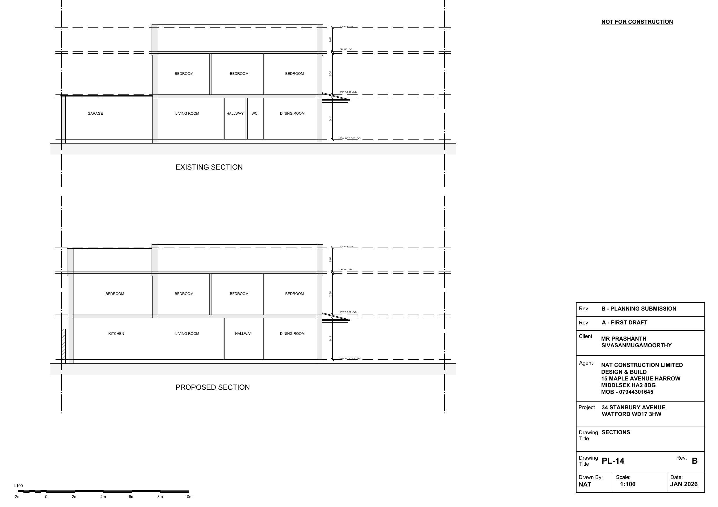
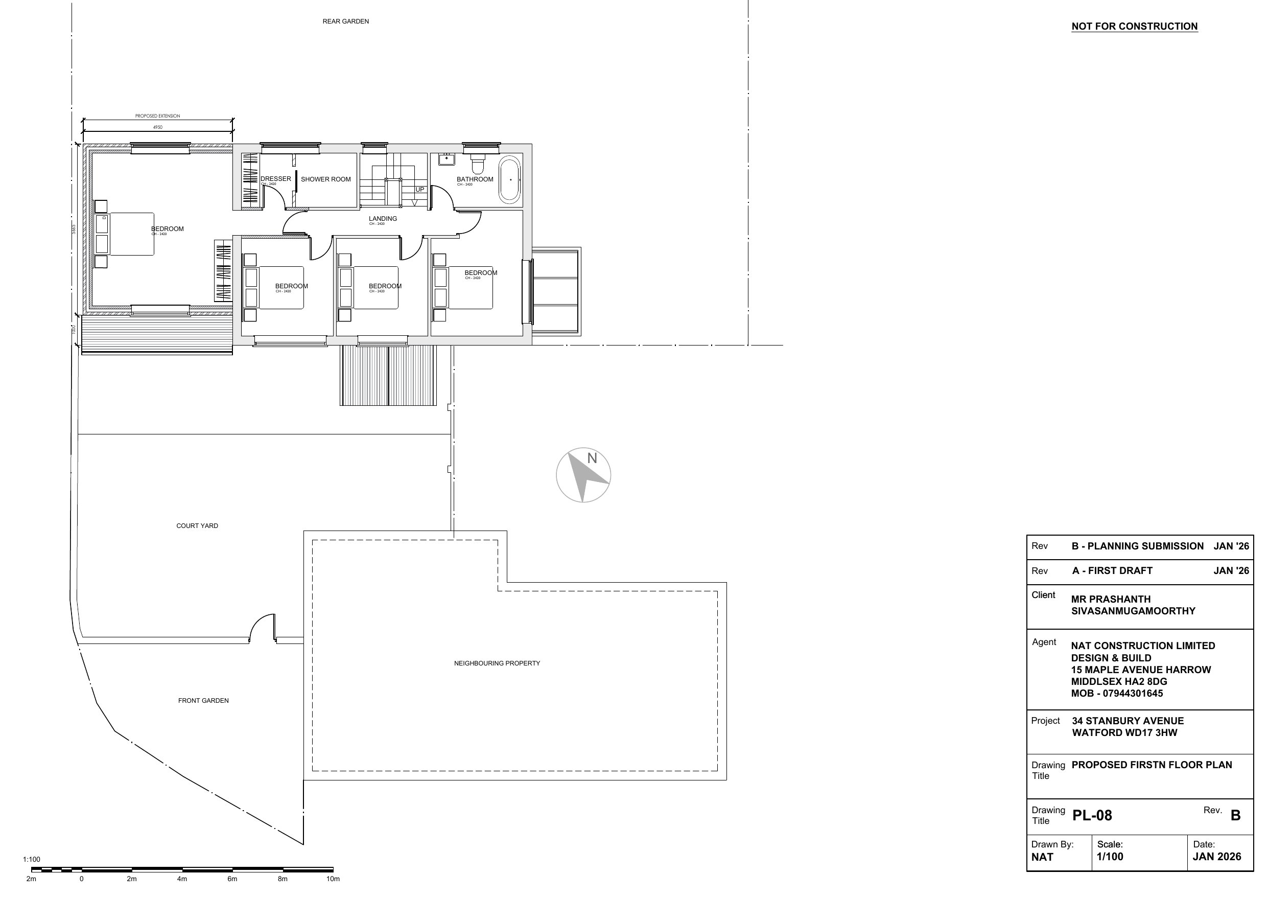
Demolition of existing garage and erection of double storey side extention, front porch and dropped kerb

Have your say

Your comment matters. Councils must consider every representation that raises material planning considerations.

Write a comment