← Watford Borough Council

Status

Pending consideration Change of use
Received
27 Jan 2026
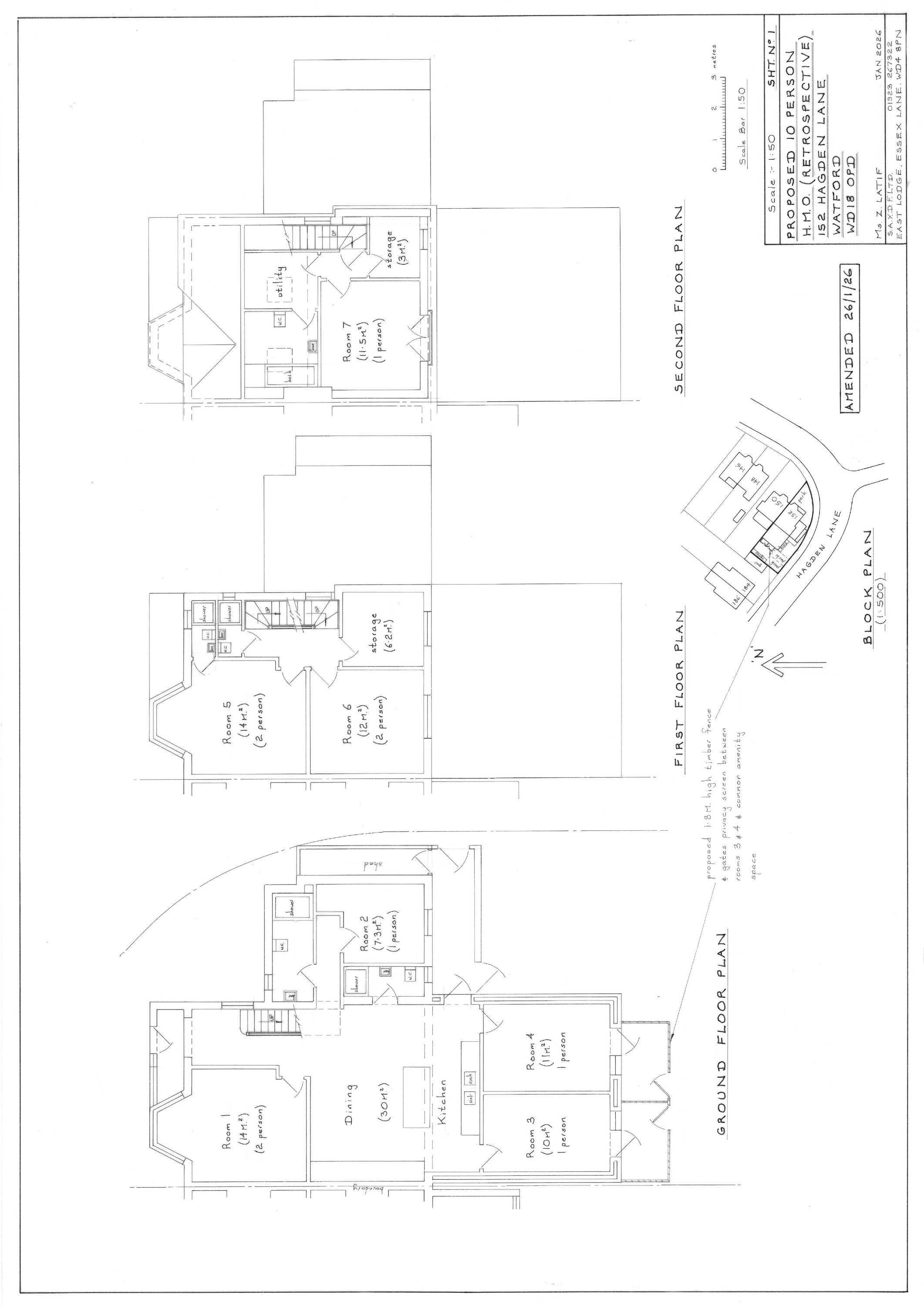
New homes
10

Full proposal

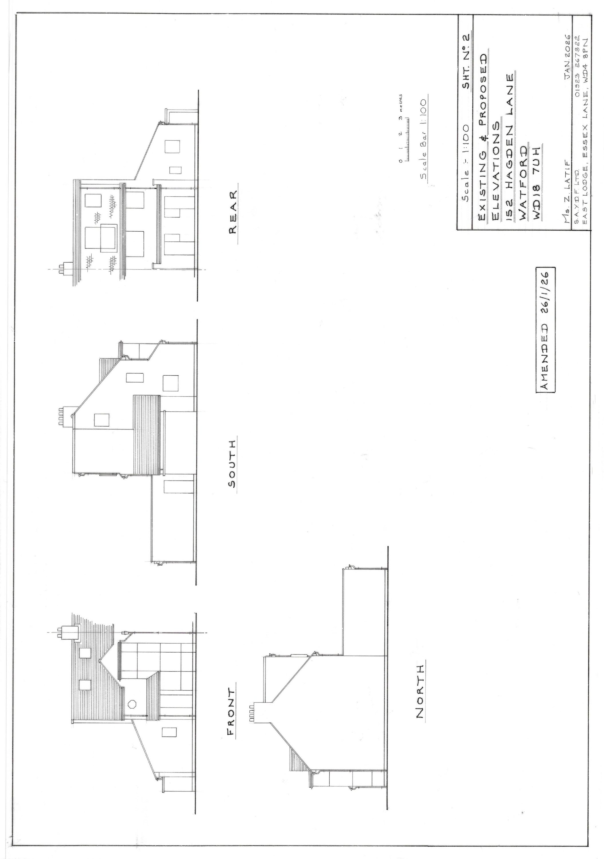
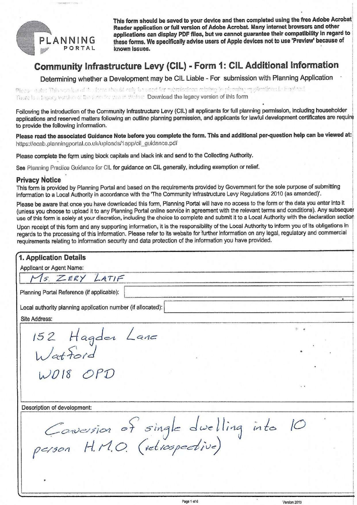
Retrospective - proposed residential conversion of original single dwelling into a 10 person HMO

Documents

Application Form
Archived · Original link
CIL Form
Archived · Original link
Correspondence
Archived · Original link
Drawing
Archived · Original link
Consultee Comment
Archived · Original link
Drawing
Archived · Original link
Objection Comment
Archived · Original link
OS Extract
Archived · Original link

Have your say

Your comment matters. Councils must consider every representation that raises material planning considerations.

Write a comment