← Watford Borough Council

Status

Pending consideration Change of use
Received
04 Feb 2026
New homes
1

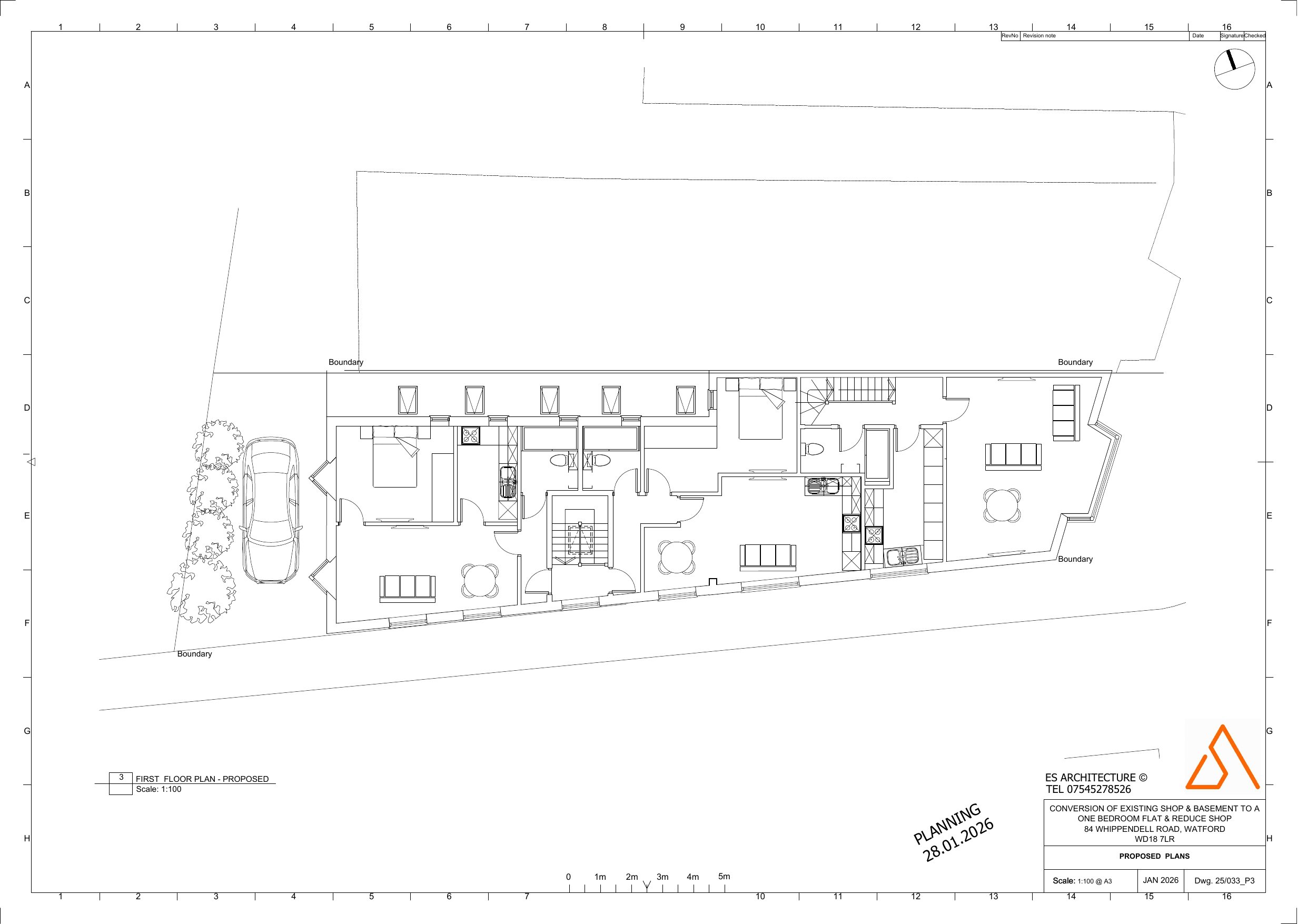
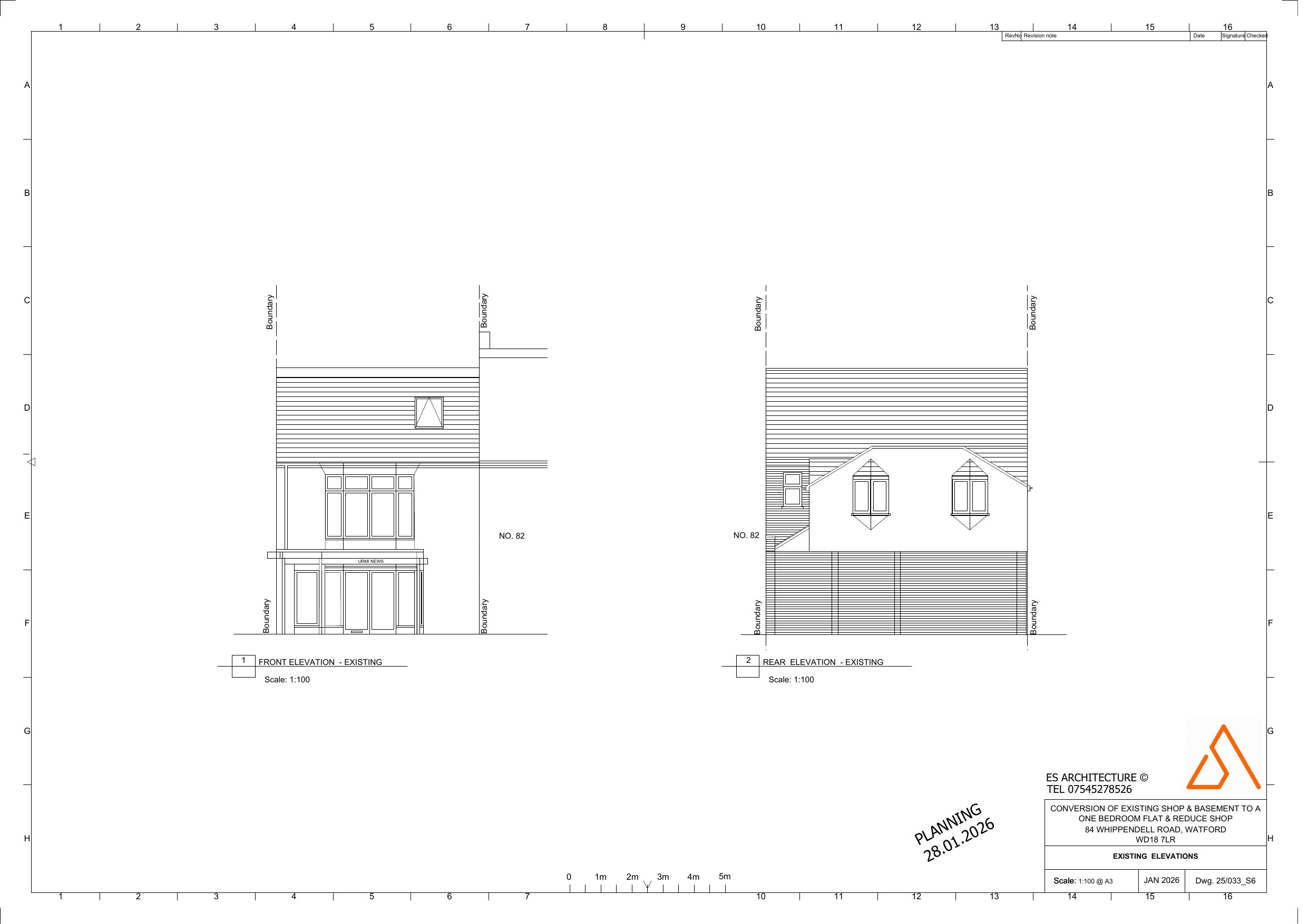
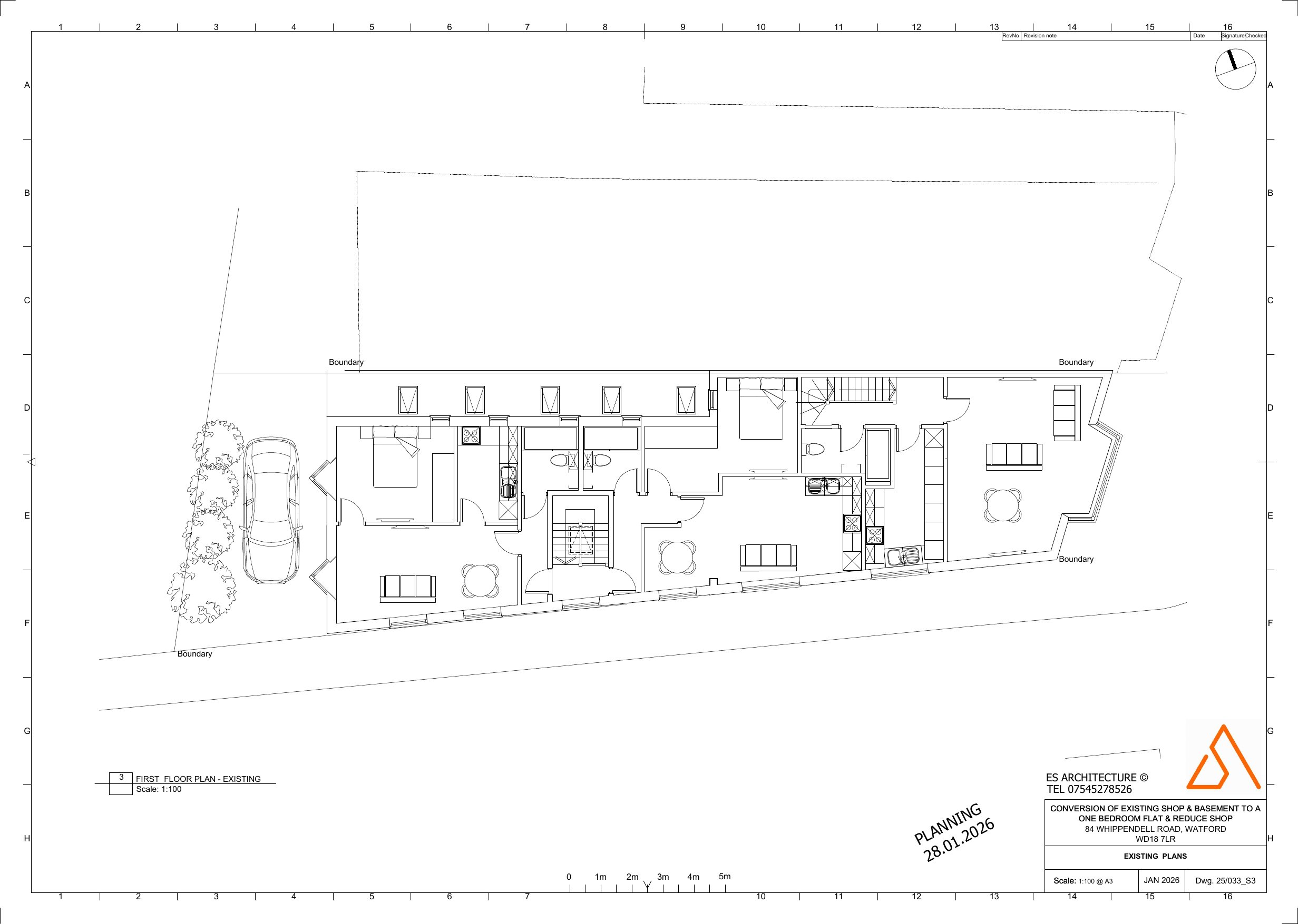
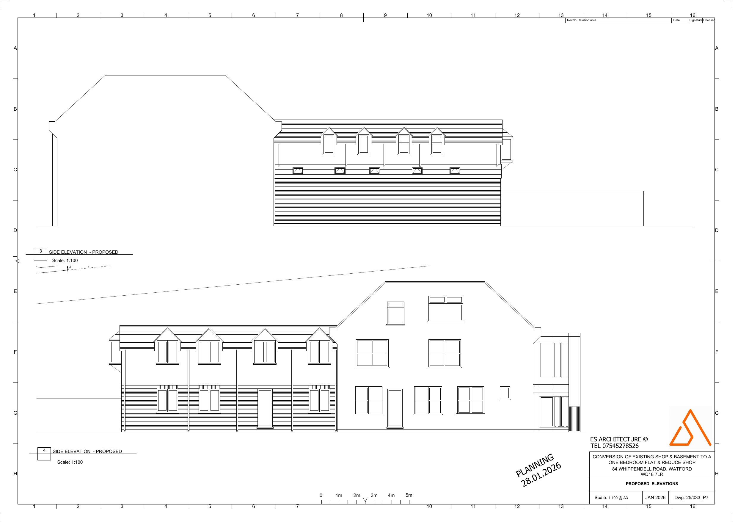
Full proposal

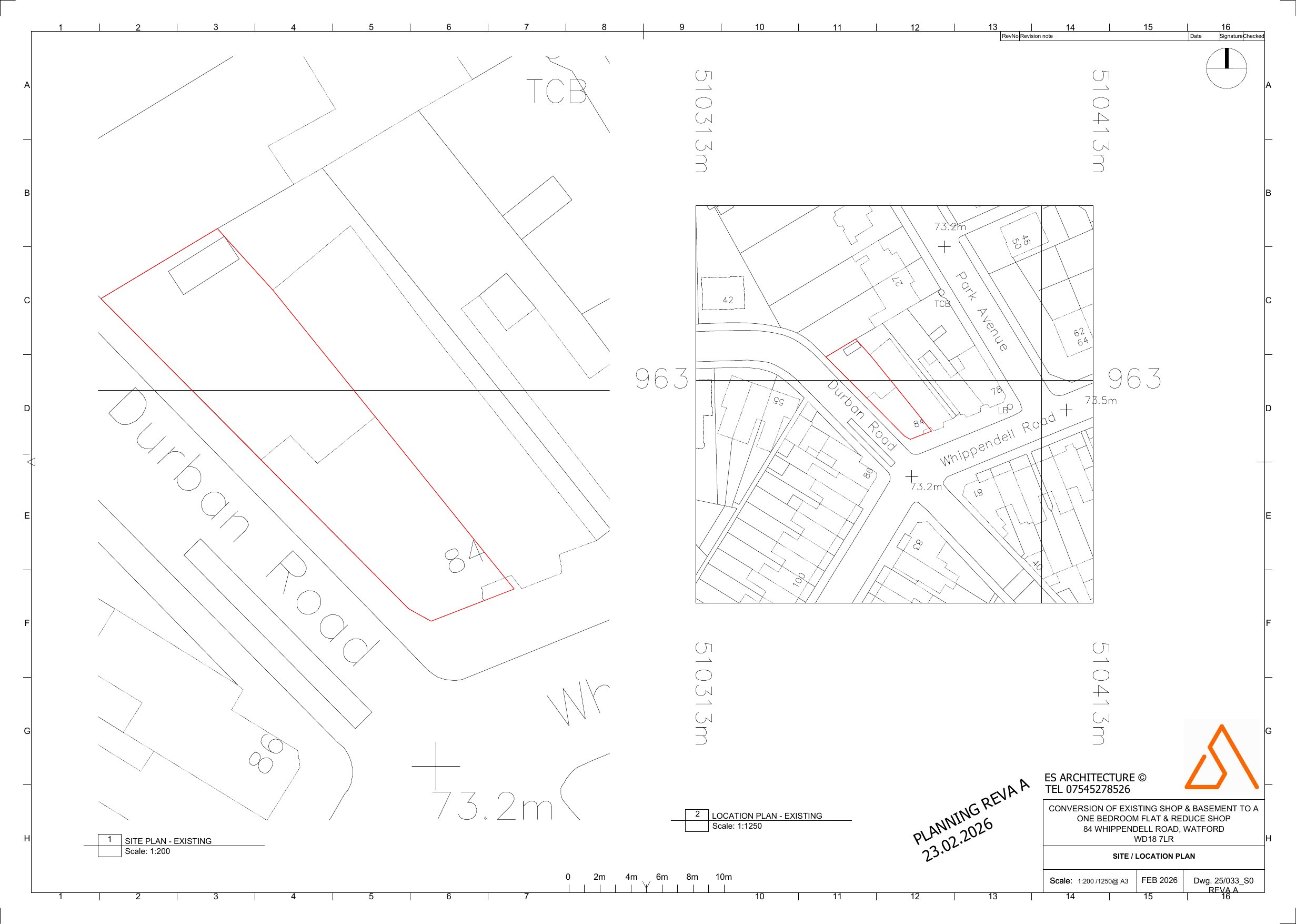
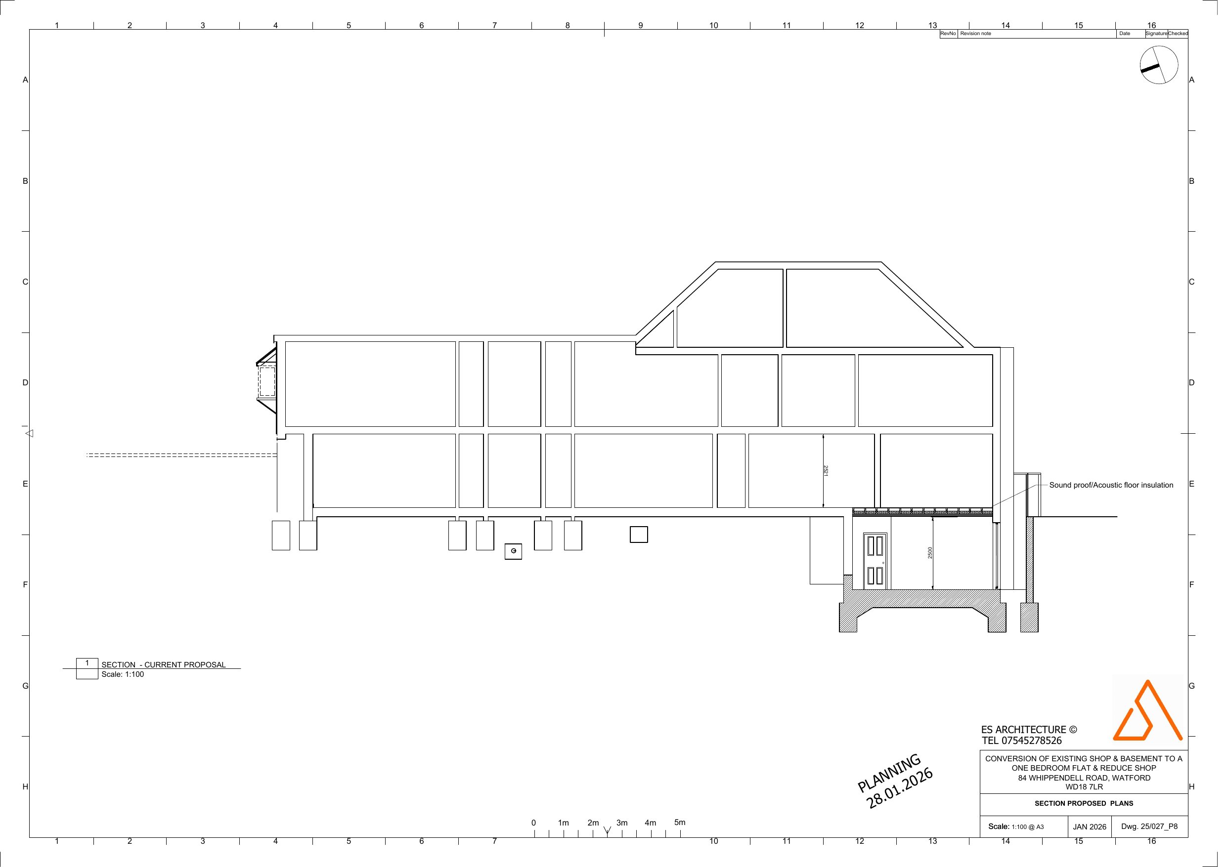
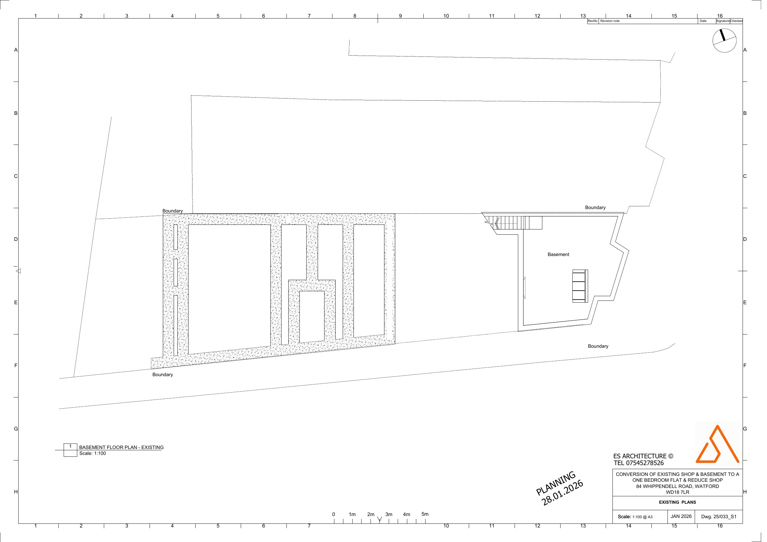
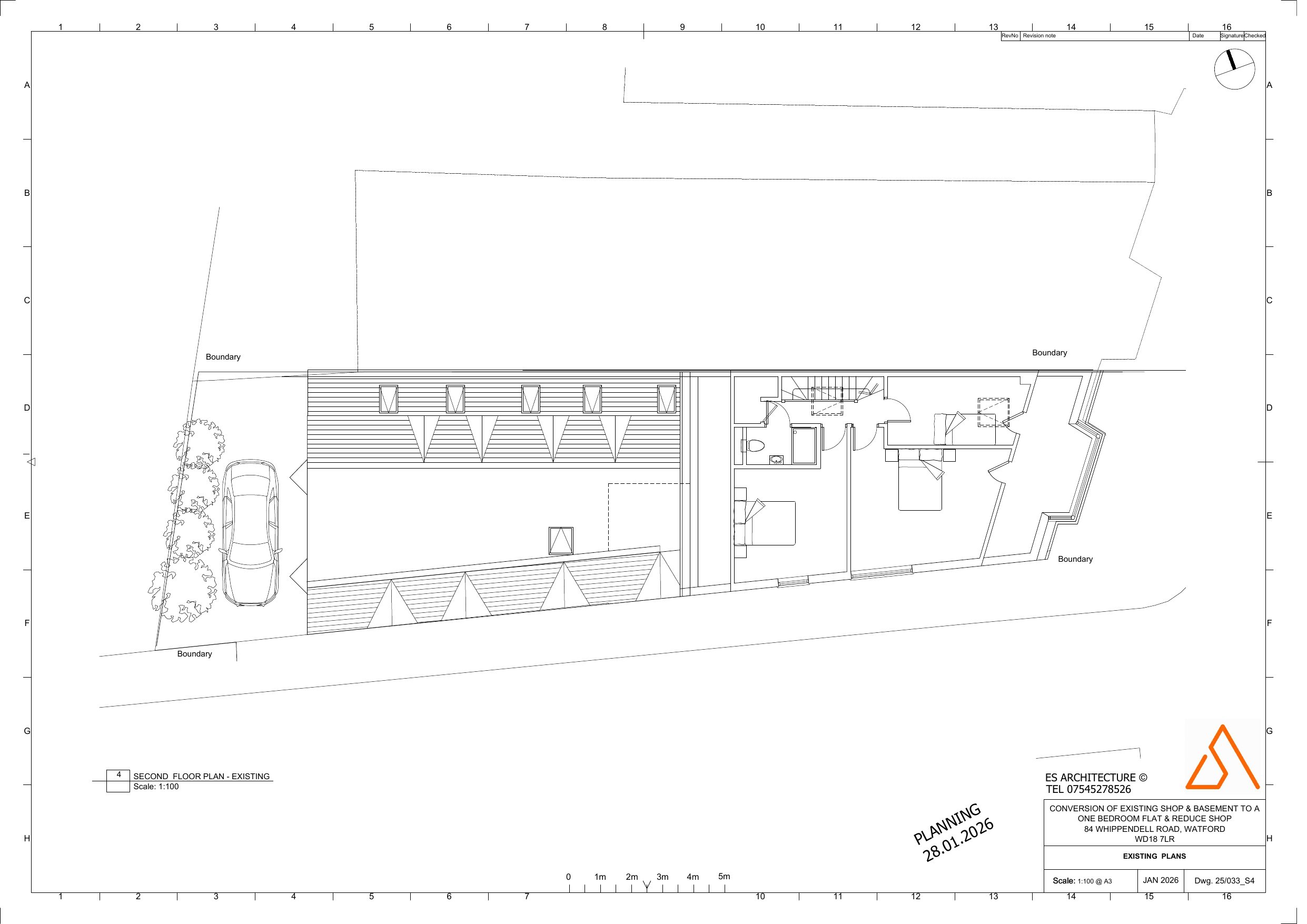
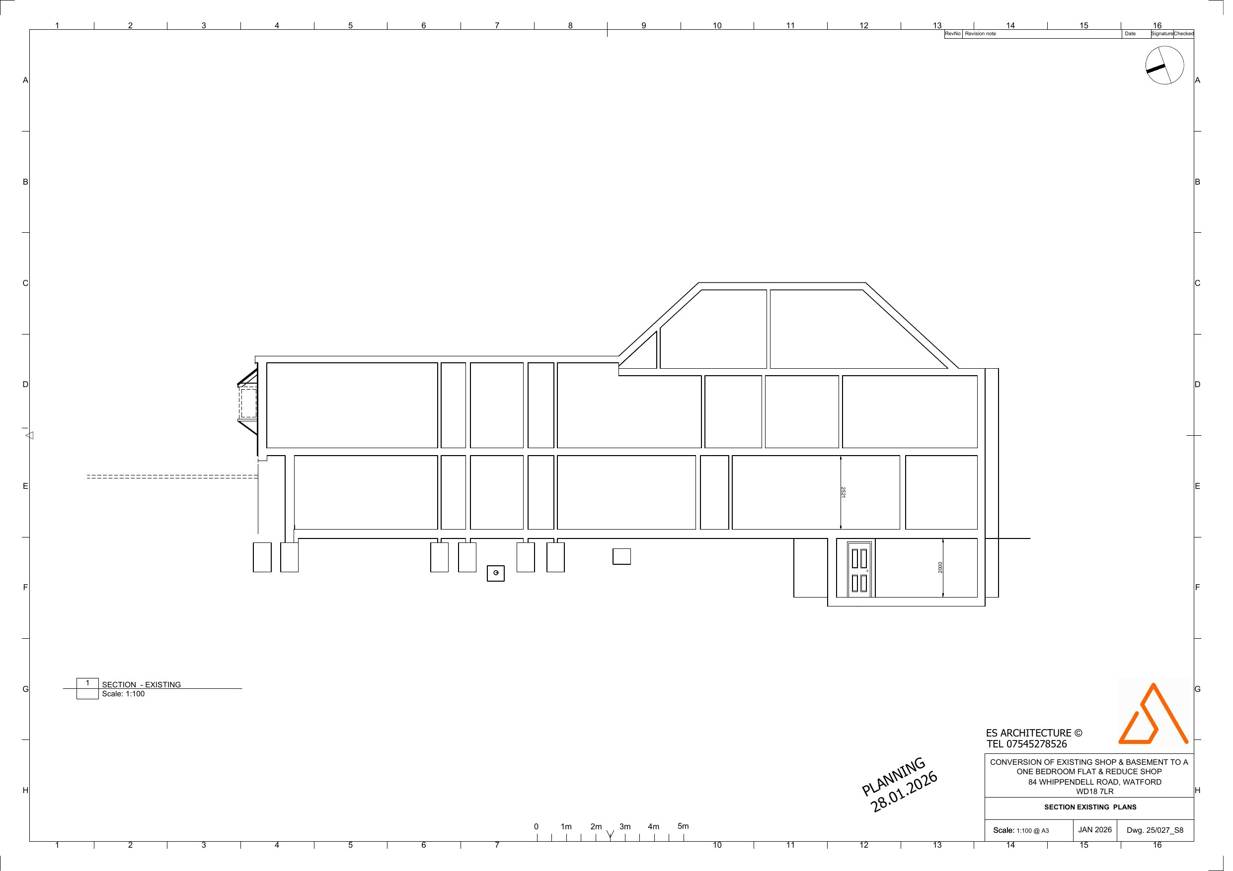
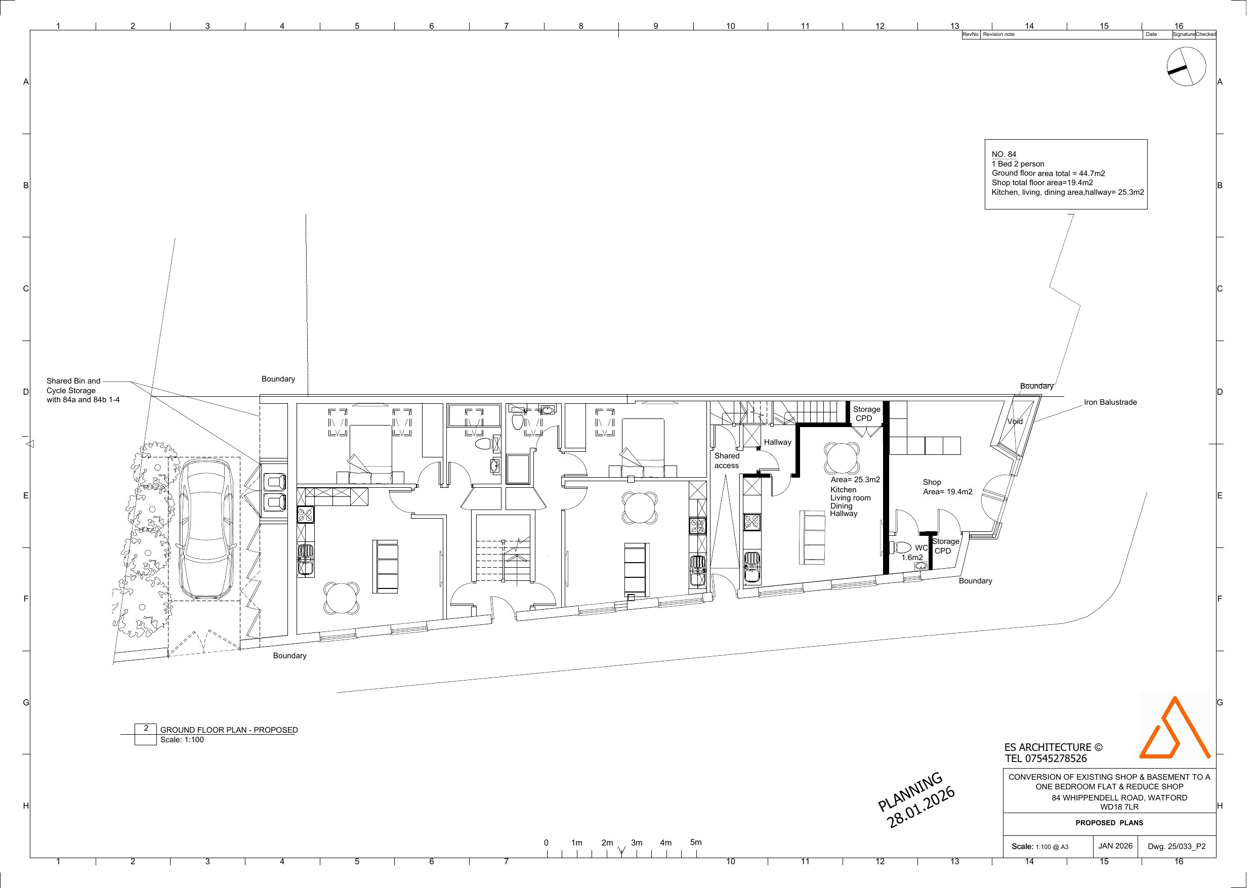
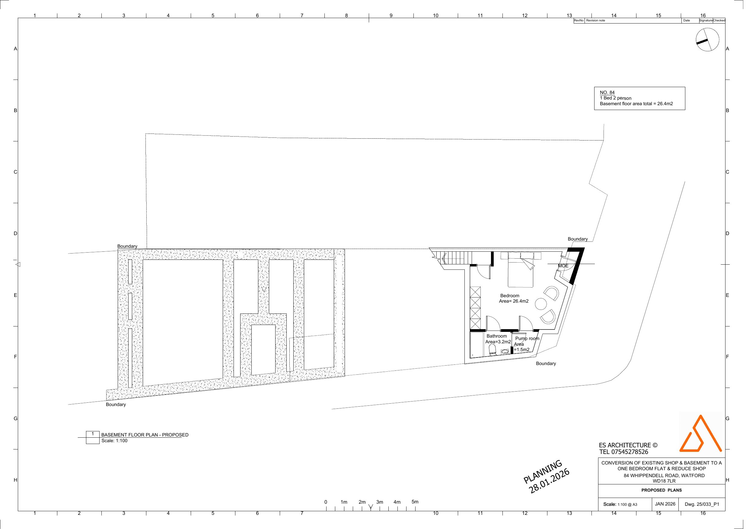
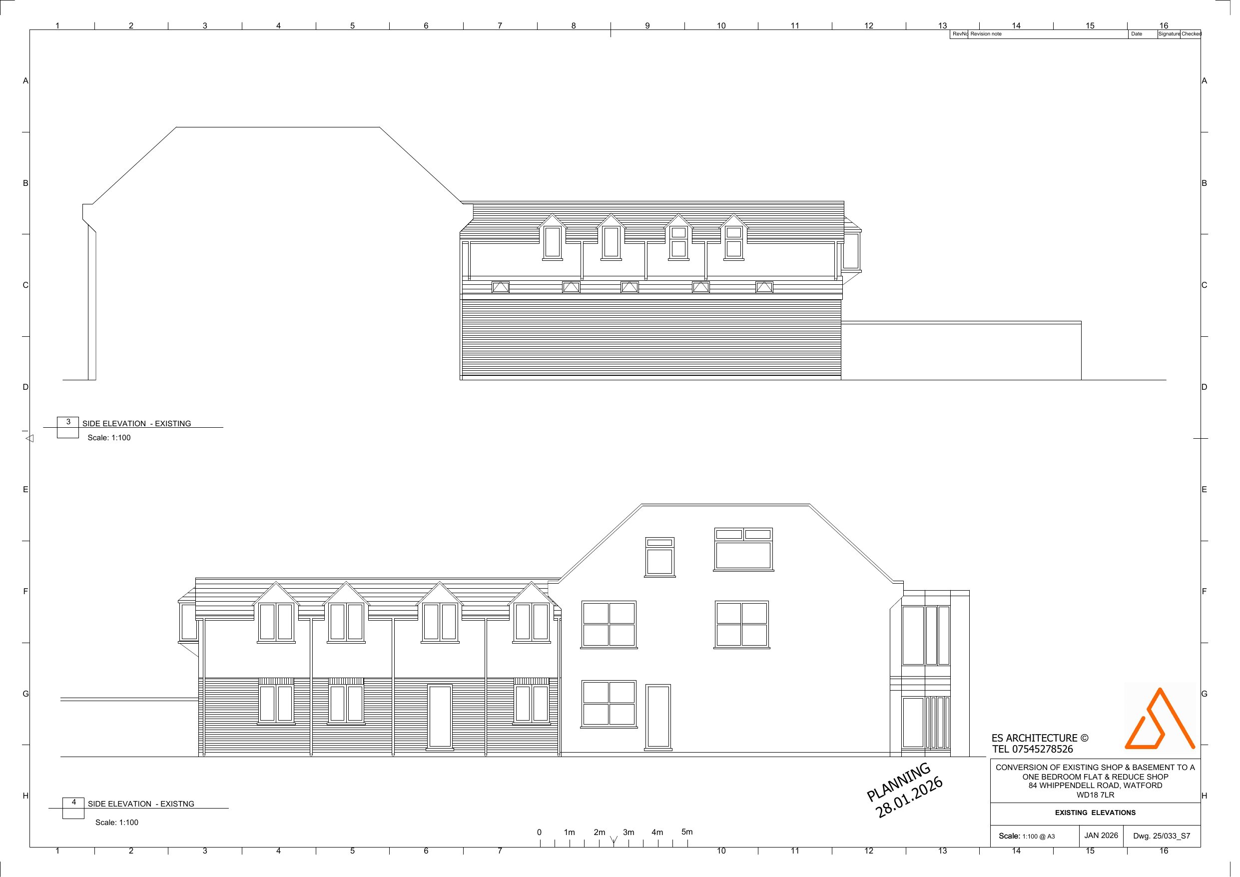
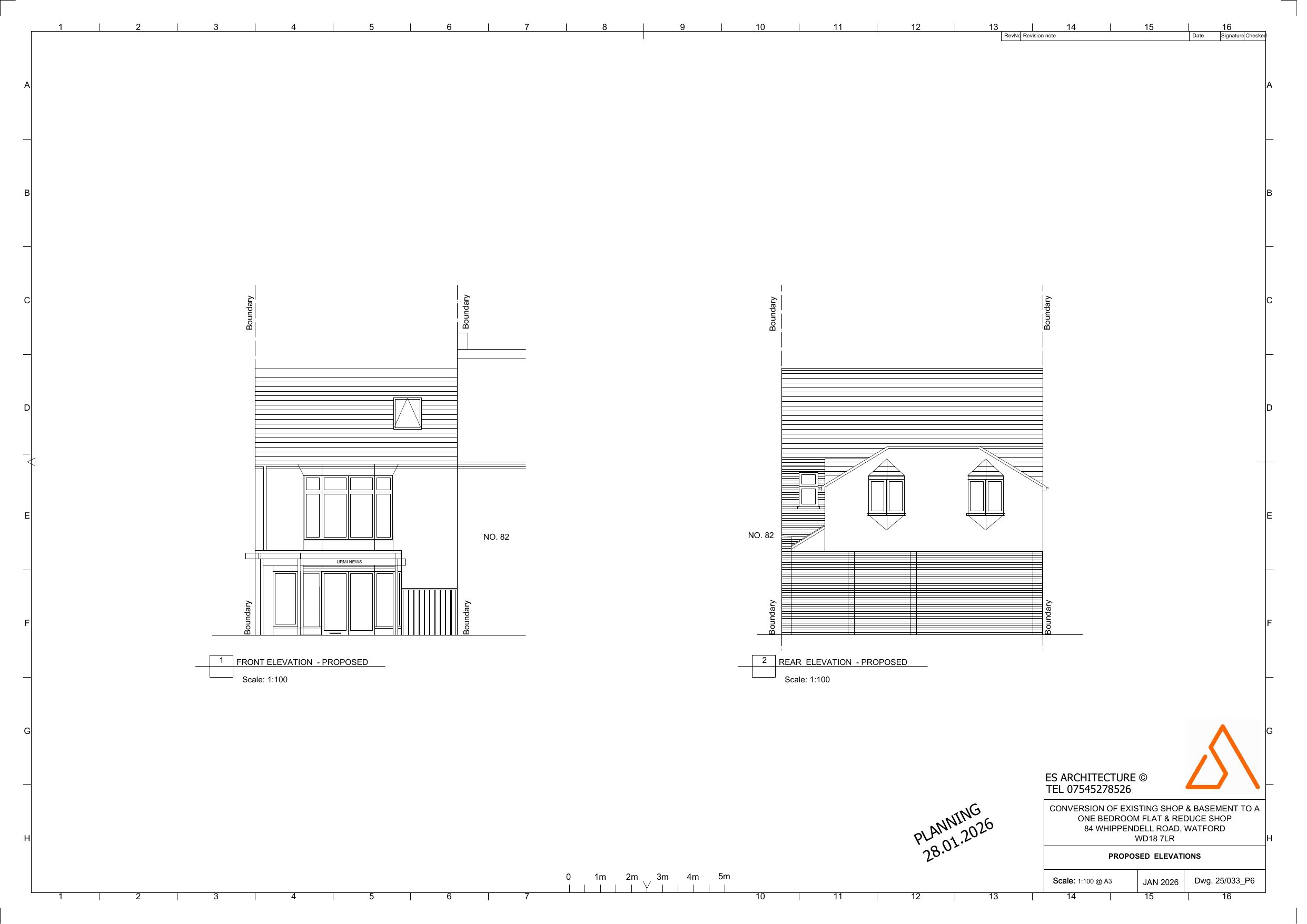
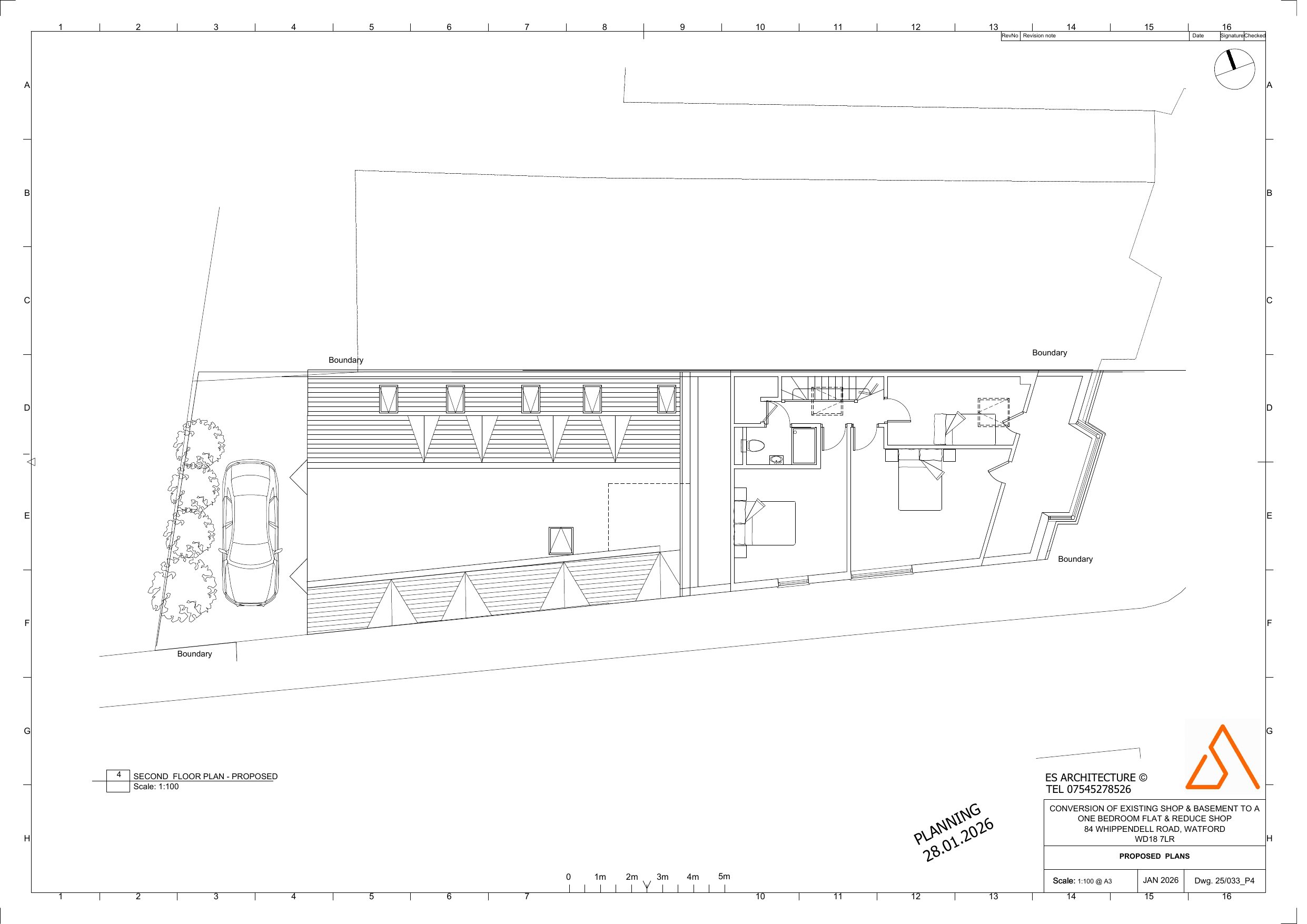
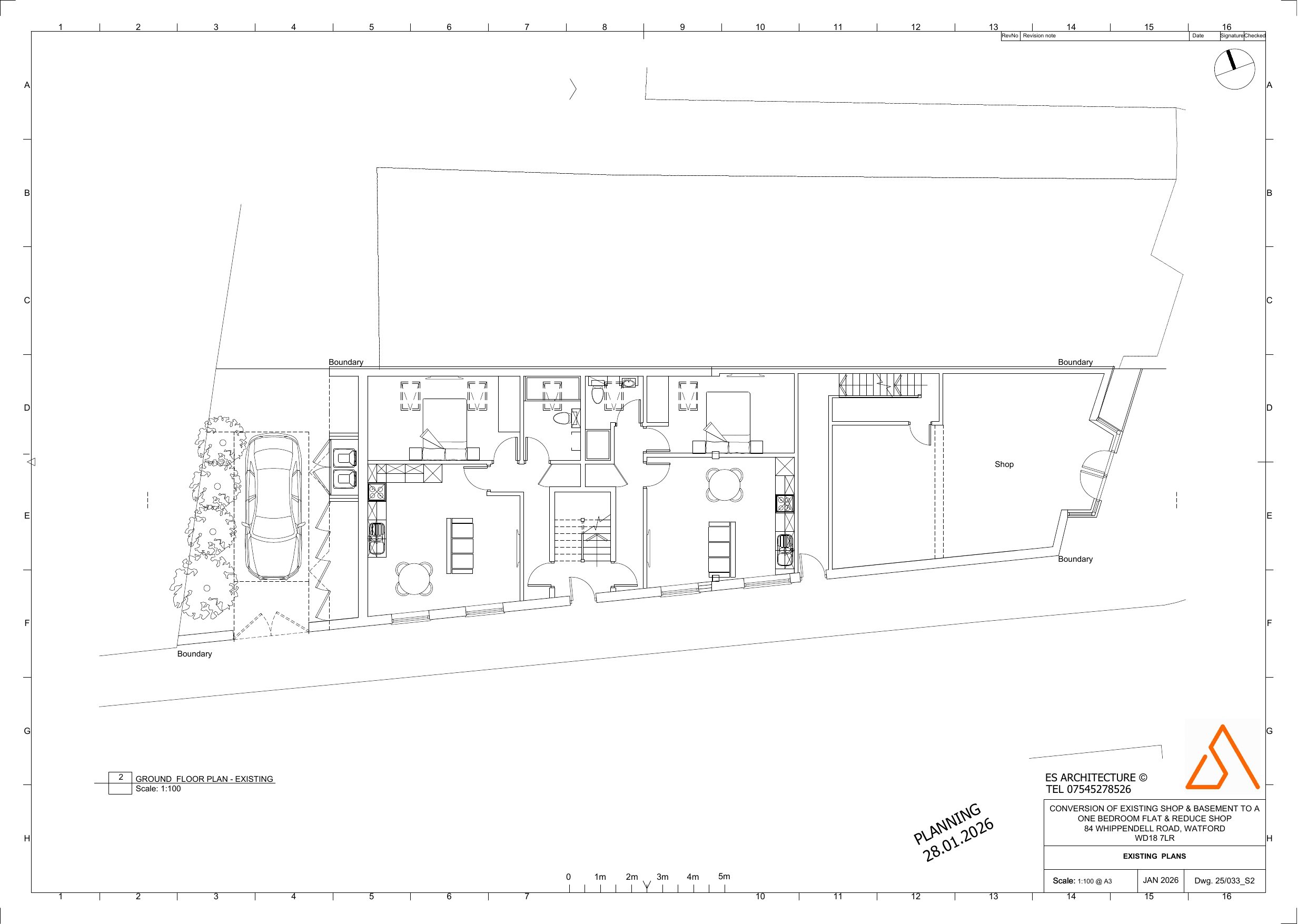
Conversion of rear part of shop and basement to a one bedroom flat with a light-well to the front and new windows to the side.

Documents

Application Form
Archived · Original link
CIL Form
Archived · Original link
Consultee Comment
Archived · Original link
Consultee Comment
Archived · Original link
Consultee Comment
Archived · Original link
Correspondence
Archived · Original link
Drawing
Archived · Original link
Drawing
Archived · Original link
Drawing
Archived · Original link
Drawing
Archived · Original link
Drawing
Archived · Original link
Consultee Comment
Archived · Original link

Have your say

Your comment matters. Councils must consider every representation that raises material planning considerations.

Write a comment