← Watford Borough Council

Status

Pending consideration House extension
Received
04 Feb 2026
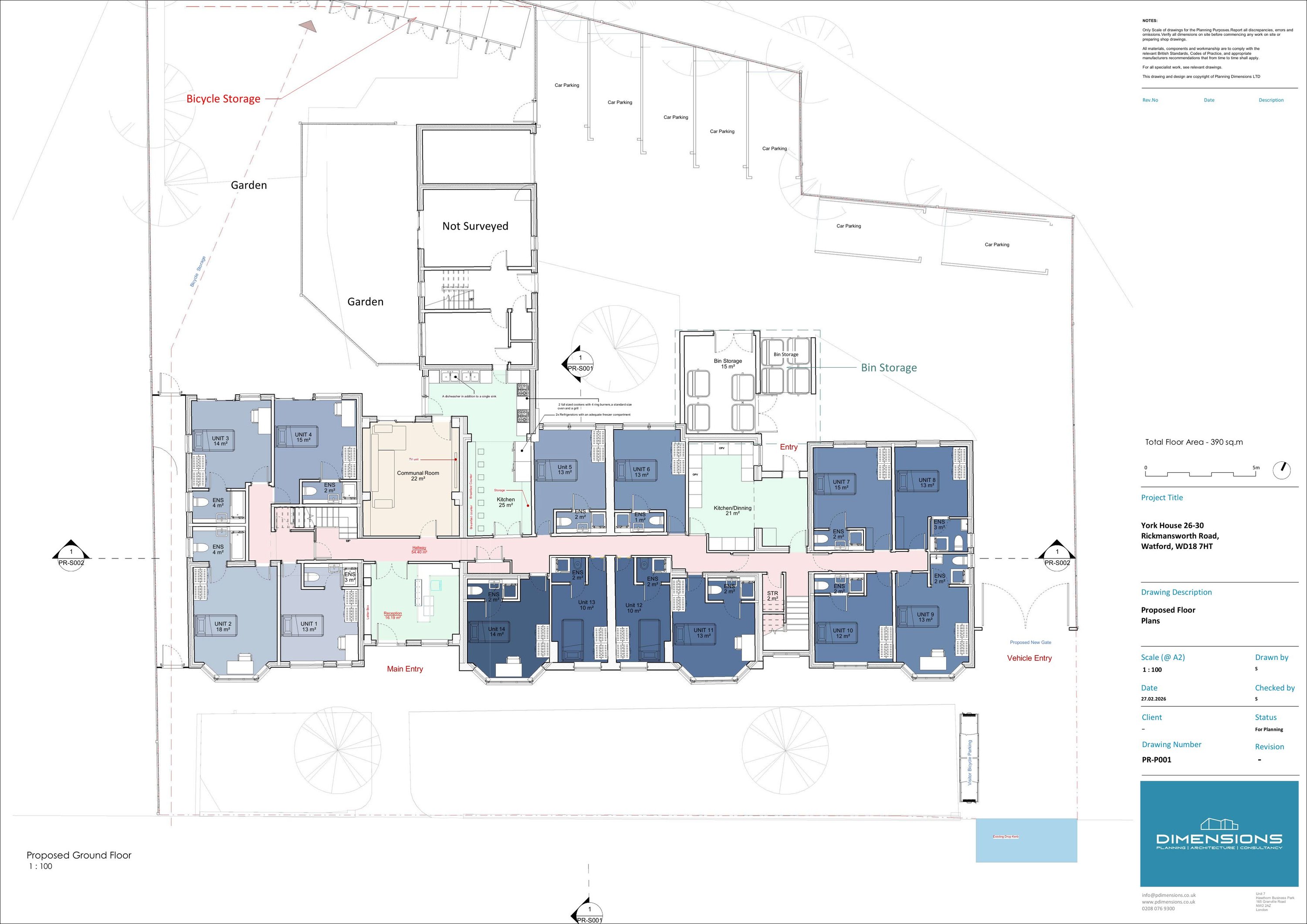
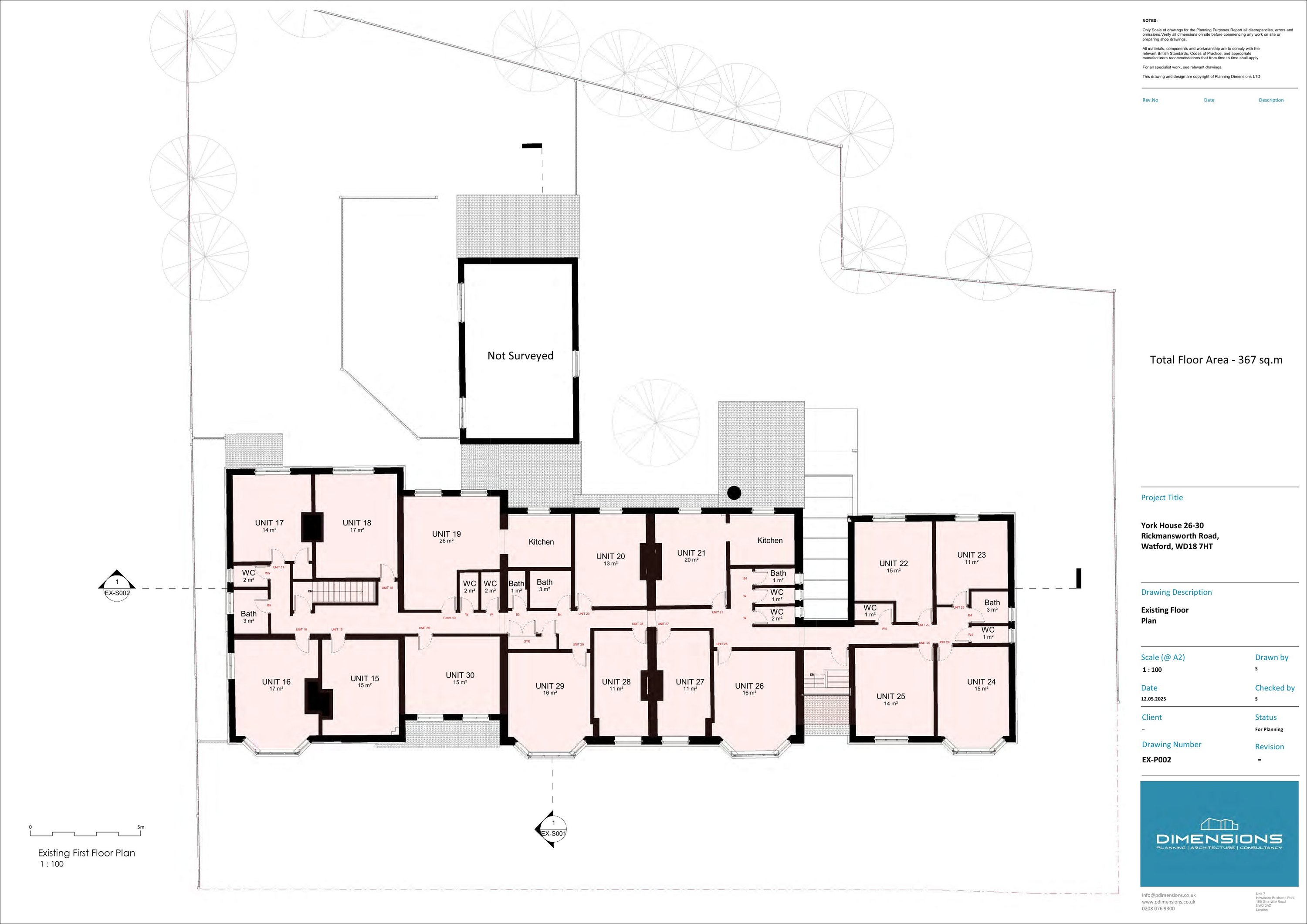
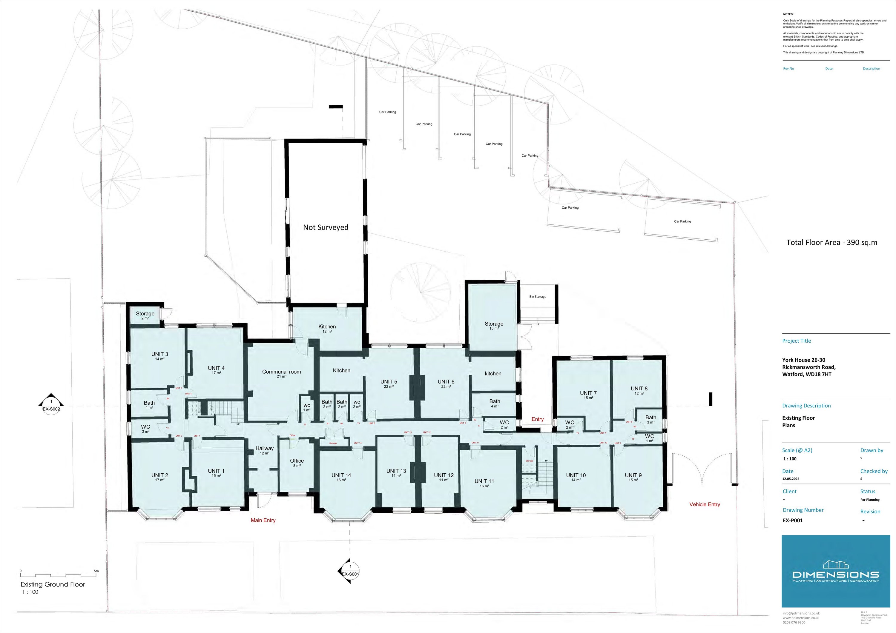
New homes
10

Full proposal

Loft conversion with side and rear dormer to facilitate internal alterations to allow for and additional 10 bedrooms and internal alterations to the existing facilities for the larger (HMO), including external works.

Documents

Application Form
Archived · Original link
Drawing
Archived · Original link
Drawing
Archived · Original link
Drawing
Archived · Original link
CIL Form
Archived · Original link
Report
Archived · Original link
Revised Drawing
Archived · Original link
Revised Drawing
Archived · Original link
Revised Drawing
Archived · Original link
Revised Drawing
Archived · Original link
Revised Drawing
Archived · Original link
Revised Drawing
Archived · Original link
Revised Drawing
Archived · Original link
Revised Drawing
Archived · Original link
Revised Drawing
Archived · Original link
Revised Drawing
Archived · Original link

Have your say

Your comment matters. Councils must consider every representation that raises material planning considerations.

Write a comment