26/00082/FULM
Watford Borough Council
Status
Full proposal
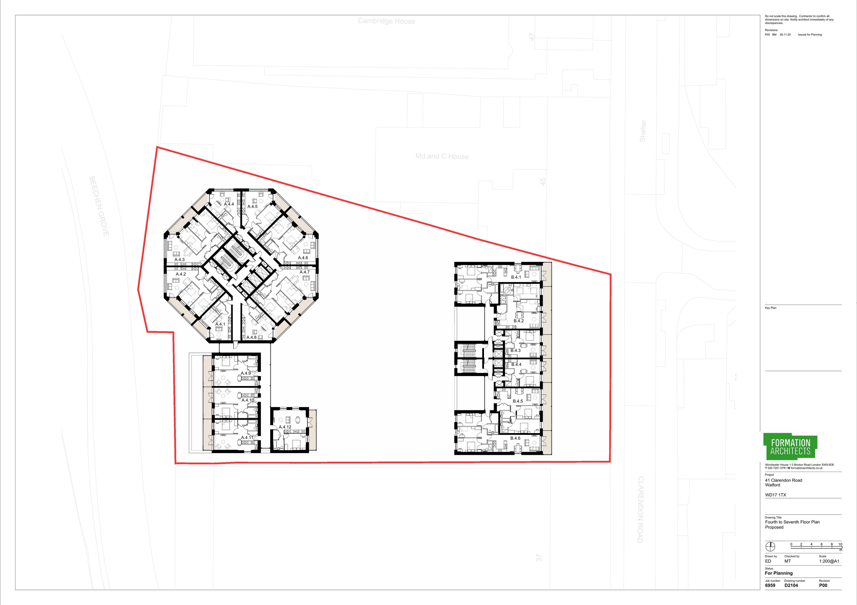
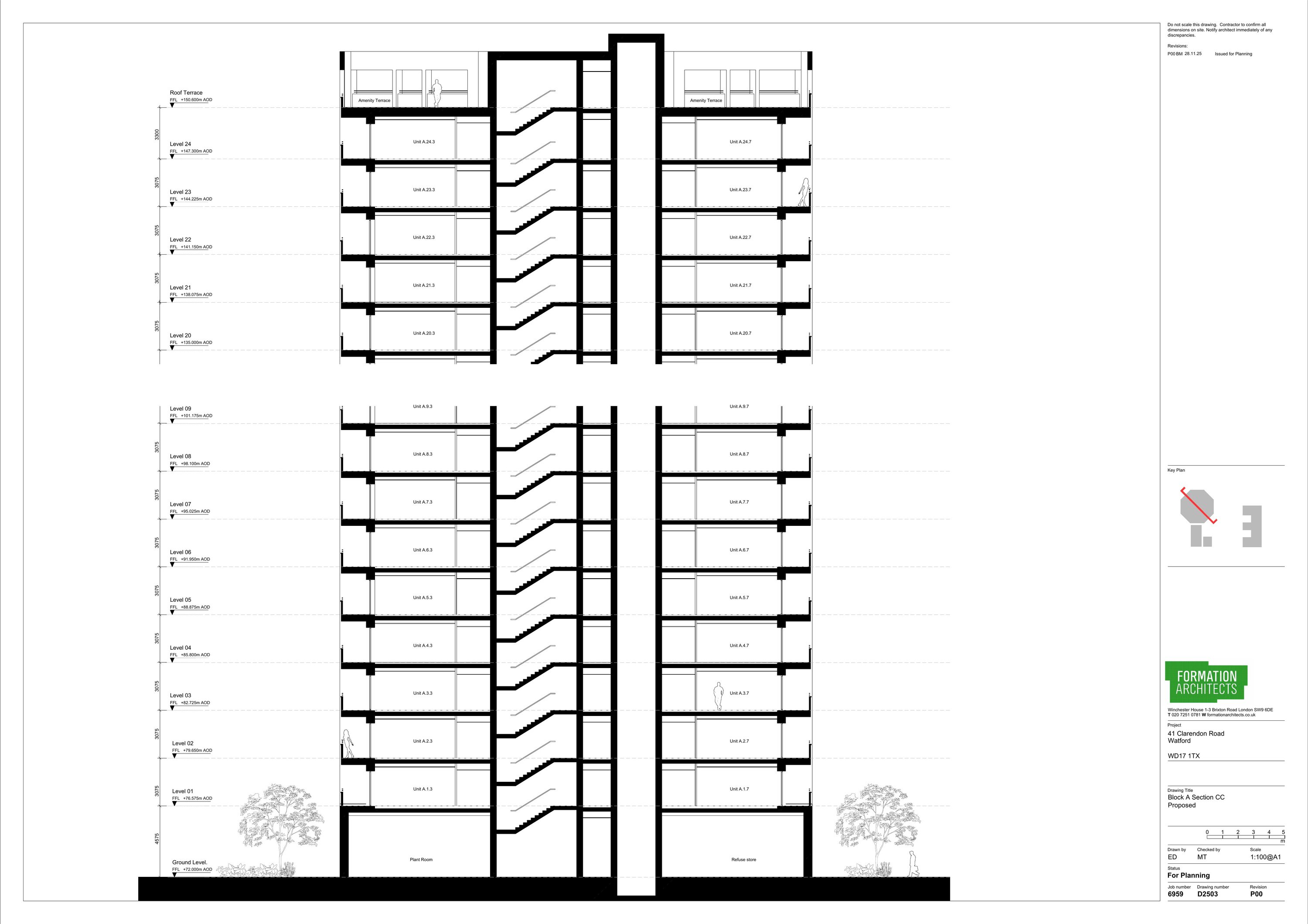
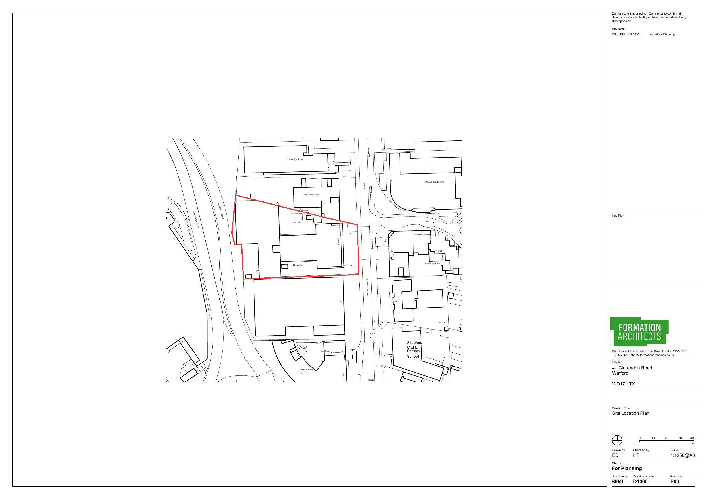
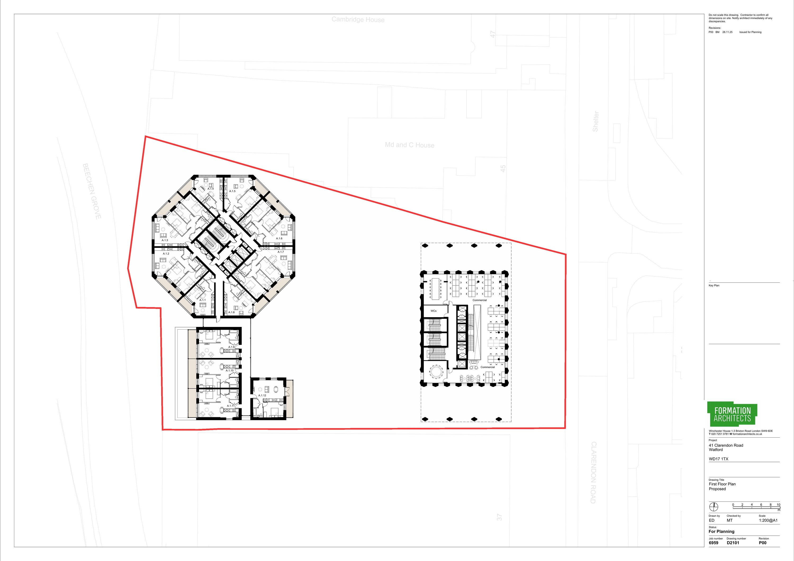
Demolition of existing commercial building, car parking area and hardstanding, and erection of two buildings, one of up to 12 storeys on the Clarendon Road frontage (comprising two floors of commercial floorspace within Use Class E(g)(i) at ground and first floors, with C3 residential apartments on upper floors) and the second comprising a tower of up to 25 storeys and a linked building of up to 8 storeys, both positioned to the rear of the site and proposed for C3 residential use, together with car and cycle parking, refuse storage, plant/utilities infrastructure and associated landscaping and infrastructure.
Documents
Have your say
Your comment matters. Councils must consider every representation that raises material planning considerations.