← Watford Borough Council

Status

Pending consideration New housing
Received
Last month
New homes
1

Full proposal

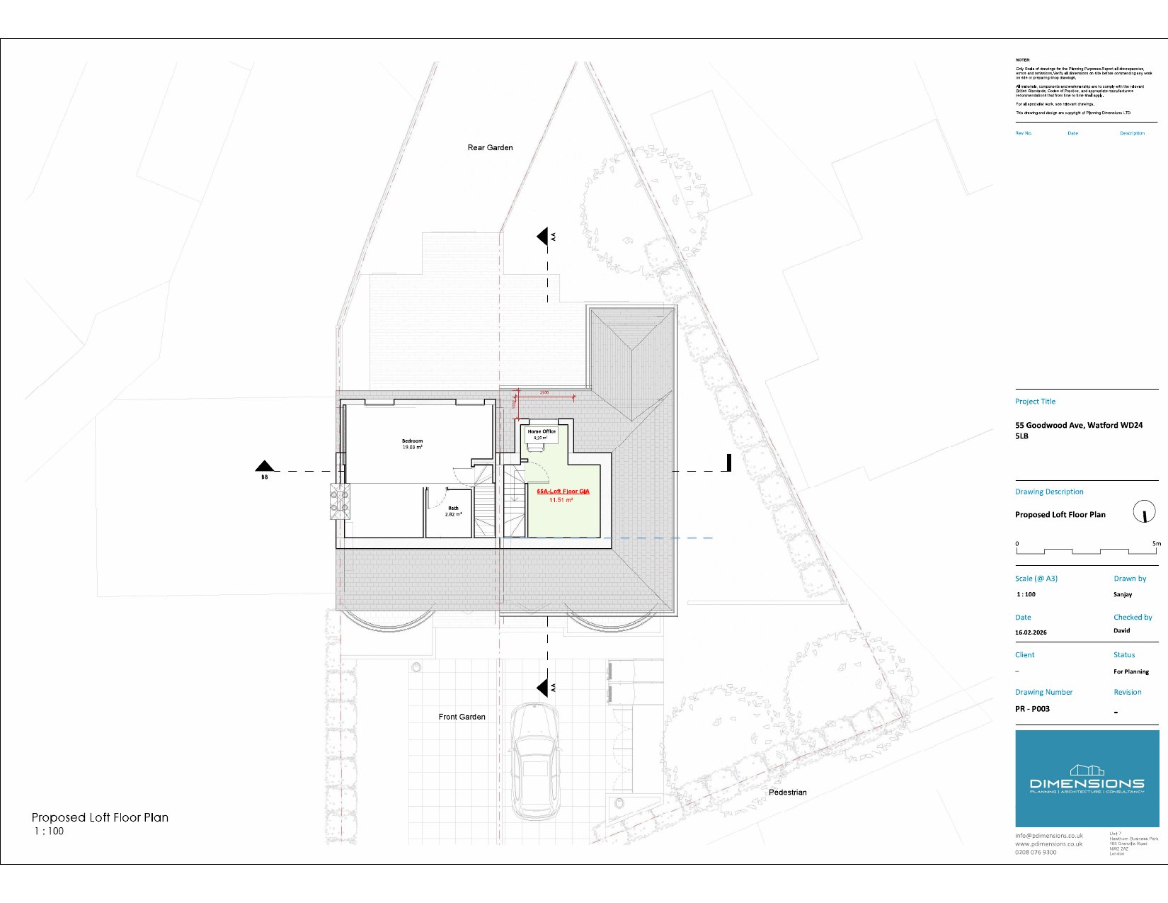
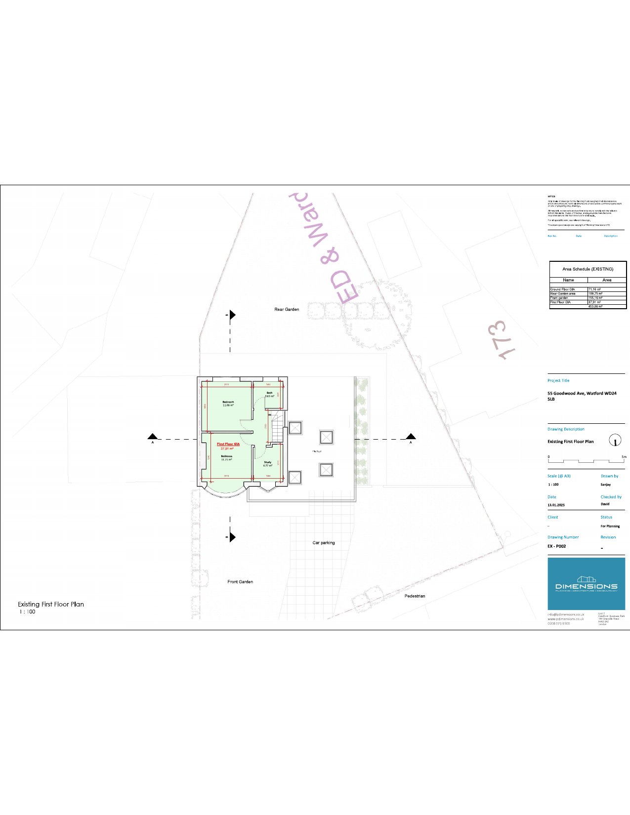
Erection of a two storey side extension and subdivision of the existing house to create a new dwelling. Associated amenity space, refuse storage and cycle store.

Documents

Application Form
Archived · Original link
Report
Archived · Original link
Correspondence
Archived · Original link
CIL Form
Archived · Original link
Correspondence
Archived · Original link
Drawing
Archived · Original link
Drawing
Archived · Original link
Drawing
Archived · Original link
Drawing
Archived · Original link
Correspondence
Archived · Original link
Drawing
Archived · Original link
Consultee Comment
Archived · Original link
Correspondence
Archived · Original link
Correspondence
Archived · Original link
Revised Drawing
Archived · Original link
Revised Drawing
Archived · Original link
Revised Drawing
Archived · Original link
Revised Drawing
Archived · Original link
Revised Drawing
Archived · Original link
Revised Drawing
Archived · Original link
Revised Drawing
Archived · Original link
Revised Drawing
Archived · Original link
Revised Drawing
Archived · Original link
Revised Drawing
Archived · Original link
Revised Drawing
Archived · Original link
Objection Comment
Archived · Original link
Consultee Comment
Archived · Original link

Have your say

Your comment matters. Councils must consider every representation that raises material planning considerations.

Write a comment