← Watford Borough Council

Status

Pending consideration House extension
Received
Last month
New homes
0

Full proposal

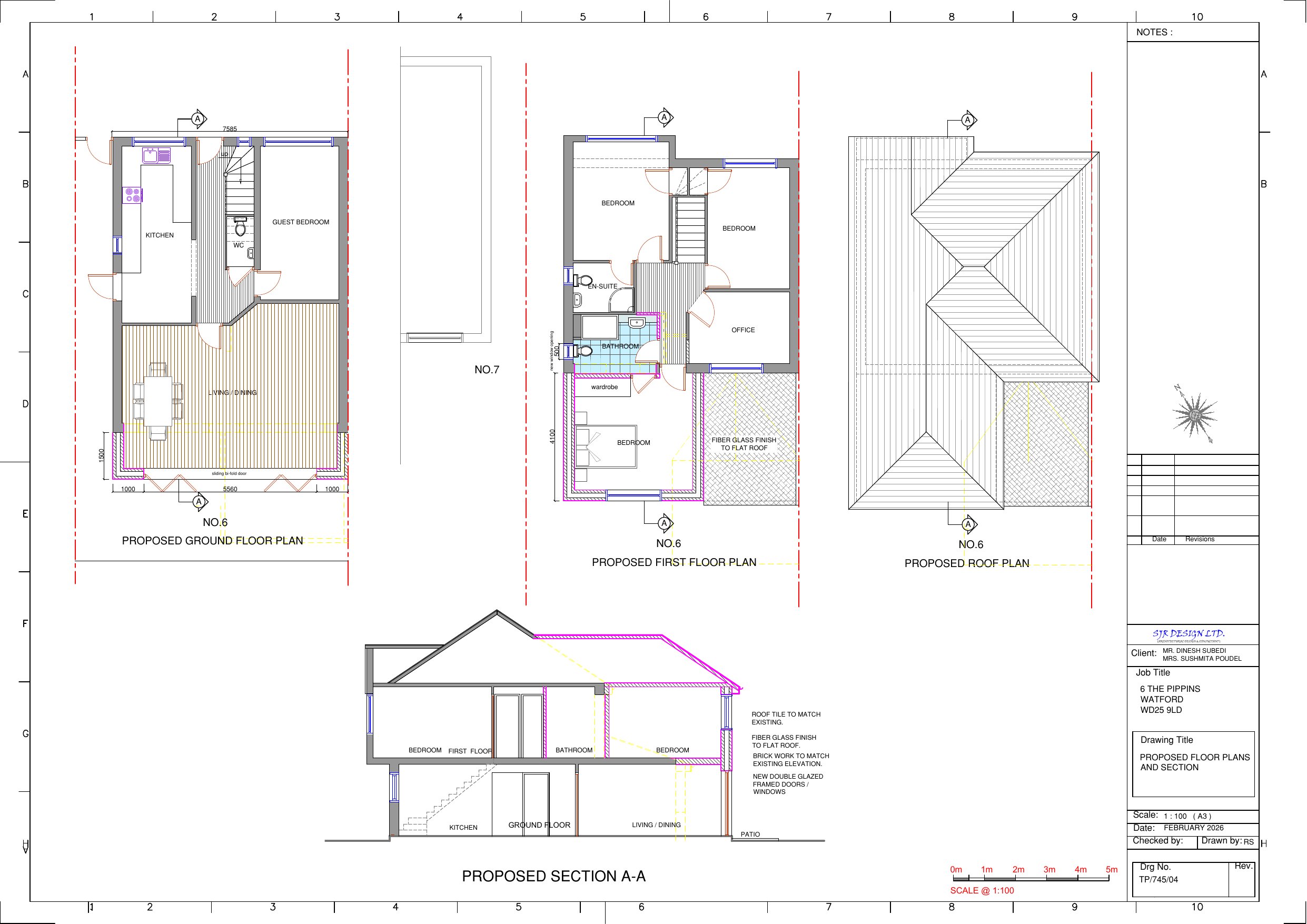
Erection of part single storey; part two storey rear extension and internal alteration of the dwellinghouse.

Documents

APPLICATIONFORMREDACTED
Application Form
Not yet archived · Original link
CIL FORM
CIL Form
Not yet archived · Original link
EXISTING ELEVATIONS
Drawing
Not yet archived · Original link
EXISTING FLOOR PLANS
Drawing
Not yet archived · Original link
FIRE STRATEGY REPORT
Report
Not yet archived · Original link
PROPOSED BLOCK PLAN
Drawing
Not yet archived · Original link
PROPOSED ELEVATIONS
Drawing
Not yet archived · Original link

Have your say

Your comment matters. Councils must consider every representation that raises material planning considerations.

Write a comment