26/00132/FULH
Watford Borough Council
Status
Pending Decision
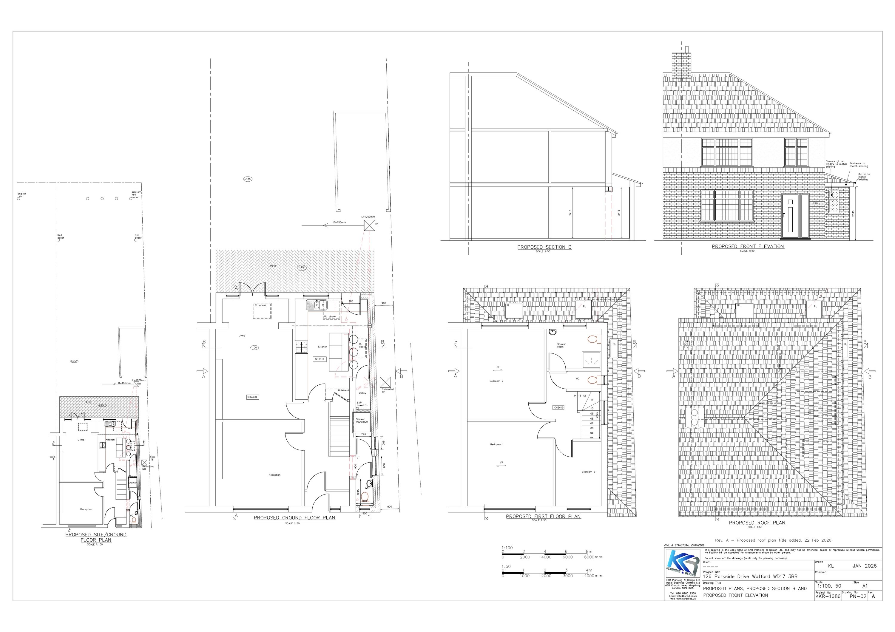
House extension
Received
Last month
New homes
0
Full proposal
Erection of single storey side and part rear extension
Documents
Have your say
Your comment matters. Councils must consider every representation that raises material planning considerations.