← Watford Borough Council

Status

Pending Decision House extension
Received
Last month
New homes
0

Full proposal

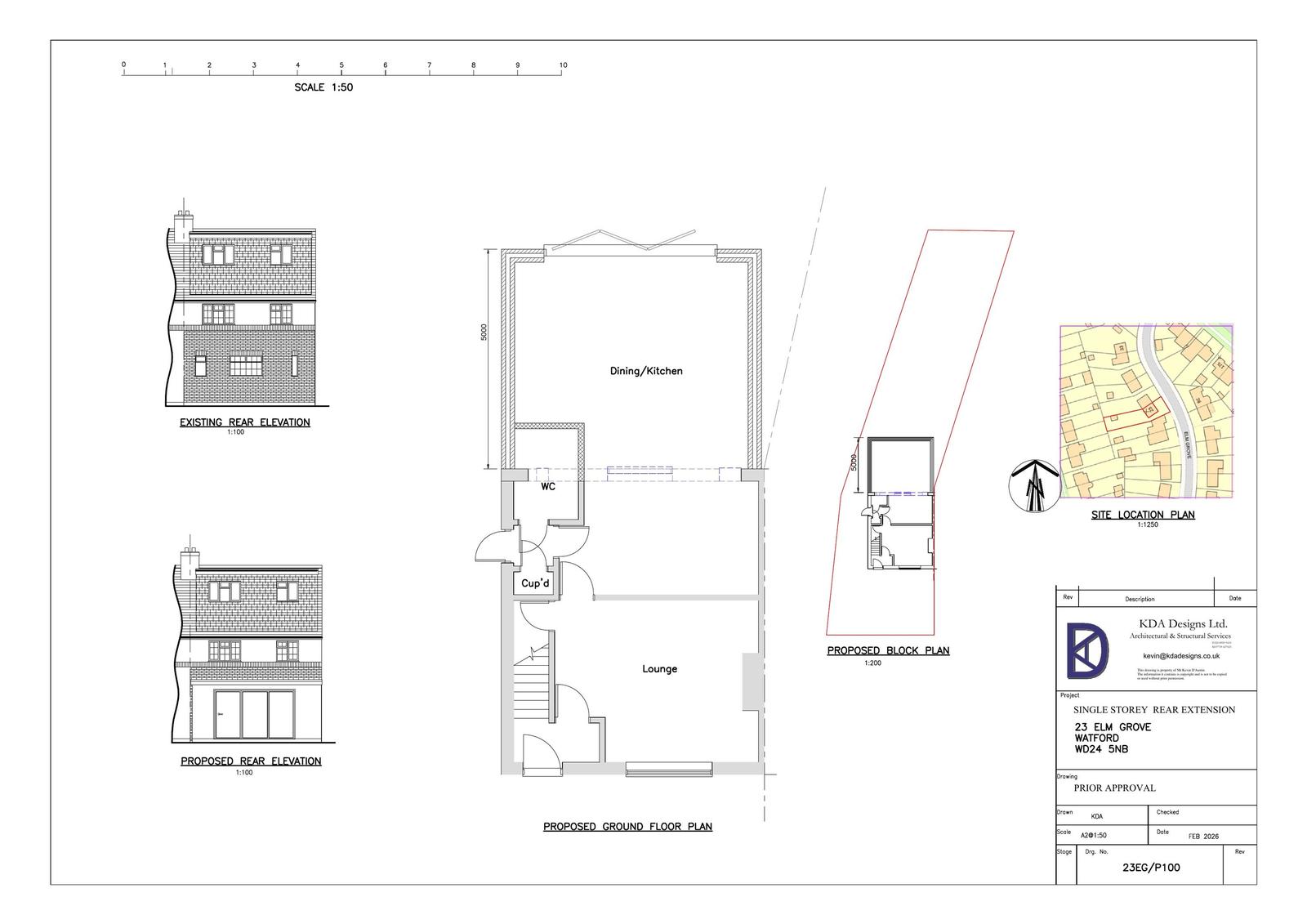
The erection of a single storey rear extension which would extend beyond the rear wall of the original house by 5.00m for which the maximum height would be 3.00m and for which the height of the eaves would be 3.00m

Documents

Application Form
Archived · Original link
Neighbour Notification List
Archived · Original link

Have your say

Your comment matters. Councils must consider every representation that raises material planning considerations.

Write a comment