← Watford Borough Council

Status

Pending consideration House extension
Received
Last month
New homes
0

Full proposal

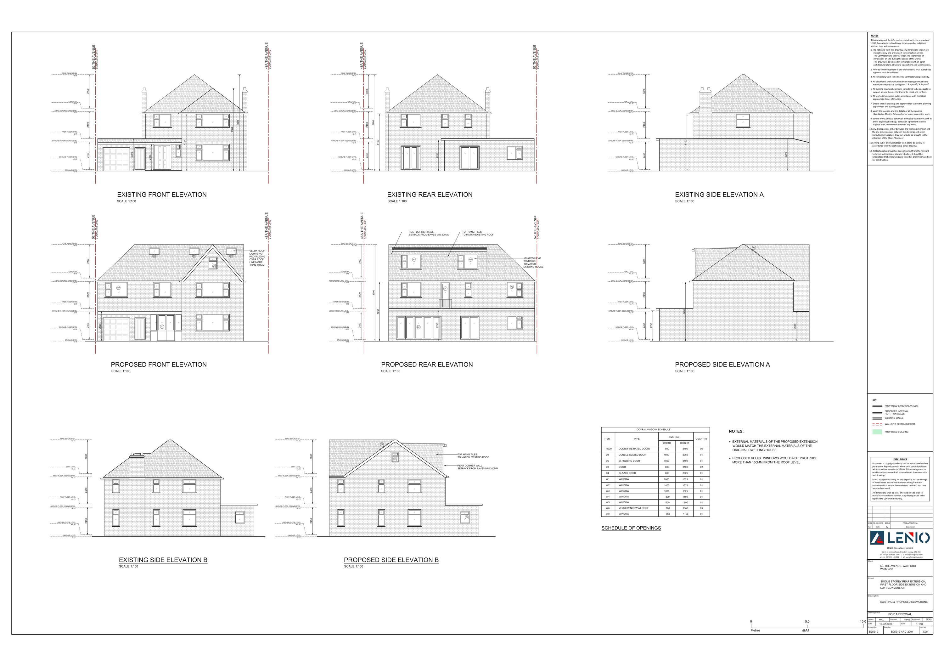
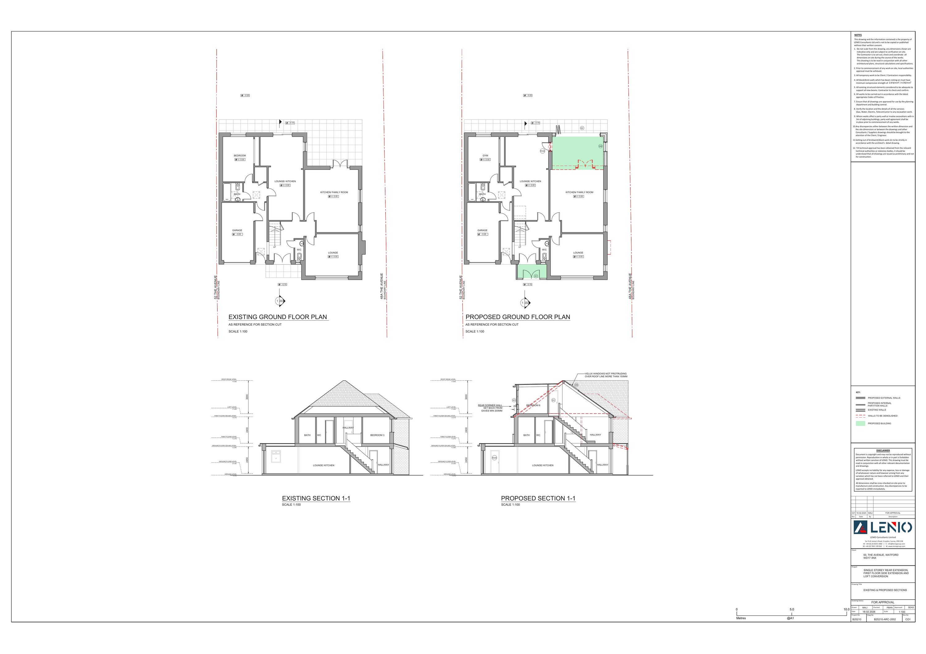
Erection of single storey side extension, first floor side extension above existing garage and loft conversion with rear dormer and three front rooflights and associated internal reconfiguration

Have your say

Your comment matters. Councils must consider every representation that raises material planning considerations.

Write a comment