← Watford Borough Council

Status

Pending consideration House extension
Received
Last month
New homes
0

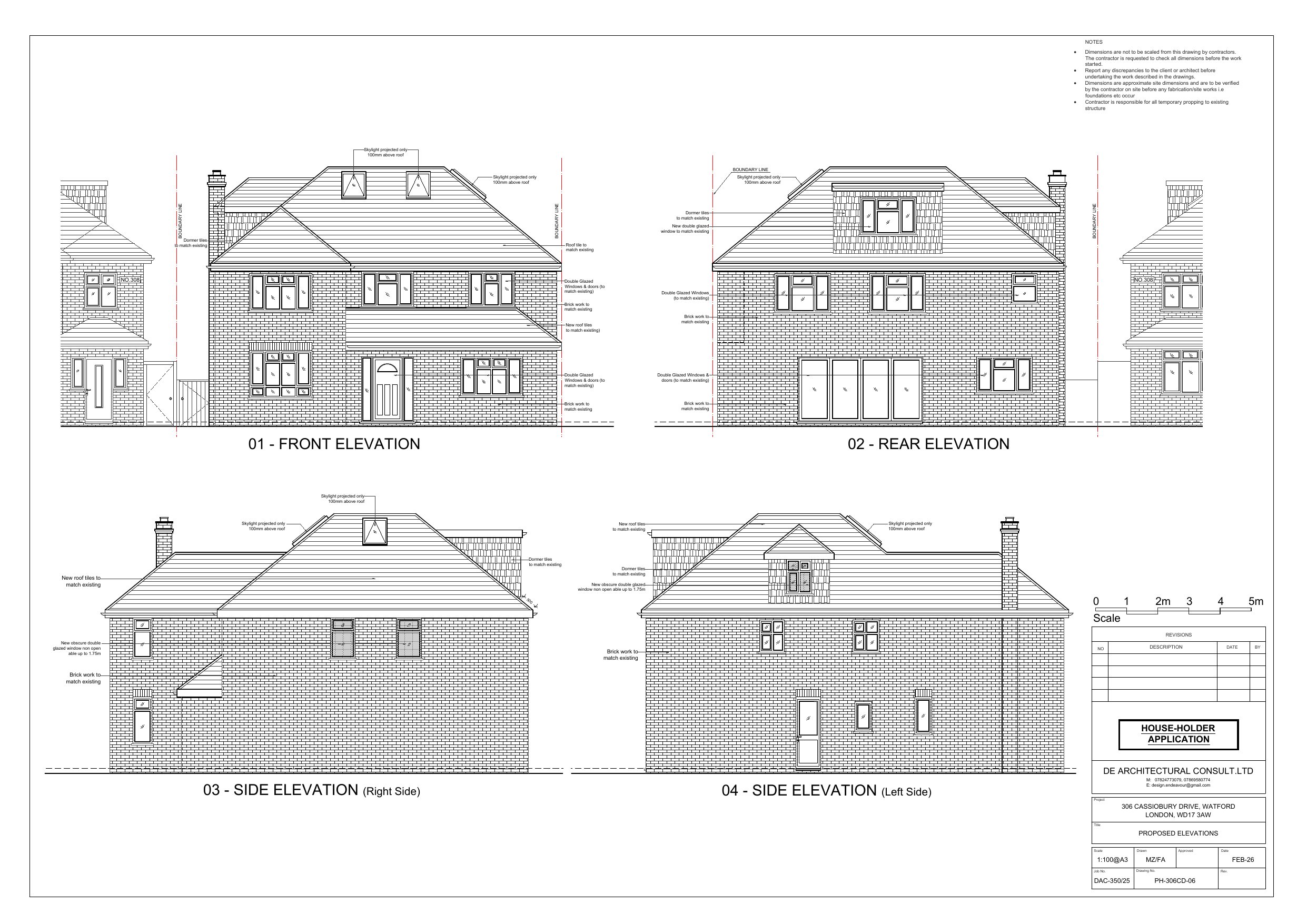
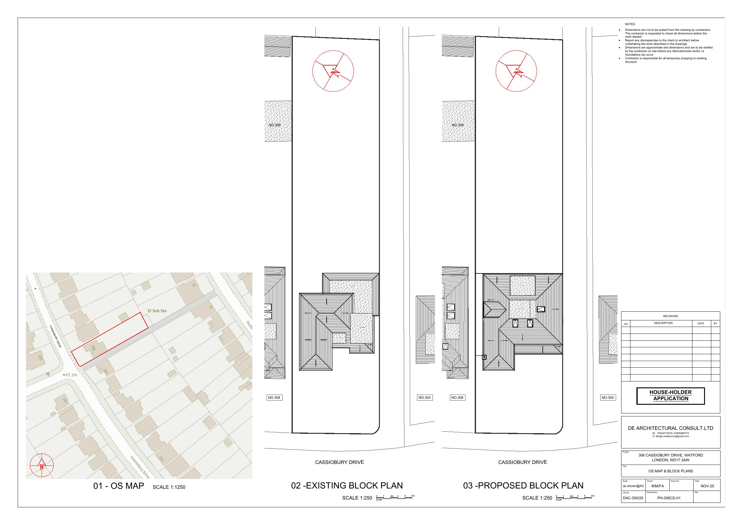
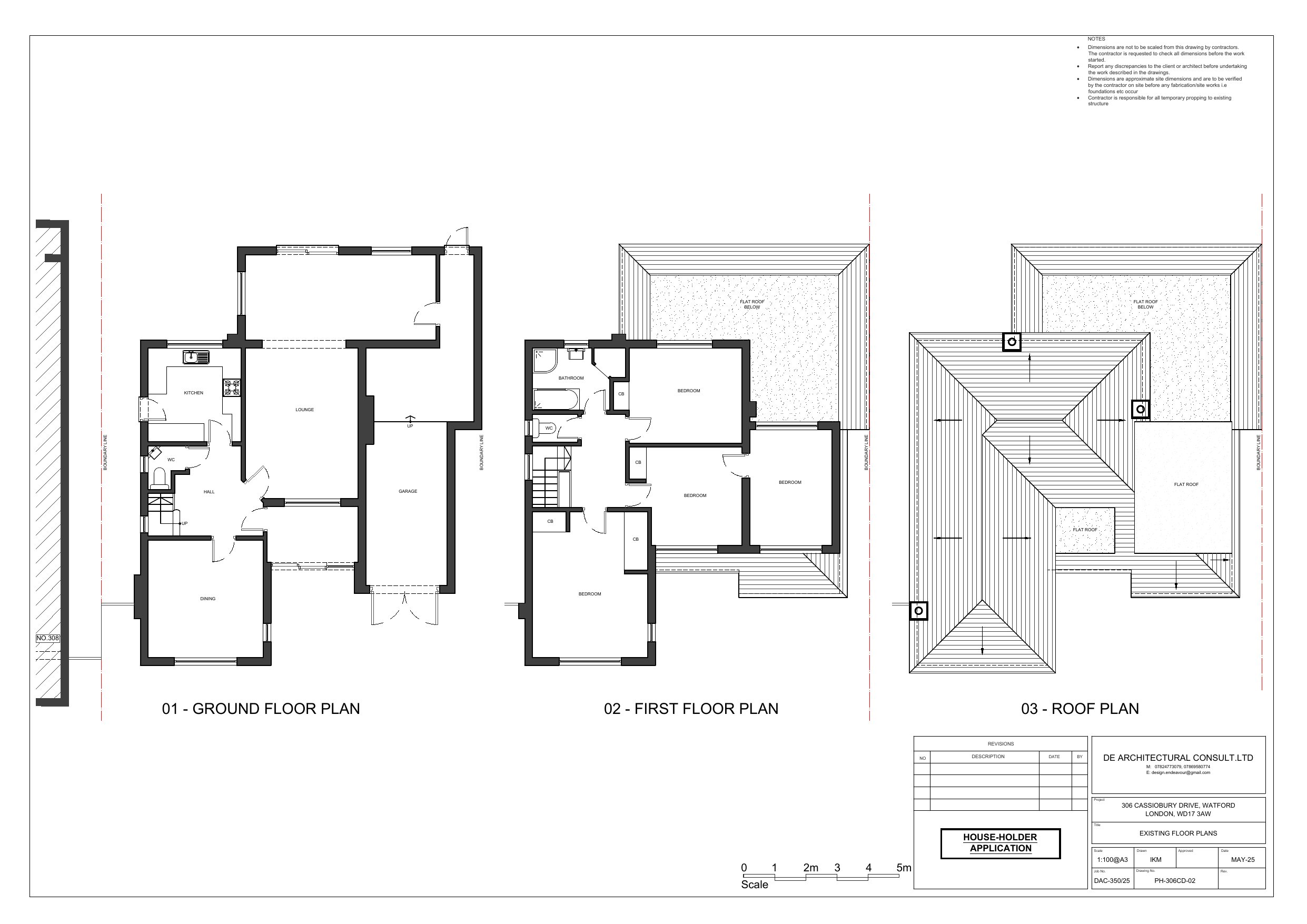
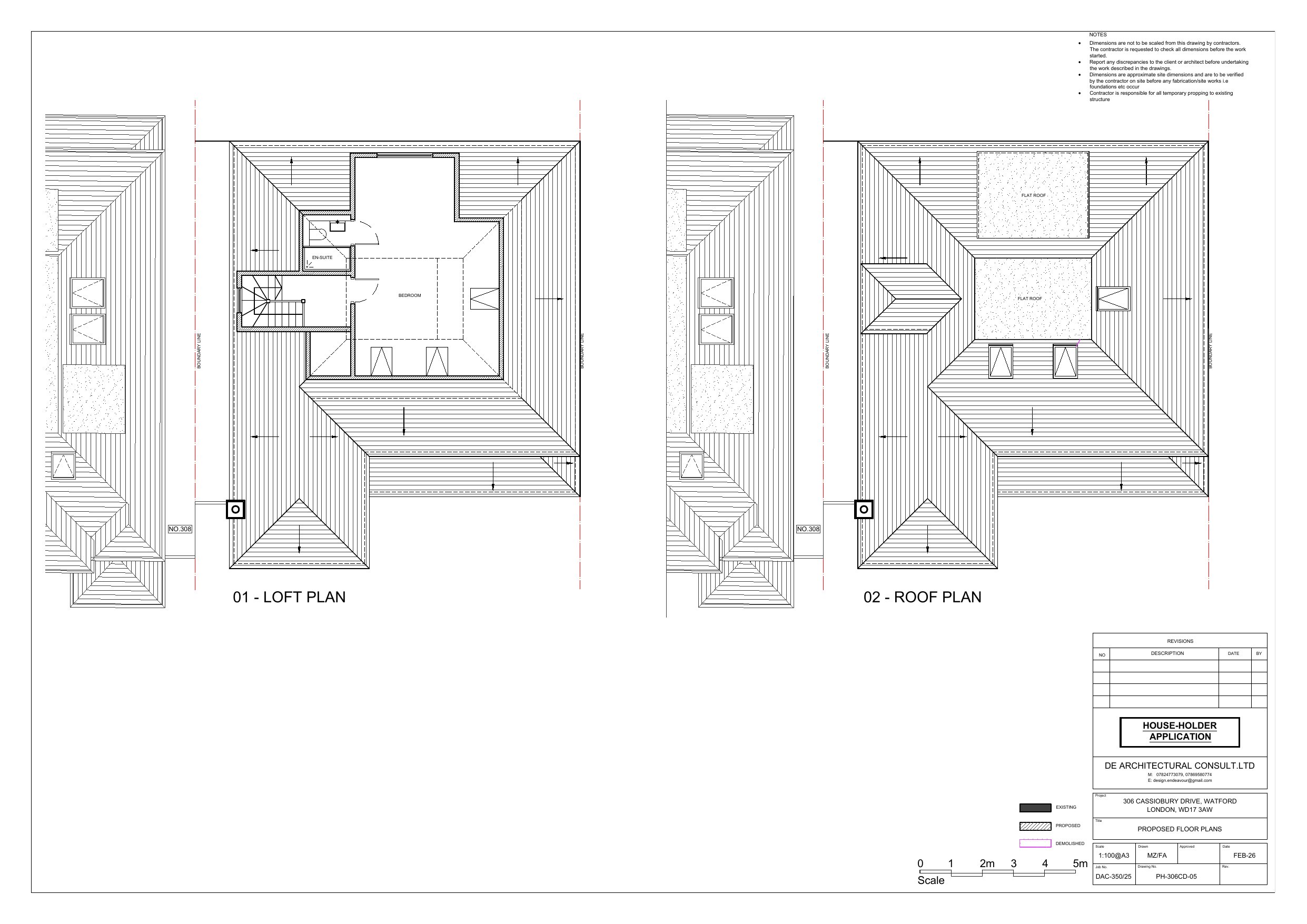
Full proposal

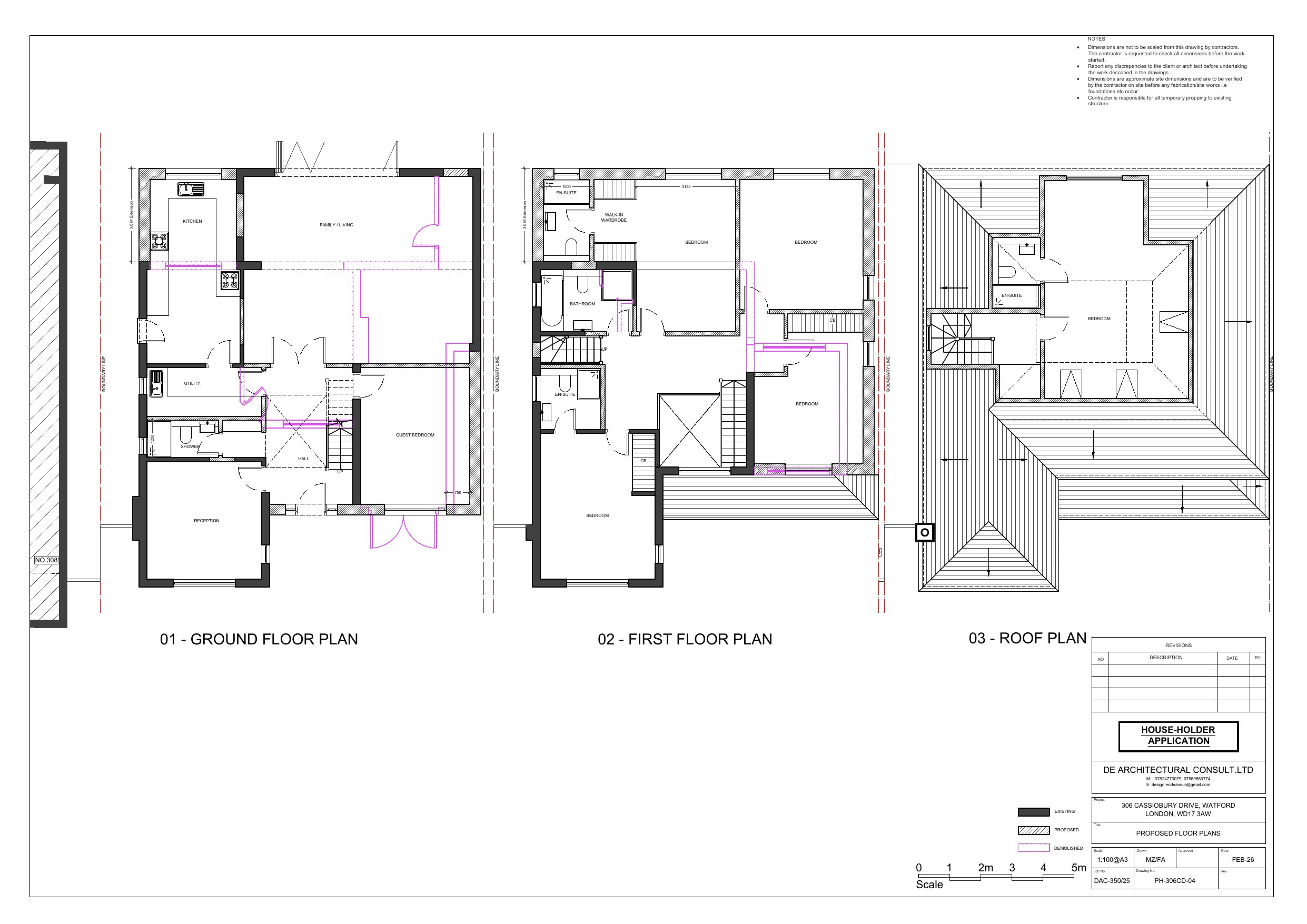
Erection of two storey rear and side extension and loft conversion with the rear and side dormer

Documents

Application Form
Archived · Original link
CIL Form
Archived · Original link
Drawing
Archived · Original link
Drawing
Archived · Original link
Support Comment
Archived · Original link

Have your say

Your comment matters. Councils must consider every representation that raises material planning considerations.

Write a comment