← Watford Borough Council

Status

Pending consideration House extension
Received
Last month
New homes
0

Full proposal

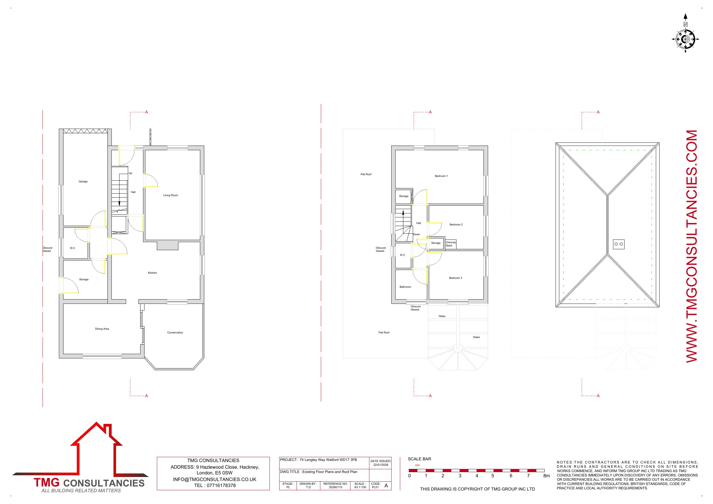
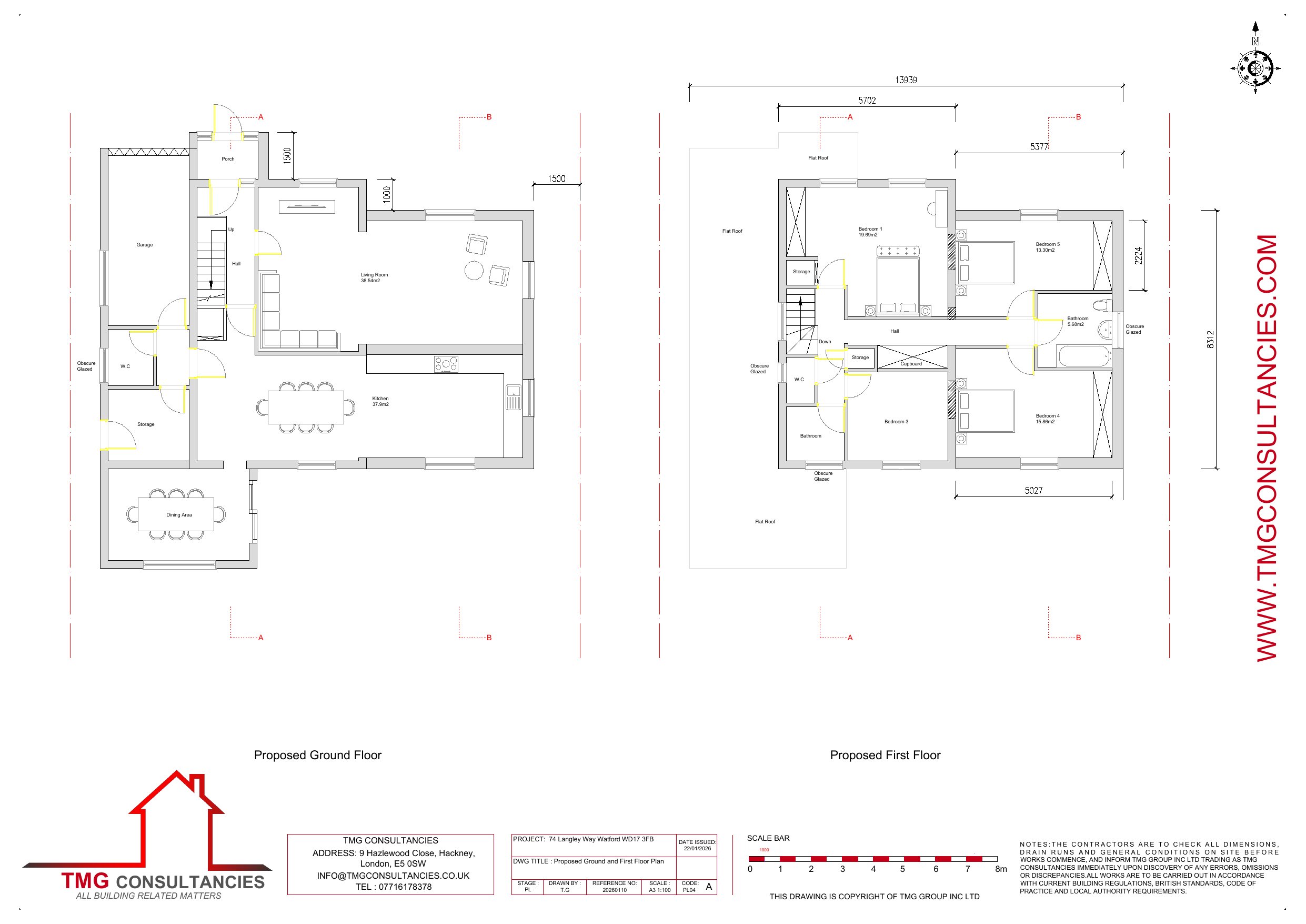
Erection of 2 storey side extension and a porch with changes to fenstration on first floor facing Langley Road

Have your say

Your comment matters. Councils must consider every representation that raises material planning considerations.

Write a comment