← Watford Borough Council

Status

Pending consideration House extension
Received
Last month
New homes
0

Full proposal

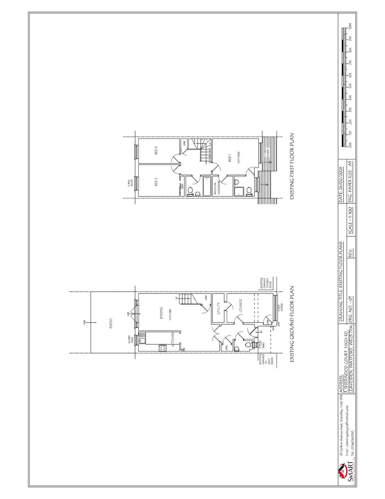
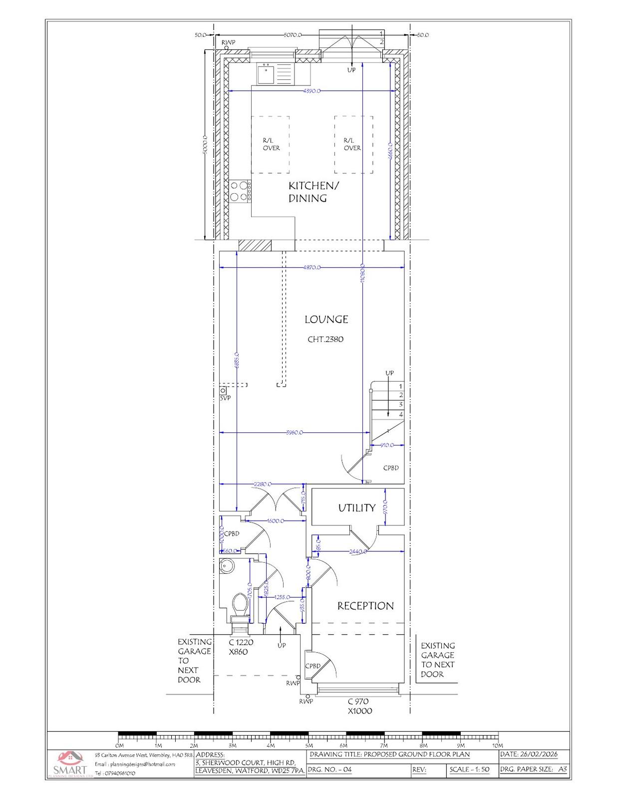
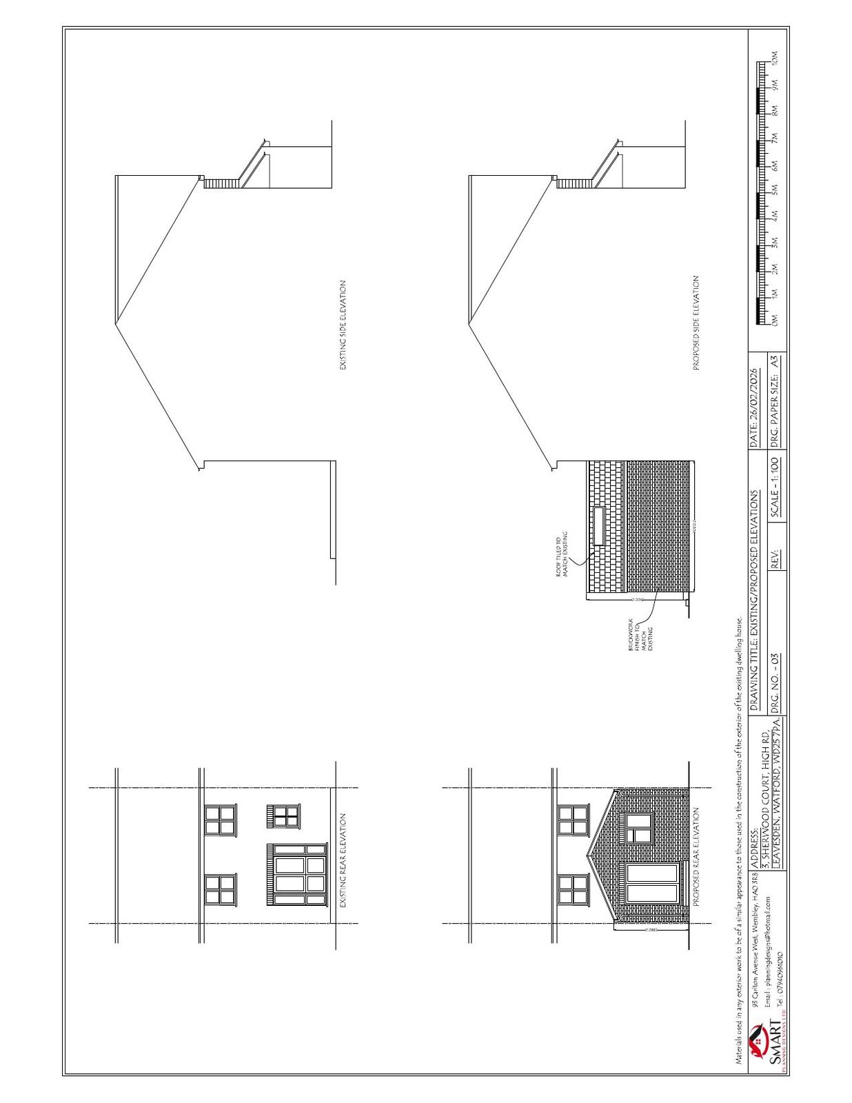
The erection of a single storey rear extension which would extend beyond the rear wall of the original house by 5.00m for which the maximum height would be 3.90m and for which the height of the eaves would be 2.88m

Have your say

Your comment matters. Councils must consider every representation that raises material planning considerations.

Write a comment