← Watford Borough Council

Status

Pending consideration House extension
Received
Last month
New homes
0

Full proposal

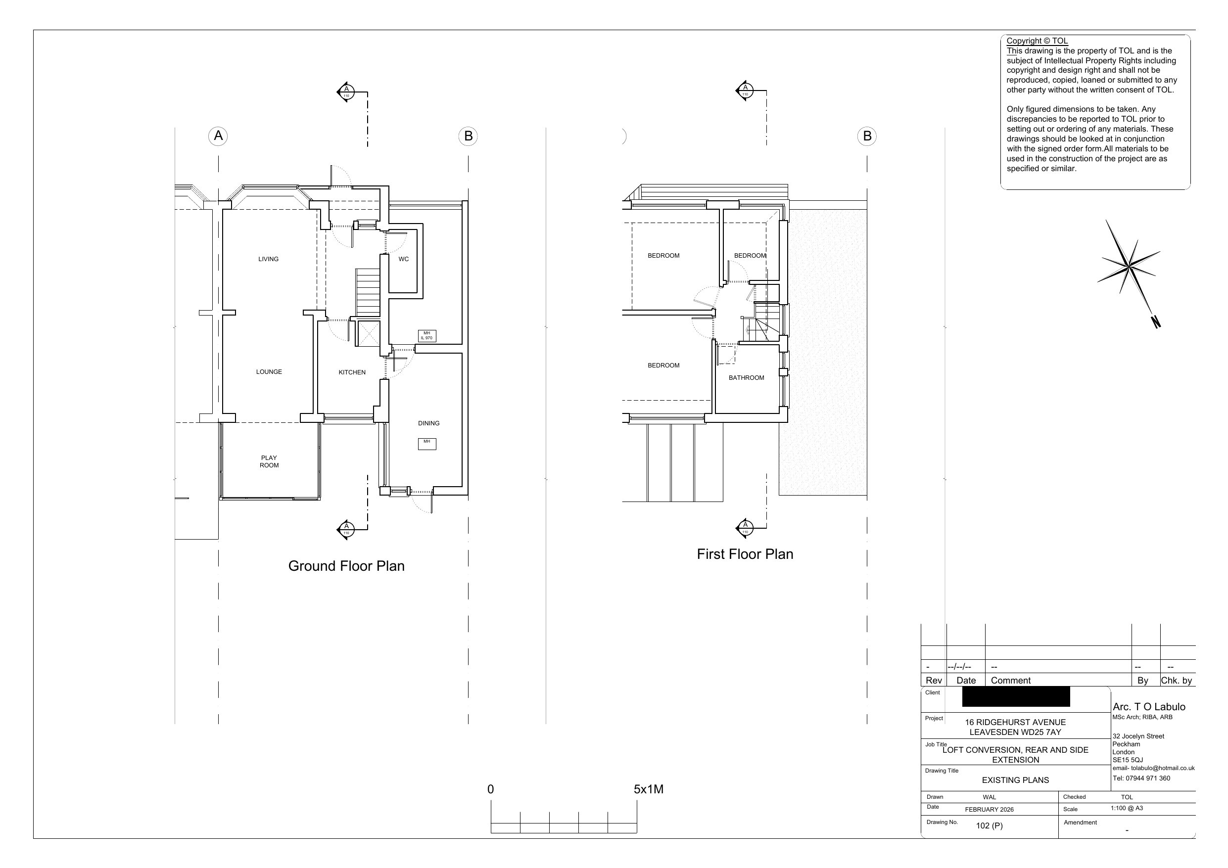
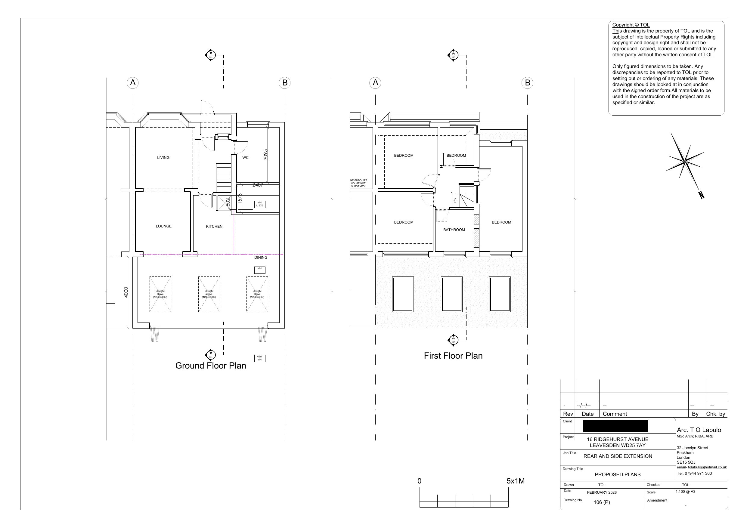
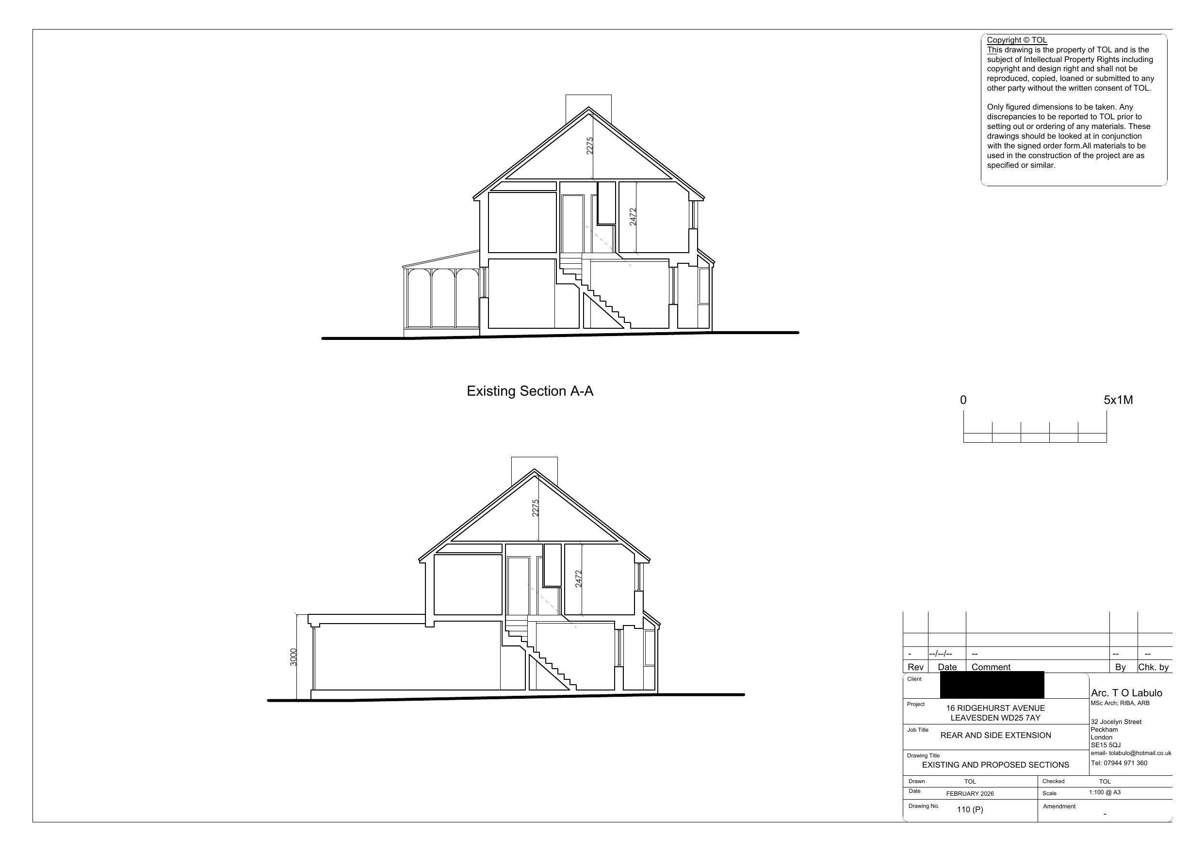
Erection of a two storey side extension and single storey rear extension.

Have your say

Your comment matters. Councils must consider every representation that raises material planning considerations.

Write a comment