← Watford Borough Council

Status

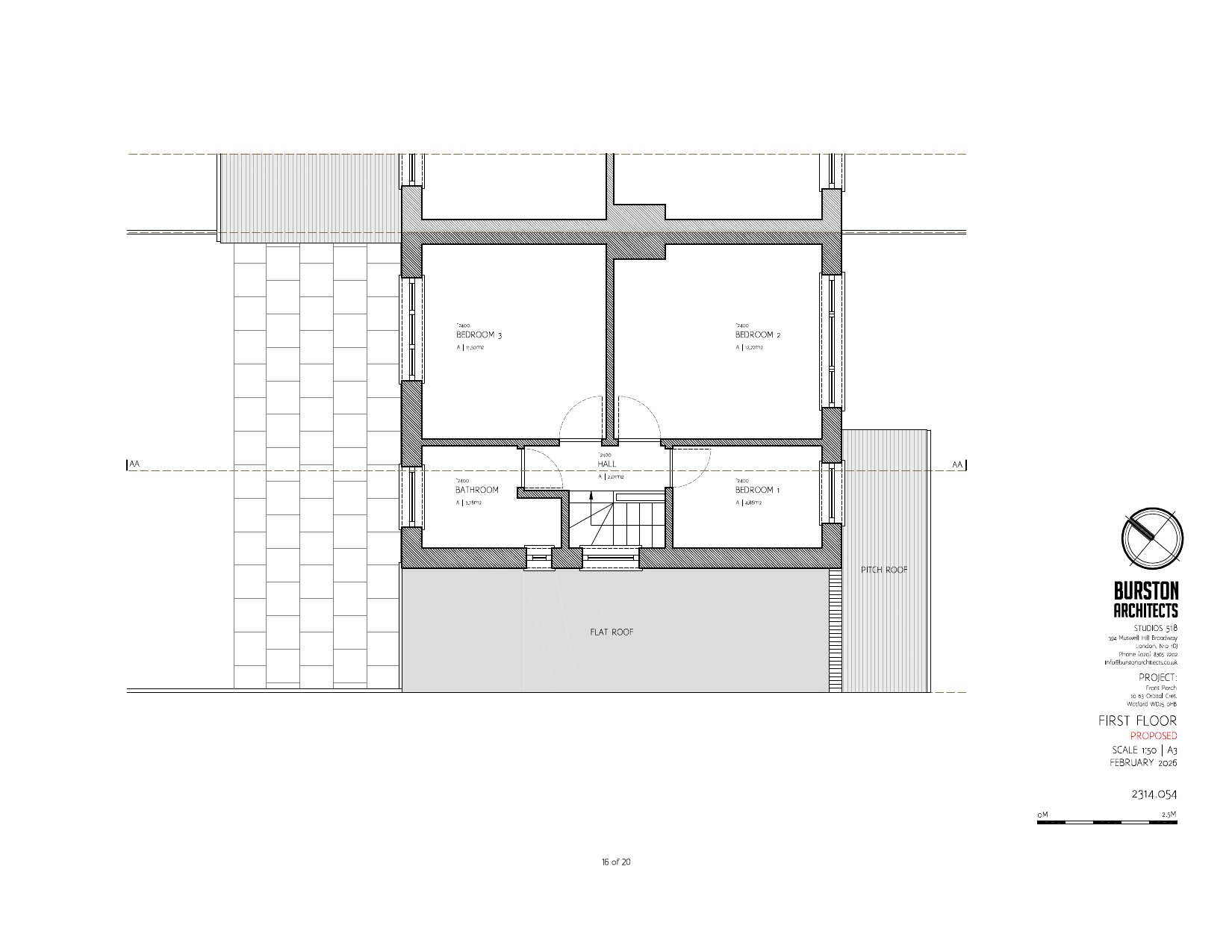
Pending consideration House extension
Received
Last month
New homes
0

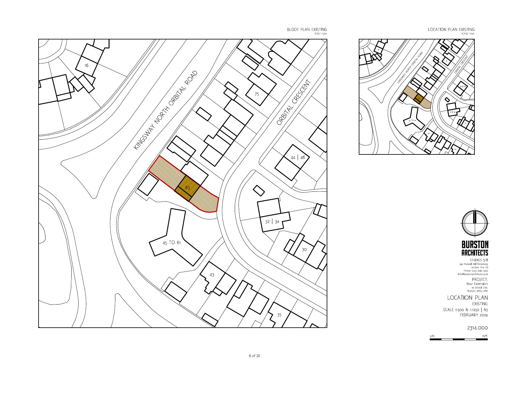
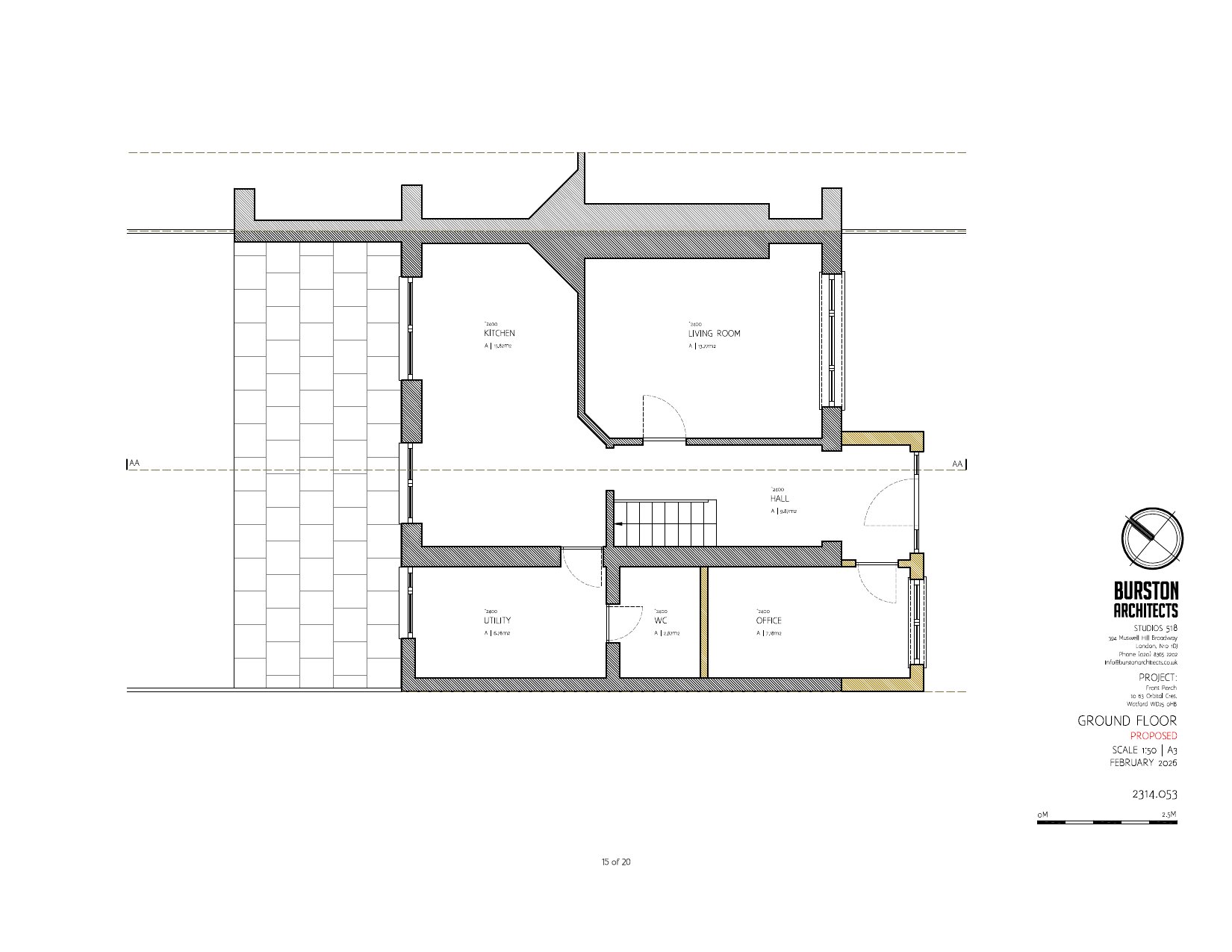
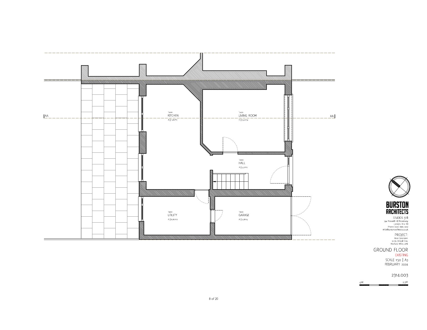
Full proposal

Erection of front porch and garage conversion.

Have your say

Your comment matters. Councils must consider every representation that raises material planning considerations.

Write a comment