← Watford Borough Council

Status

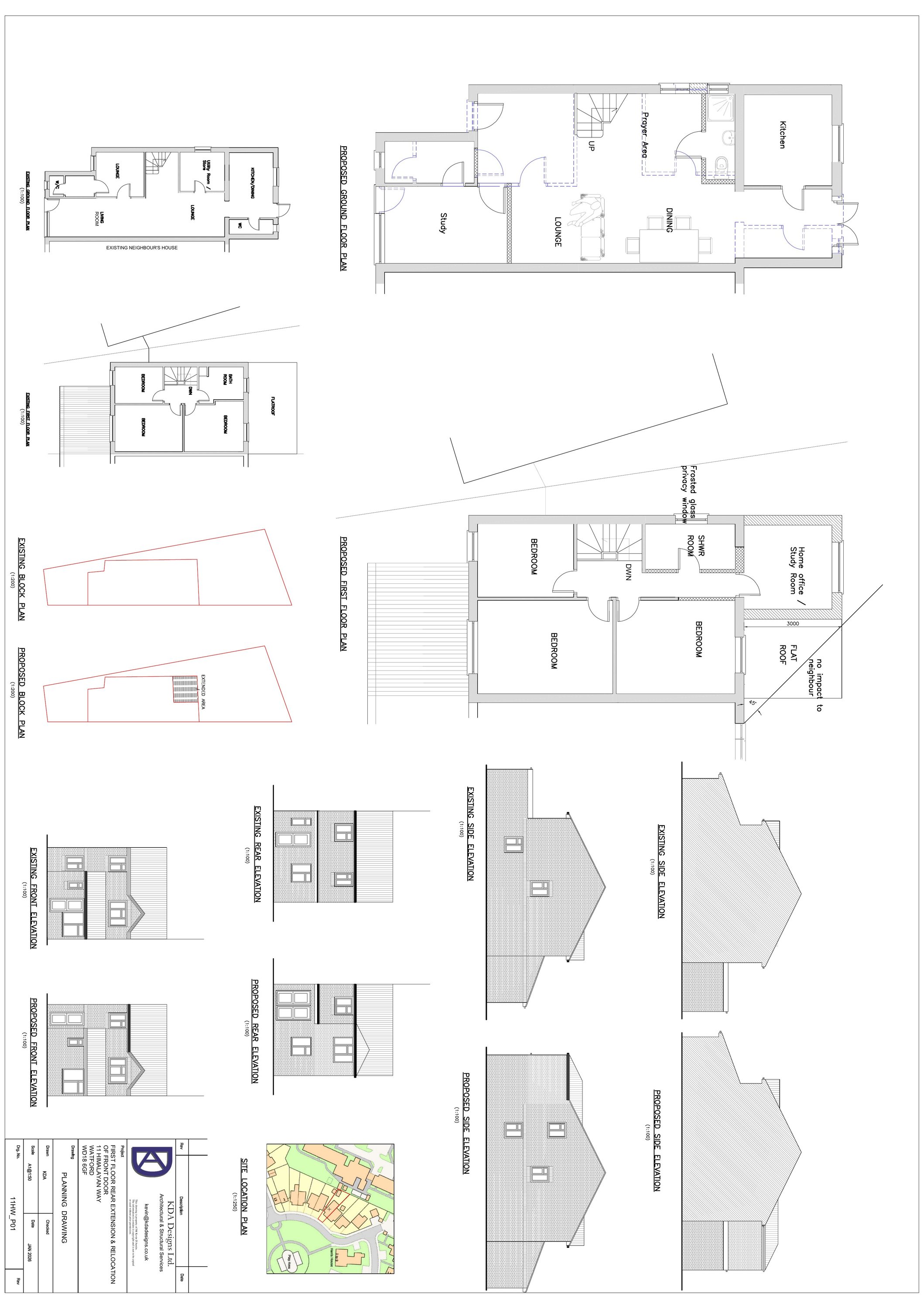
Pending consideration House extension
Received
Last month
New homes
0

Full proposal

Erection of first floor rear extension

Have your say

Your comment matters. Councils must consider every representation that raises material planning considerations.

Write a comment