← Watford Borough Council

Status

Pending consideration House extension
Received
28 days ago
New homes
0

Full proposal

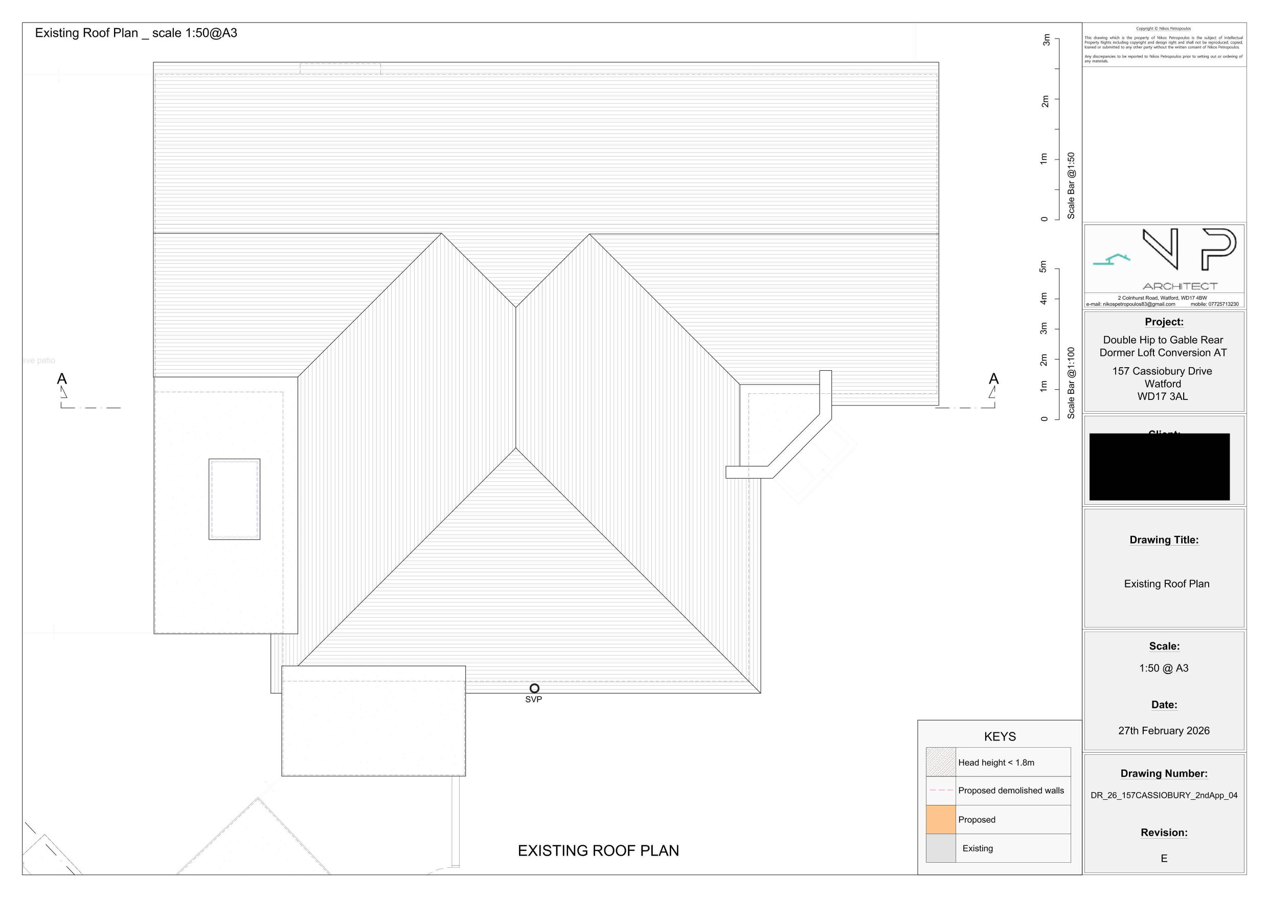
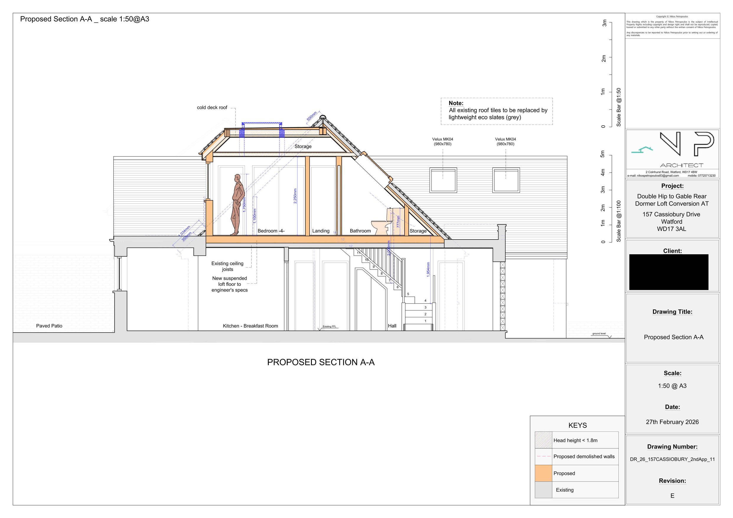
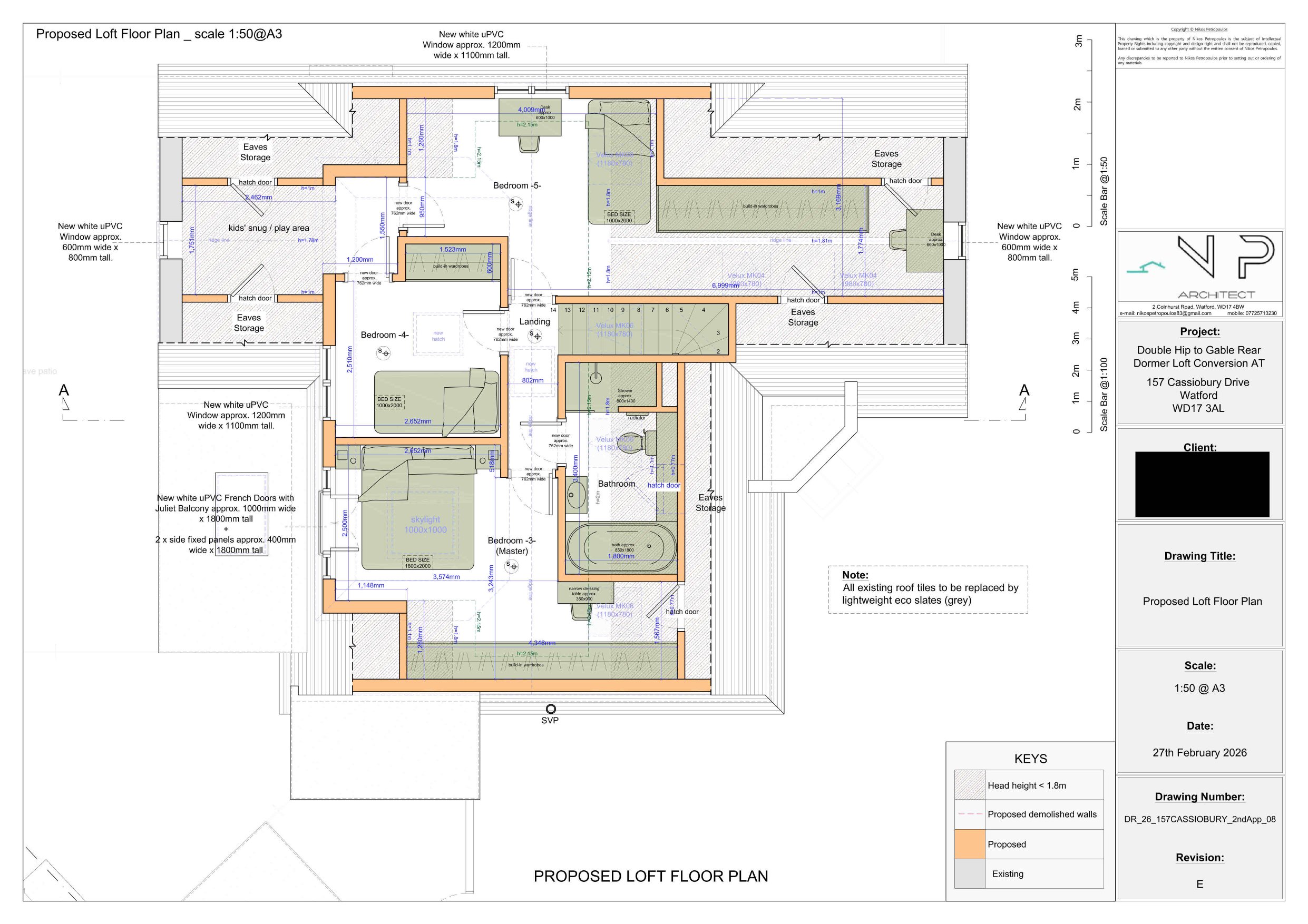
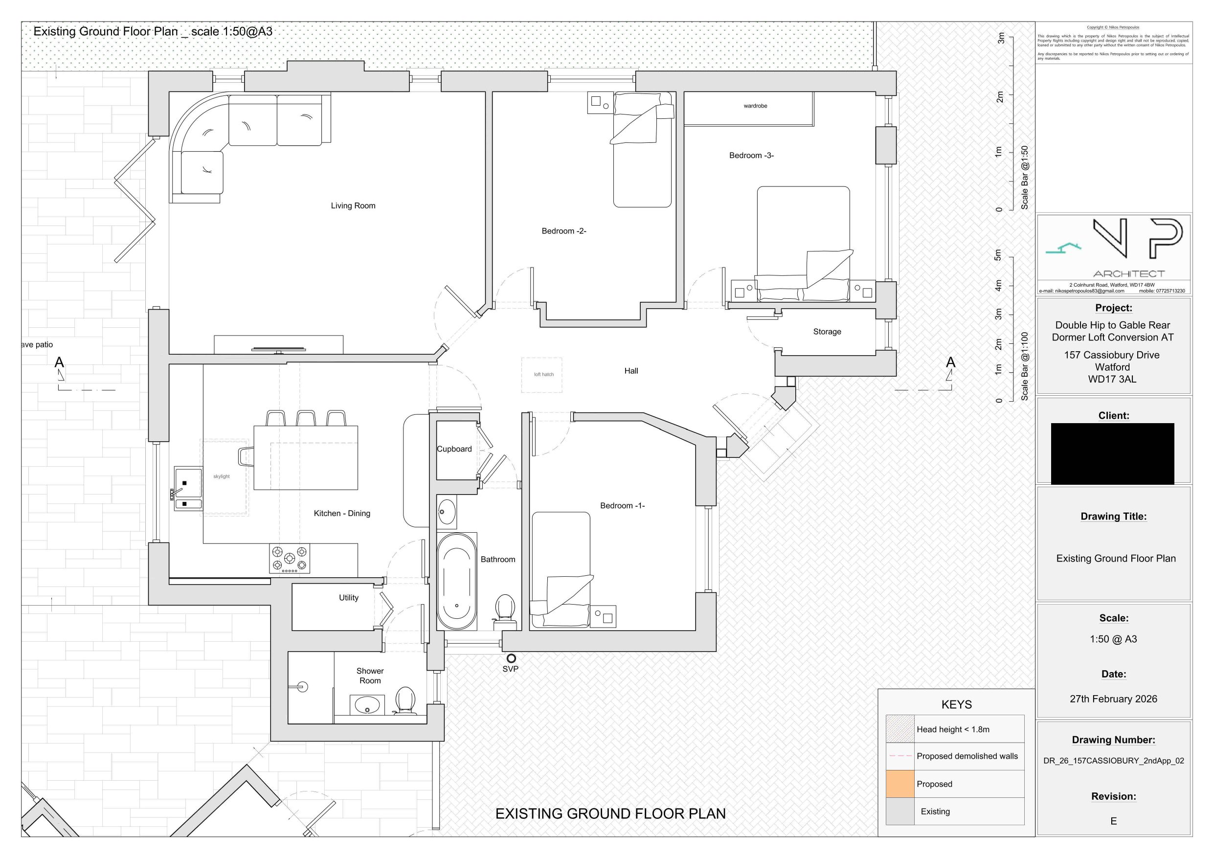
Proposed roof alteration involving double hip-to-gable conversion; erection of a rear, crown-roof dormer with french doors and juliet balcony; installation of 6 x roof lights on the front and front/side roof slope; installation of new windows to the front, rear and side; installation of a side door to the ground floor; changes to finish materials; internal alterations.

Have your say

Your comment matters. Councils must consider every representation that raises material planning considerations.

Write a comment