← Watford Borough Council

Status

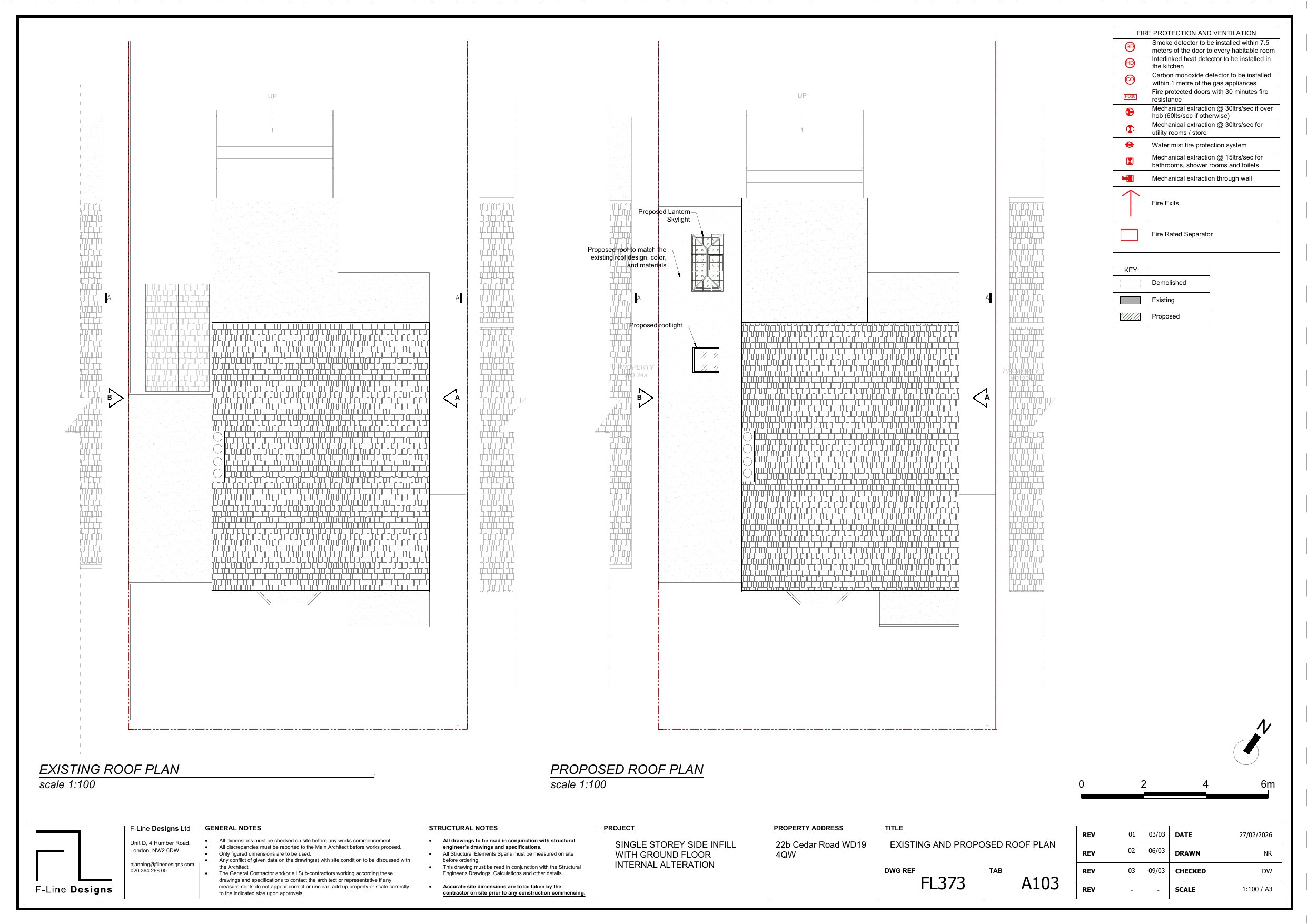
Pending consideration House extension
Received
28 days ago
New homes
0

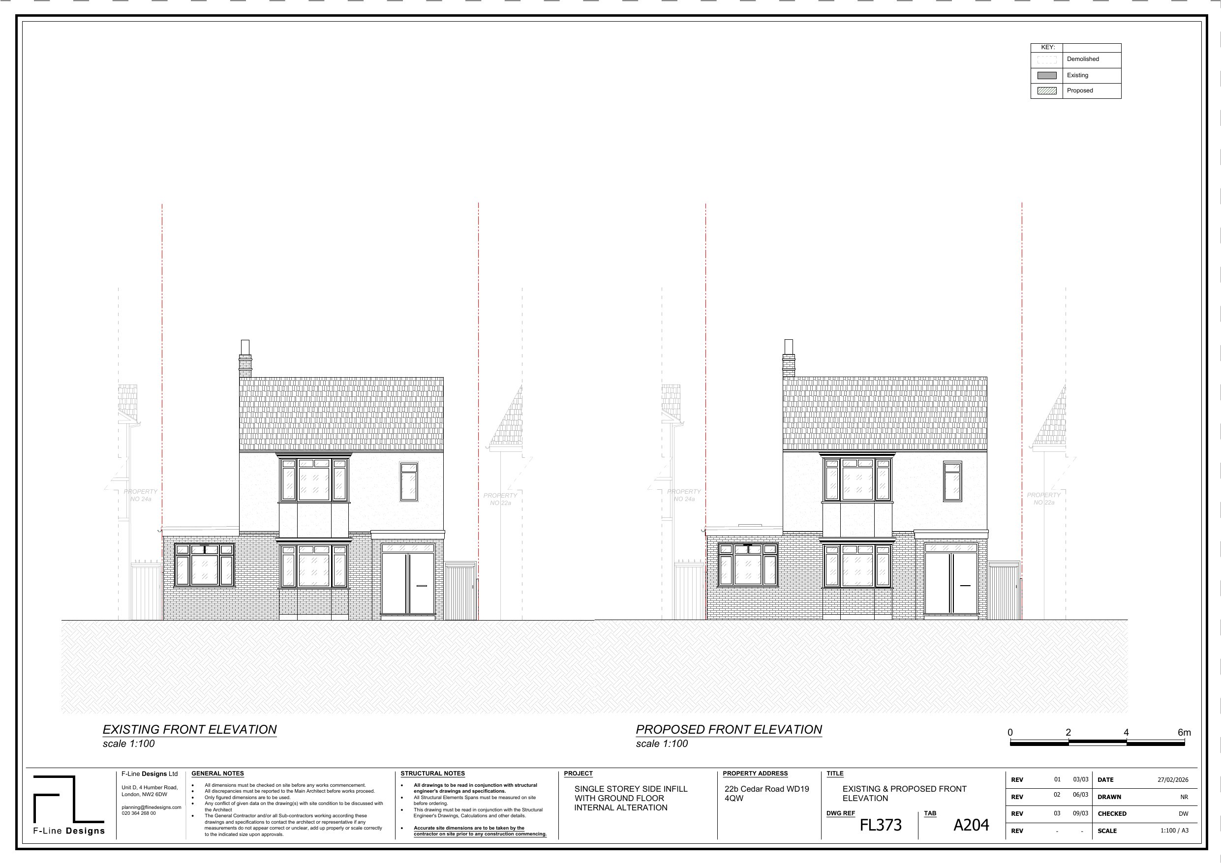
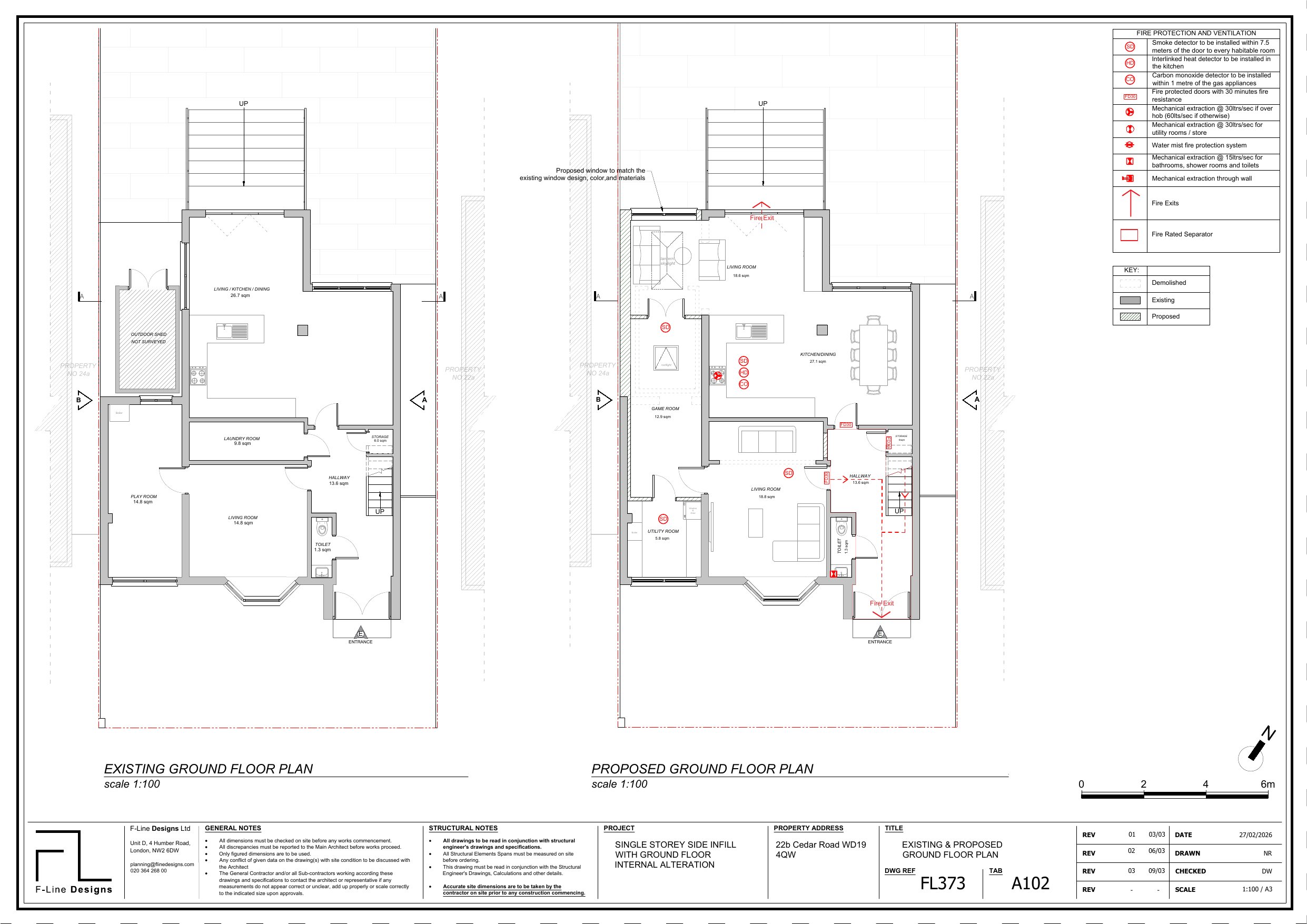
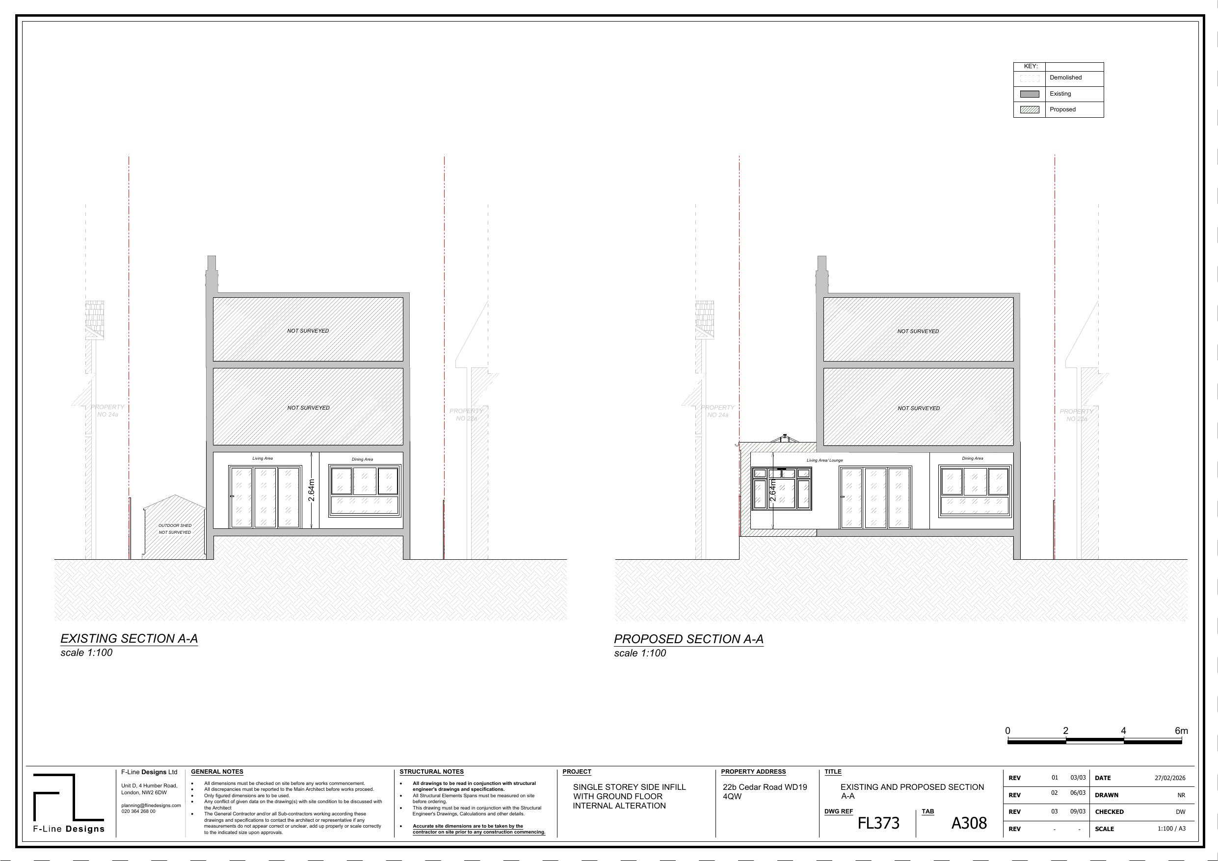
Full proposal

Erection of single storey infill extension and ground floor internal alterations

Have your say

Your comment matters. Councils must consider every representation that raises material planning considerations.

Write a comment