← Watford Borough Council

Status

Pending consideration House extension
Received
26 days ago
New homes
0

Full proposal

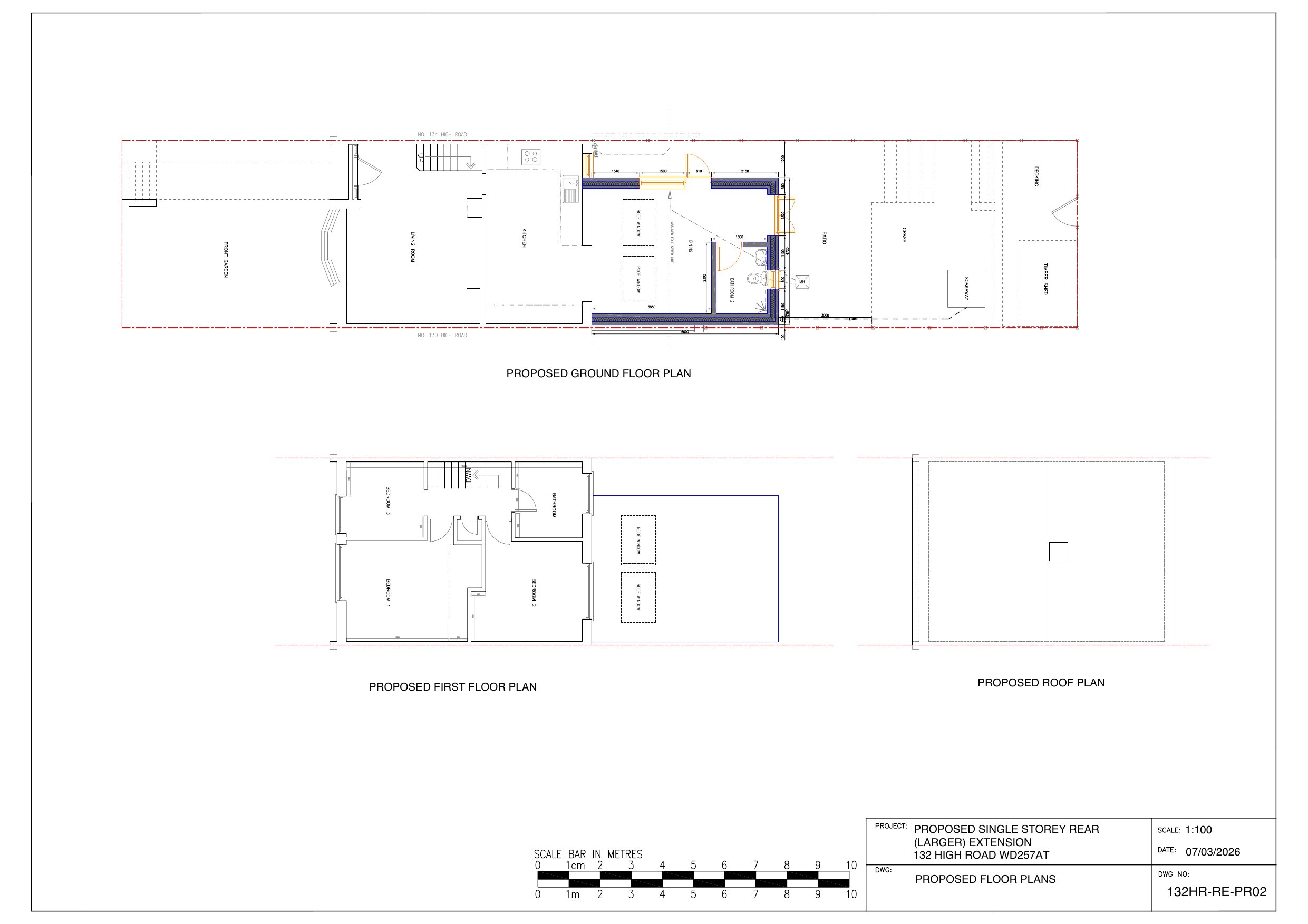
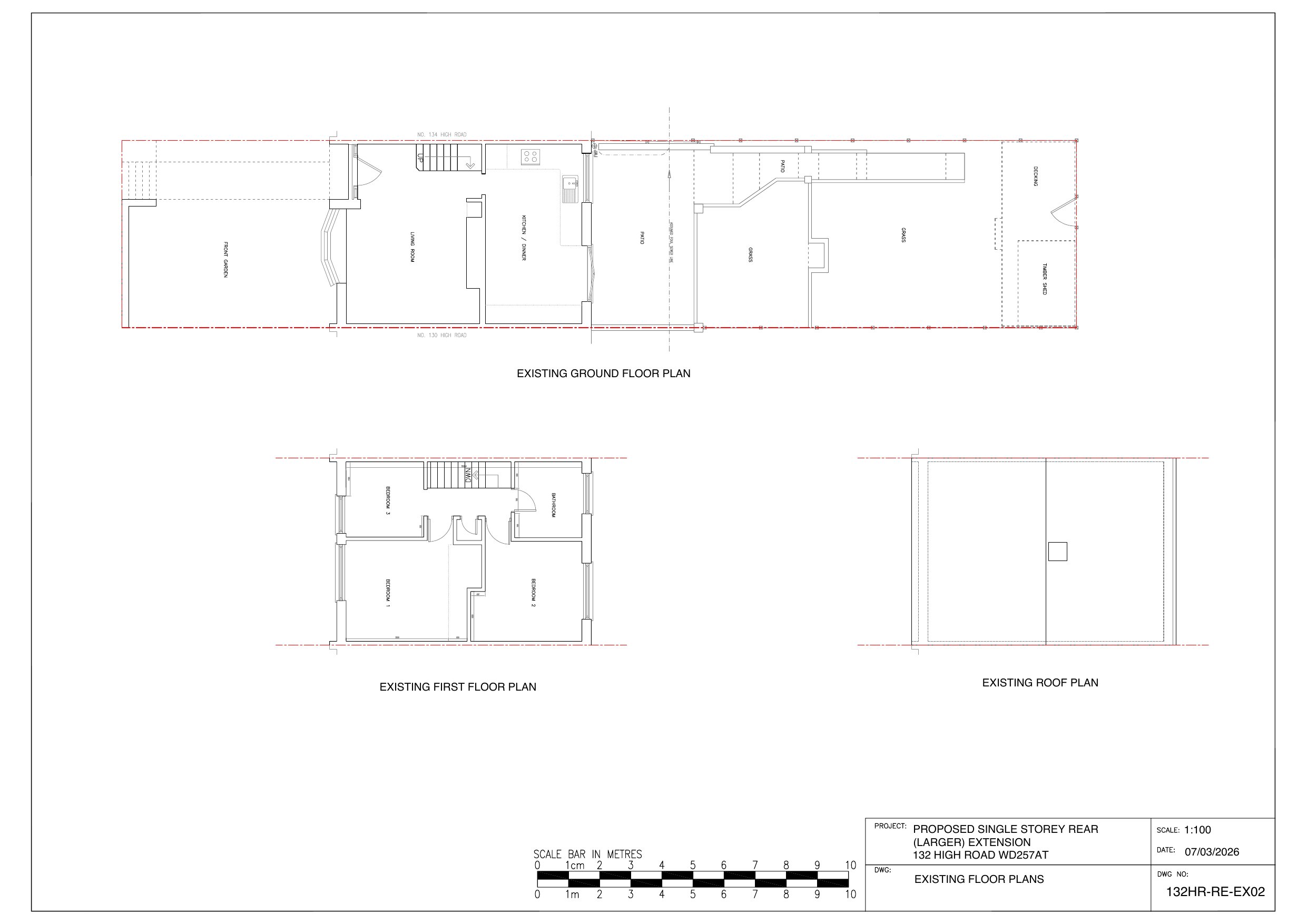
The erection of a single storey rear extension which would extend beyond the rear wall of the original house by 6.00m for which the maximum height would be 3.10m and for which the height of the eaves would be 3.00m

Documents

Application Form
Archived · Original link
Drawing
Archived · Original link
Drawing
Archived · Original link
Drawing
Archived · Original link
Drawing
Archived · Original link
OS Extract
Archived · Original link

Have your say

Your comment matters. Councils must consider every representation that raises material planning considerations.

Write a comment